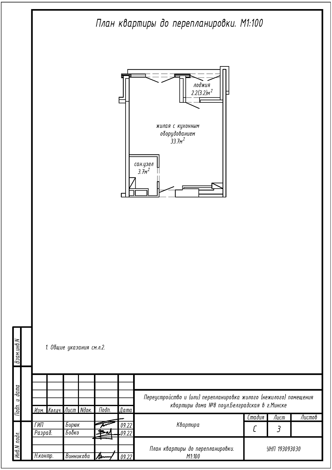
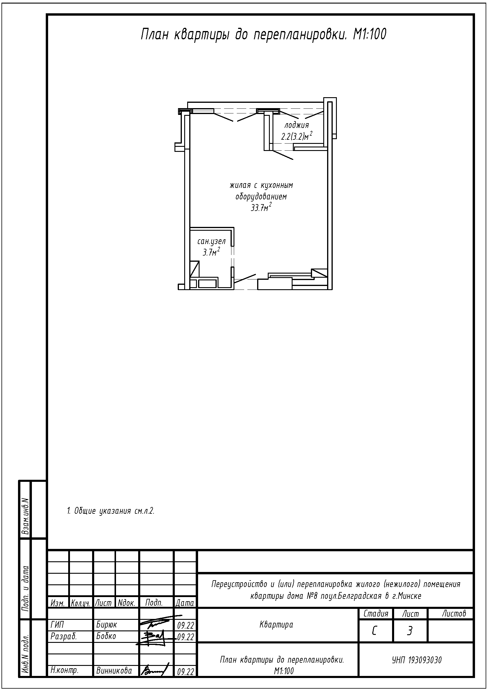
Перепланировка квартиры по ул. Белградская, 8 в ЖК «Минск Мир»
Пожелания заказчика:
- Разделение общей жилой с кухонным оборудованием на жилую с кухонным оборудованием, жилую и коридор;
- Уменьшение дверного проёма между санузлом и коридором;
- Устройство зашивок из ГКЛ на части площади санузла;
- Устройство оконного проёма в стене между жилой с кухонным оборудованием и лоджией с последующим устройством оконного блока.
Нами были разработаны следующие разделы проектной документации для согласования в исполкоме:
- АС - архитектурно-строительные решения.
