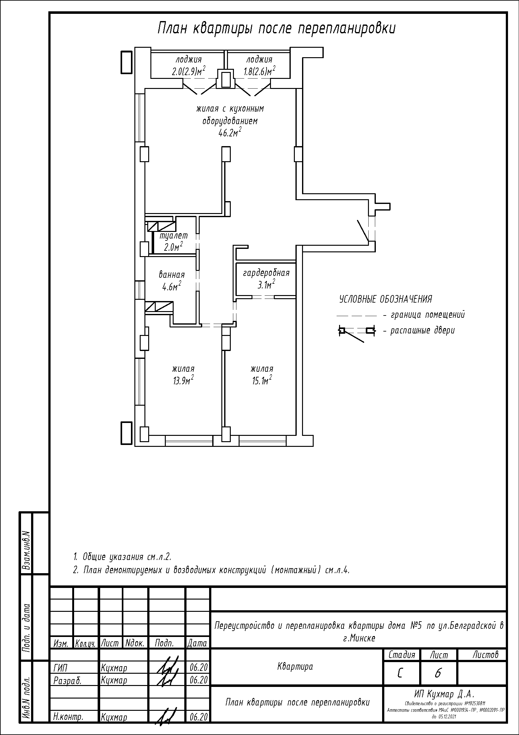
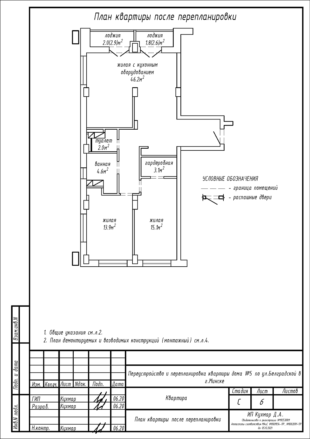
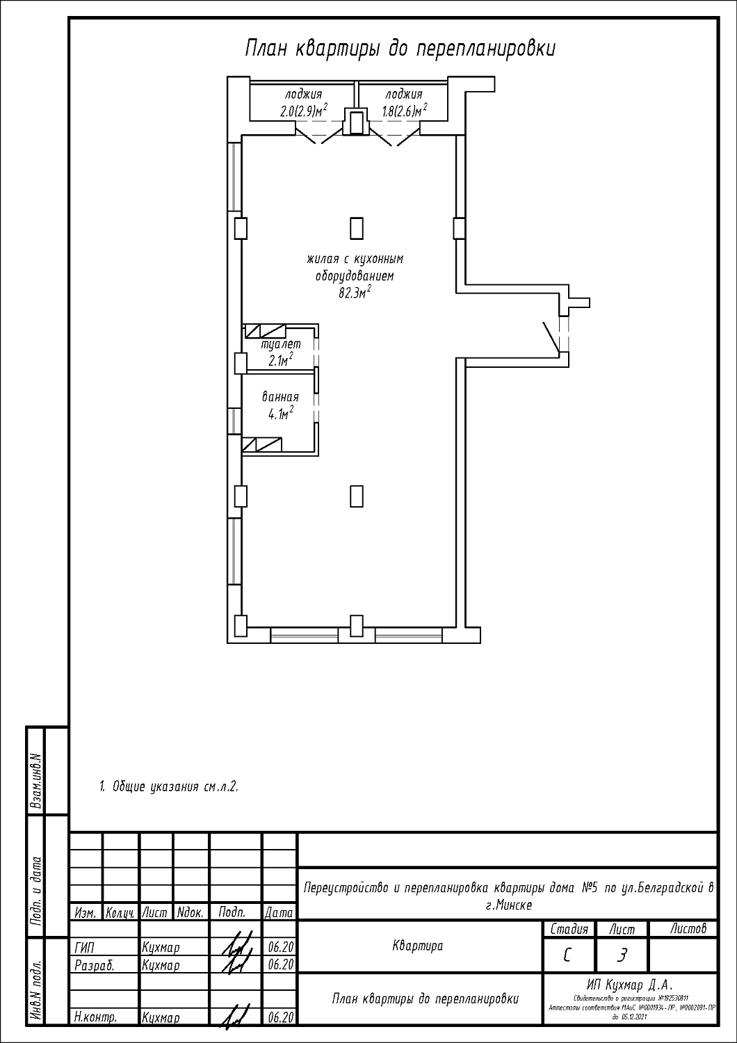
Перепланировка квартиры по ул. Белградская, 5 в ЖК «Минск Мир»
Пожелания заказчика:
- Разделение общей жилой с кухонным оборудованием на жилую с кухонным оборудованием, две жилые и гардеробную;
- Увеличение площади туалета;
- Увеличение площади ванной;
- Устройство зашивки из влагостойкого ГКЛ.
Нами были разработаны следующие разделы проектной документации для согласования в исполкоме:
- АС - архитектурно-строительные решения.
