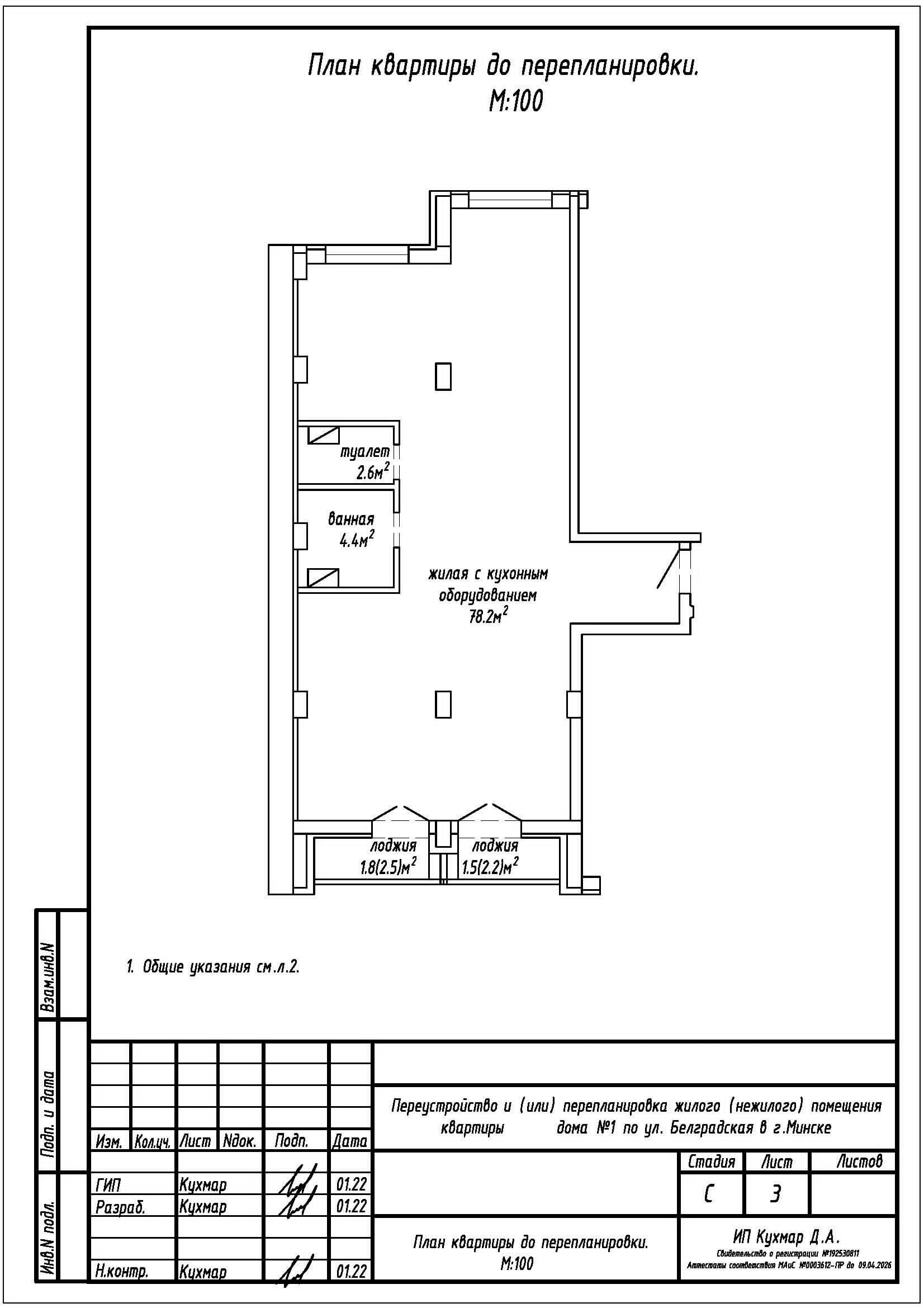
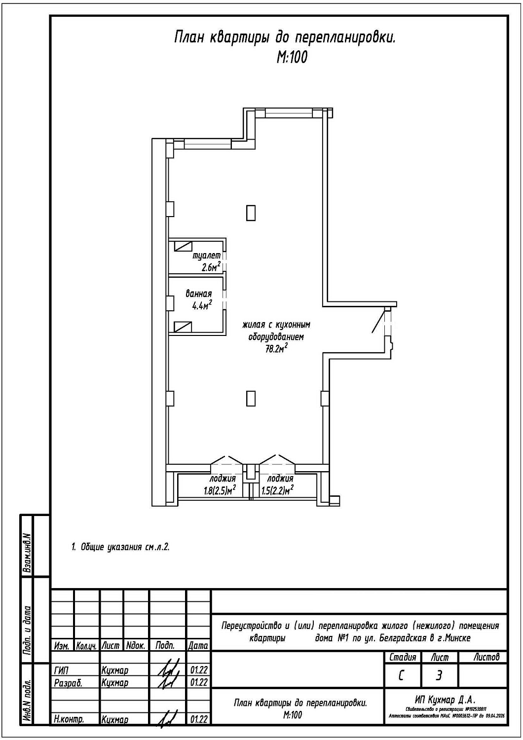
Перепланировка квартиры по ул. Белградская, 1 в ЖК «Минск Мир»
Пожелания заказчика:
- Разделение общей жилой с кухонным оборудованием на жилую с кухонным оборудованием, две жилые и гардеробную;
- Устройство санузлов на площади существующей ванной и туалета;
- Увеличение площади новых санузлов, но не более чем на 25%.
Нами были разработаны следующие разделы проектной документации для согласования в исполкоме:
- АС - архитектурно-строительные решения.
