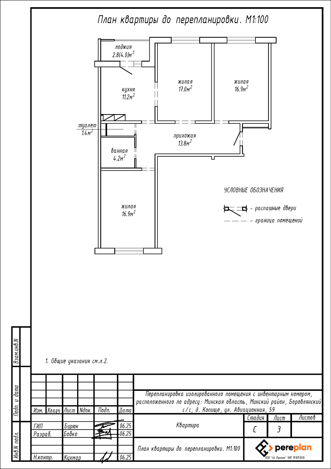
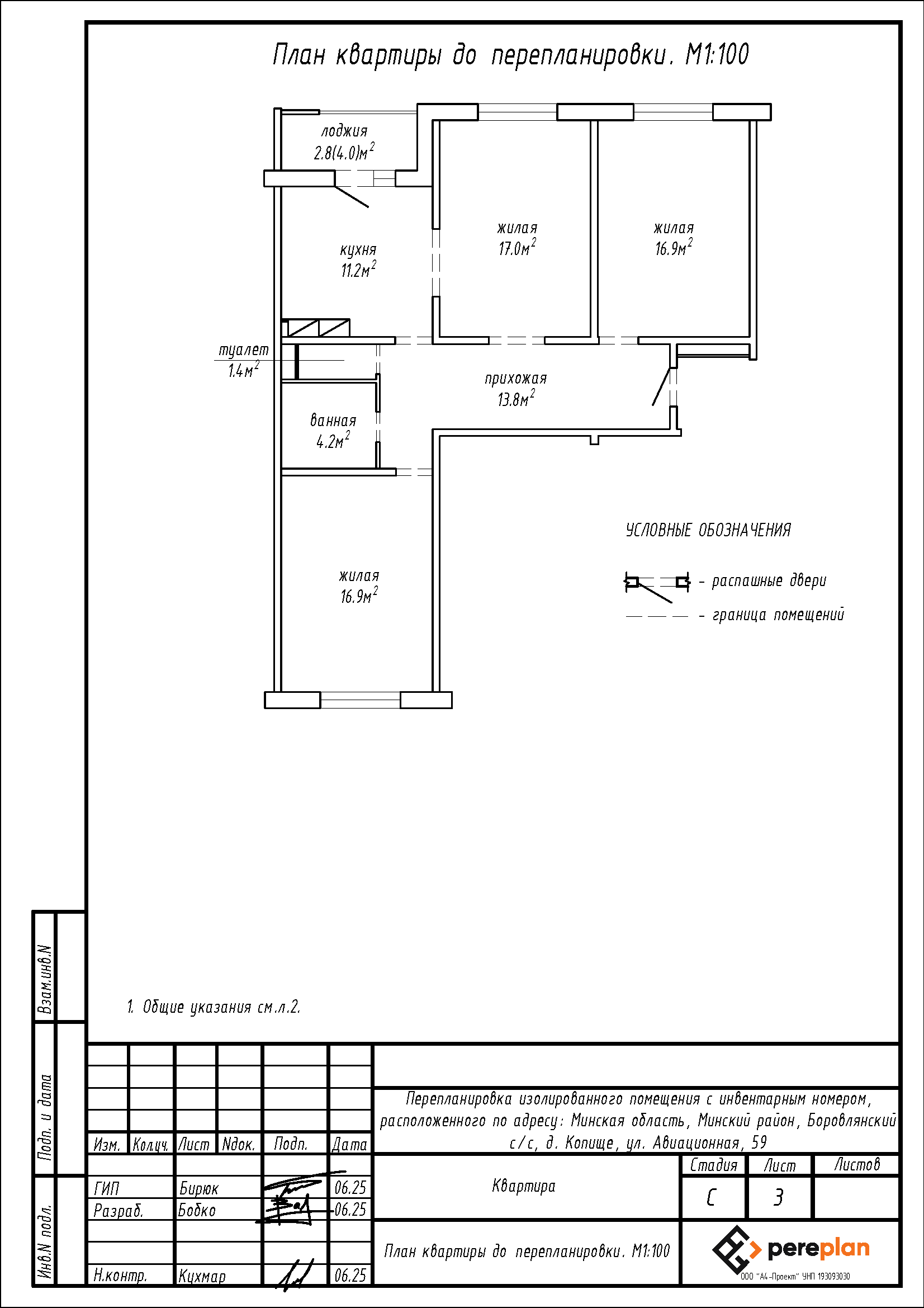
Перепланировка квартиры по ул. Авиационная, 59 в ЖК «Новая Боровая» в д. Копище
Пожелания заказчика:
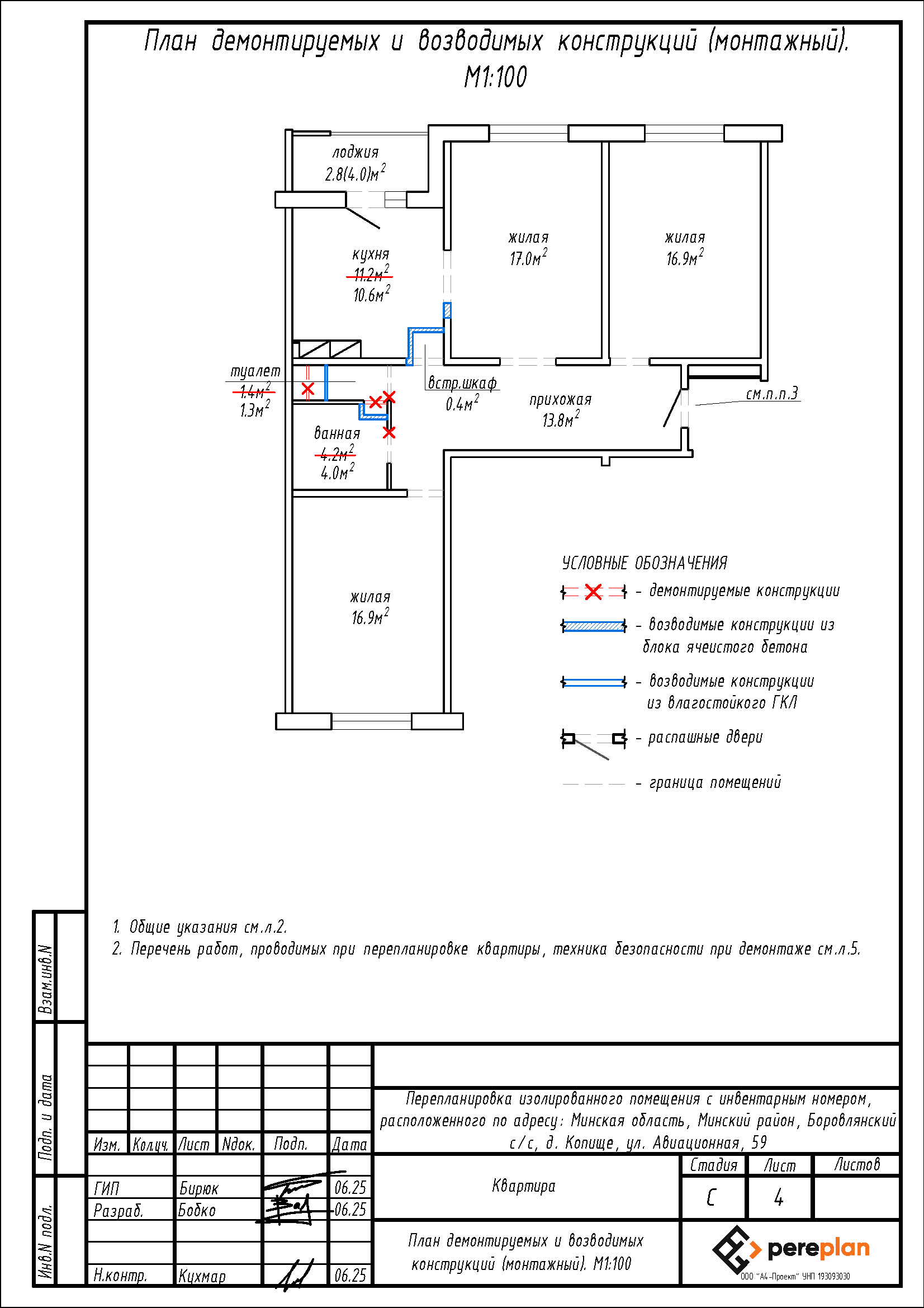
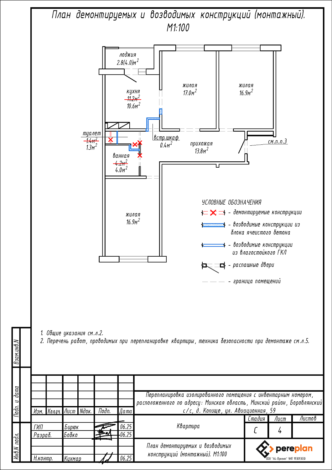
- Устройство перегородки дверного проема между кухней и жилой (уменьшение дверного проема);
- Устройство перегородок между кухней и прихожей, на площади кухни;
- Демонтаж части перегородки дверного проема между ванной и прихожей, туалетом и прихожей (увеличение дверных проемов);
- Изменение площади туалета, ванной за счет демонтажа части перегородки между ванной и туалетом с последующим устройством перегородки на площади ванной;
- Перенос и замена отопительных приборов.
Нами были разработаны следующие разделы проектной документации для согласования в исполкоме:
- АС - архитектурно-строительные решения.
- ОВ - отопление и вентиляция.


