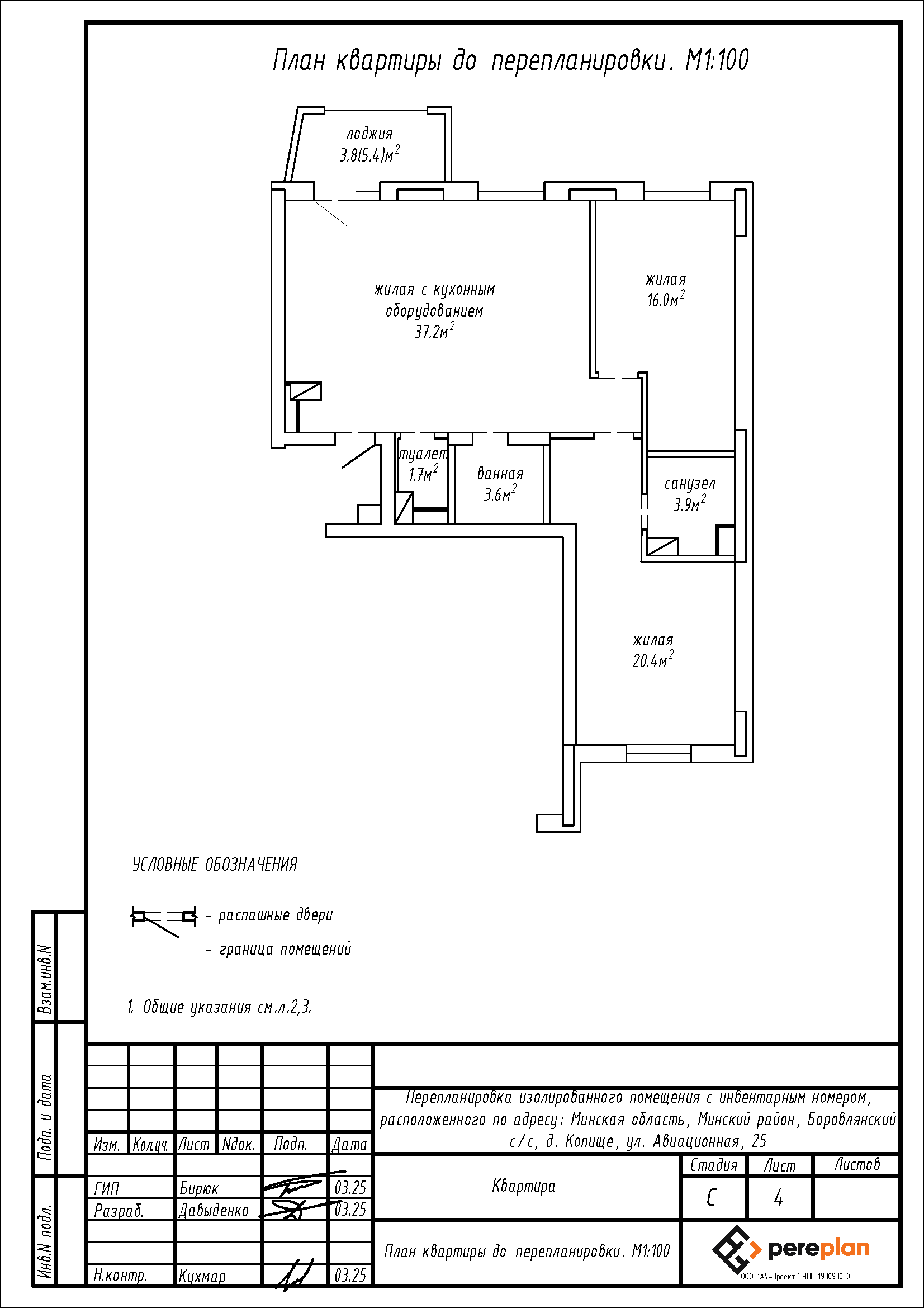
Перепланировка квартиры по ул. Авиационная, 25 в ЖК «Новая Боровая» в д. Копище
Пожелания заказчика:
- Закладка дверного проема жилой с кухонным оборудованием и туалетом;
- Демонтаж части перегородки дверного проема между жилой (10-5) и жилой с кухонным оборудованием с последующим устройством перегородки дверного проема между жилой (10-5) и жилой с кухонным оборудованием (смещение дверного проема);
- Устройство перегородки на площади жилой (10-5), санузла;
- Демонтаж перегородки между ванной и туалетом с последующим образованием нового подсобного помещения (устройство совмещенного санузла);
- Изменение площади жилой (10-3) и санузла за счет демонтажа перегородки между жилой (10-3) и санузлом с последующим устройством перегородки на площади жилой.
Нами были разработаны следующие разделы проектной документации для согласования в исполкоме:
- АС - архитектурно - строительные решения.


