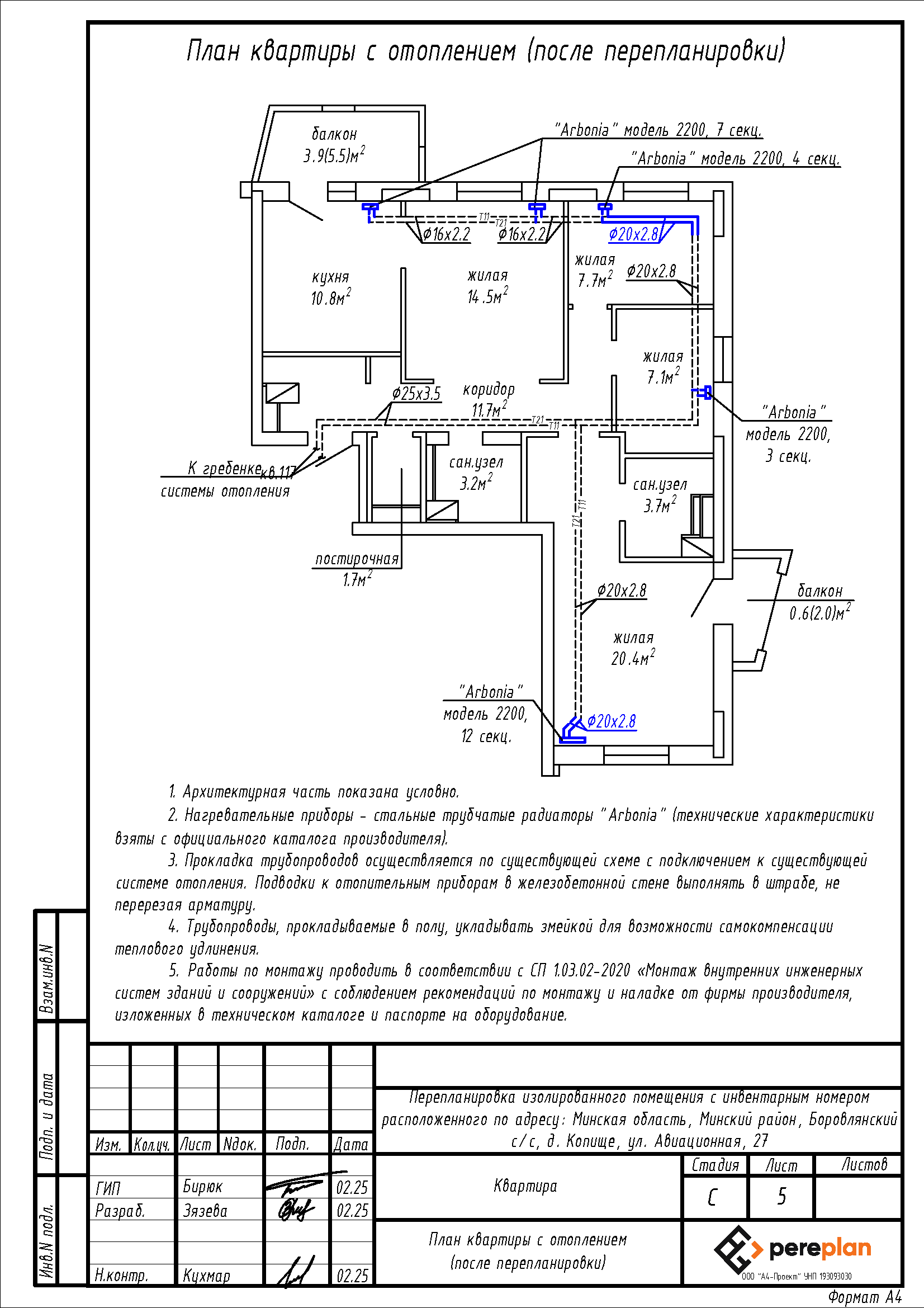
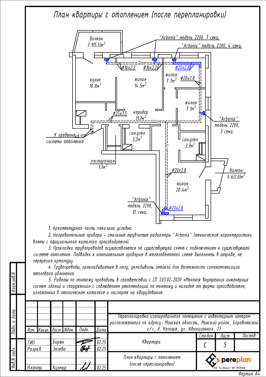
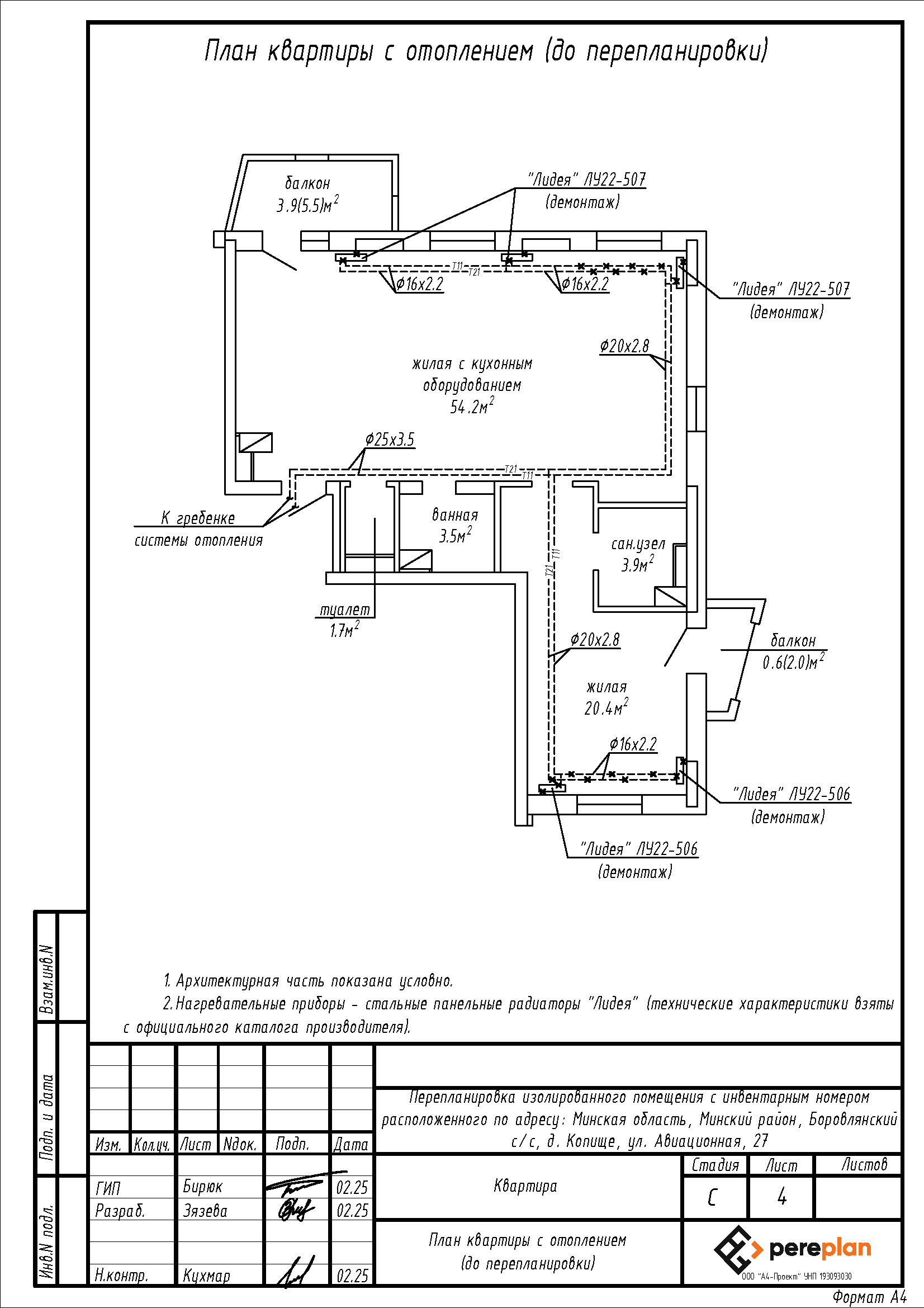
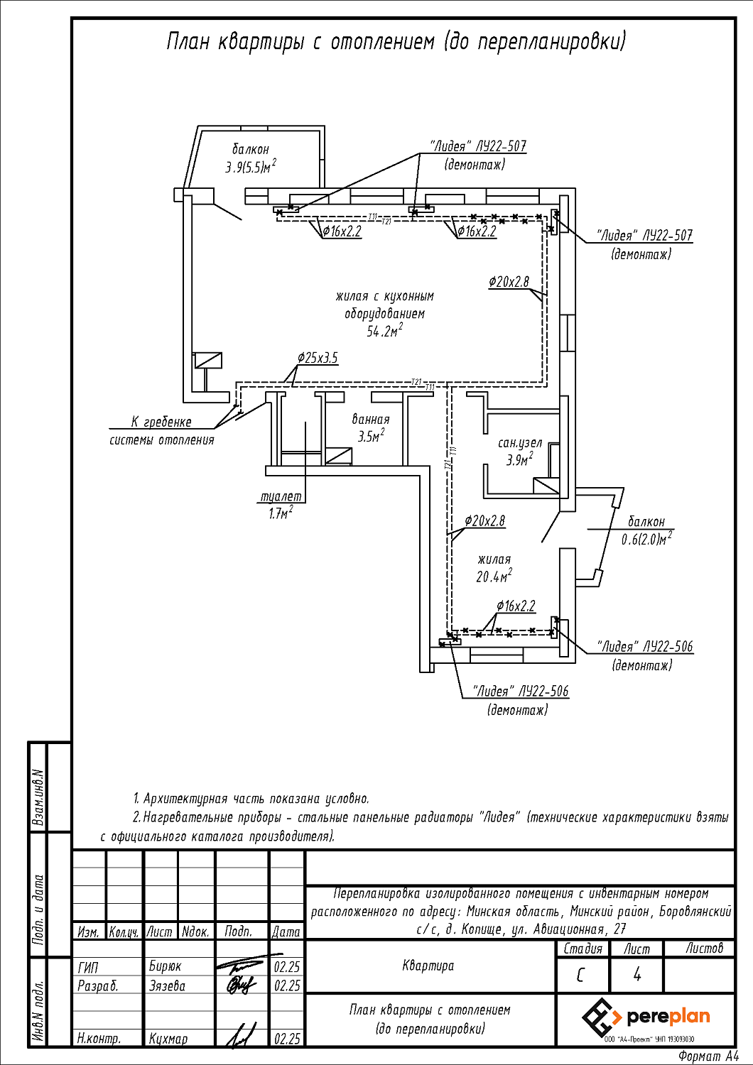
Согласно Постановлению Совета Министров Республики Беларусь №384 проект нужен, если вы планируете следующие работы:
- замена или перенос систем газоснабжения, центрального отопления, мусороудаления, газоудаления;
- устройство гидро-, паро-, тепло- и звукоизоляции;
- изменения в несущих конструкциях.
При получении разрешения исполкома на перепланировку в документе будет прописано, потребуется ли проект для прохождения дальнейшего согласования. Предварительно узнать о необходимости проекта можно на конултации у главного архитектора района. Либо можете написать нам. Мы подскажем.

