Перепланировка квартиры (антресоль) по ул. Авиационная, 12 в ЖК «Новая Боровая»
Пожелания заказчика:
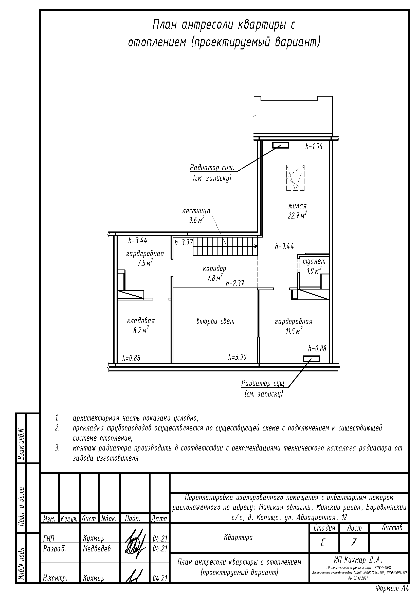
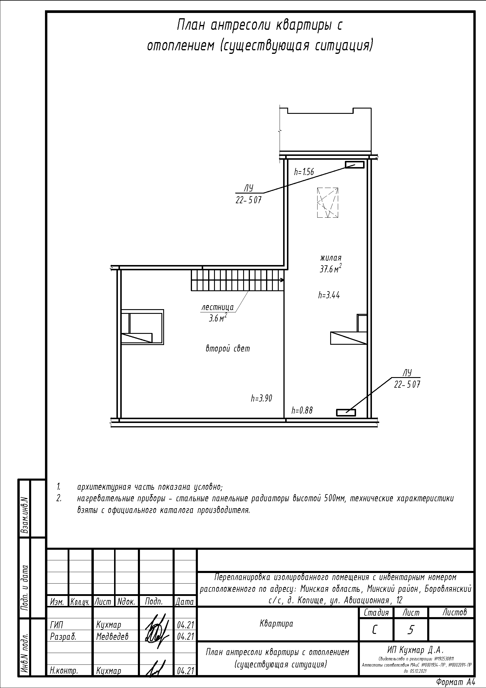
- Увеличение площади существующей антресоли;
- Увеличение площади санузла на 1 этаже;
- Демонтаж перегородок маленького санузла на 1 этаже (убираем его полностью);
- Устройство жилой с кухонным оборудованием на 1 этаже;
- Устройство звукоизоляции стен;
- Устройство жилой, двух гардеробных, кладовой, туалета и коридора на увеличенной площади антресоли;
- Перенос и замена батарей.
Нами были разработаны следующие разделы проектной документации для согласования в исполкоме:
- АС - архитектурно-строительные решения;
- ОВ - отопление и вентиляция.
Комплекс услуг, который мы выполнили:
- Разработка проекта перепланировки.
- Технический надзор.
- Устройство антресоли (аттесованный подряд).
- Аттестованный подряд по батареям и гидроизоляции.
