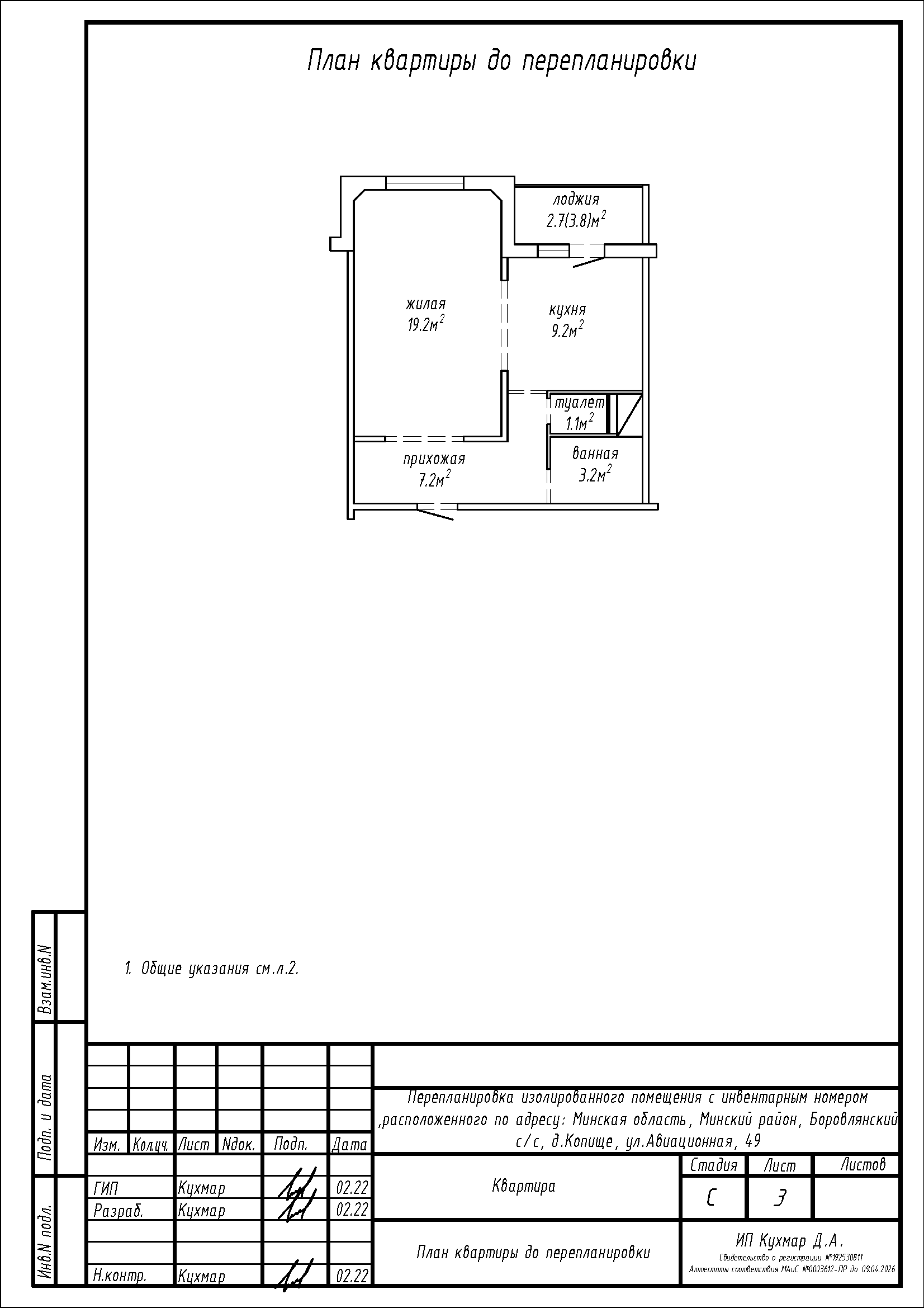
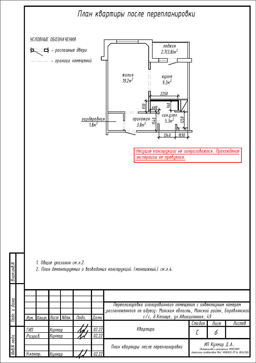
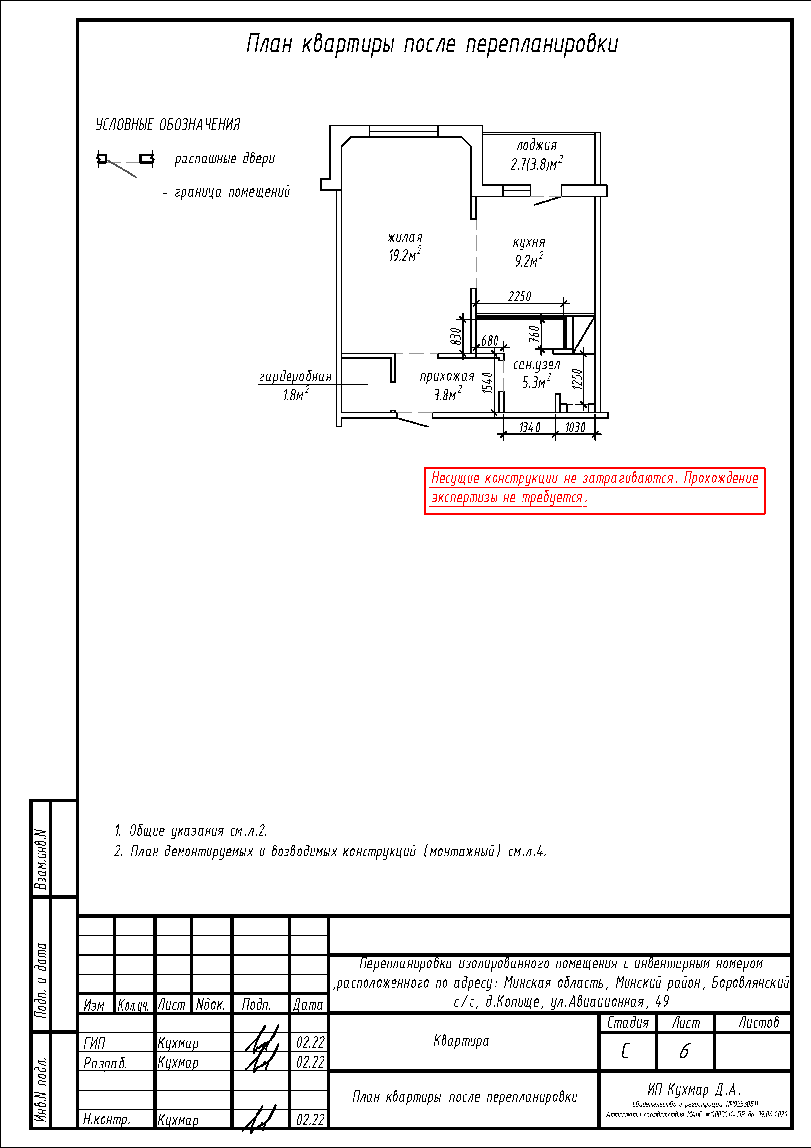
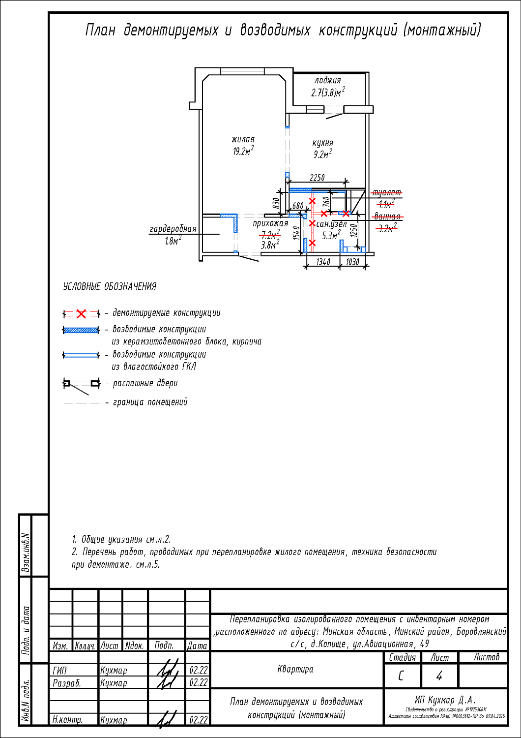
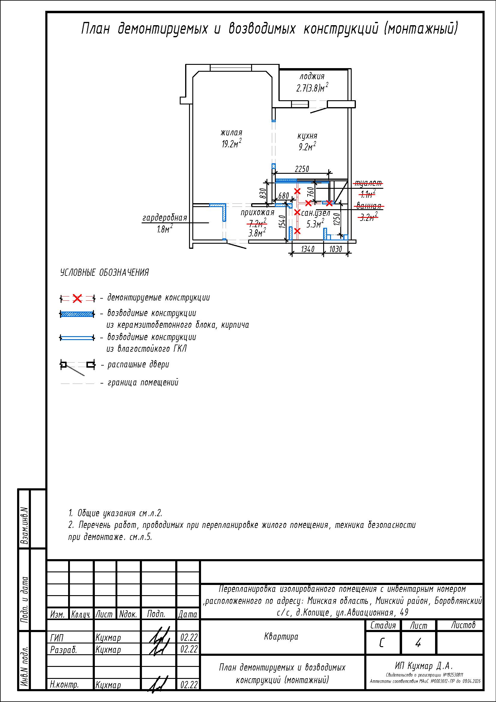
Перепланировка квартиры по ул. Авиационная, 49 в ЖК «Новая Боровая»
Пожелания заказчика:
- Уменьшение дверного проёма между кухней и жилой;
- Устройство гардеробной на части площади прихожей;
- Объединение ванной и туалета в единый санузел;
- Увеличение объединённого санузла за счёт части площади прихожей.
Нами были разработаны следующие разделы проектной документации для согласования в исполкоме:
- АС - архитектурно-строительные решения.
