Размер шрифта
Цвет фона и шрифта
Изображения
Озвучивание текста
Обычная версия сайта
Перепланировка квартир
Полный комплекс услуг по перепланировке квартир в Минске
+375 (44) 535-33-00
+375 (44) 535-33-00
+375 (44) 515-33-00
Заказать звонок
E-mail
inproekt100@gmail.com
Адрес
г. Минск, ул. Чапаева 3, офис 101
Режим работы
Пн. – Пт.: с 9:00 до 18:00
Подать заявку
Услуги
  • Квартиры
    • Дизайн-проект
    • Согласование перепланировки
    • Проект перепланировки
    • Технический надзор за выполнением работ
    • Строительно-монтажные работы
    • Согласование самовольной перепланировки
    • Техническое заключение
    • Обмеры
  • Нежилые помещения
    • Перепланировка, модернизация, реконструкция помещений
    • Обмеры нежилых помещений
  • Мастер-классы
    • Мастер-класс по перепланировке для дизайнеров
    • Мастер-класс по перепланировке для дизайнеров
Акции
Проекты
  • Санузлы
  • Батареи
  • Антресоль
  • Газ на электро
  • Дизайн
  • Кухня в жилую
  • Нежилые
  • Объединение / разделение квартир
  • Проём в несущей
Отзывы
Статьи
Мастер-класс
О нас
  • Лицензии
  • Сотрудники
  • Отзывы
Контакты
г. Минск, ул. Чапаева 3, офис 101
...
+375 (44) 535-33-00
+375 (44) 535-33-00
+375 (44) 515-33-00
Заказать звонок
E-mail
inproekt100@gmail.com
Адрес
г. Минск, ул. Чапаева 3, офис 101
Режим работы
Пн. – Пт.: с 9:00 до 18:00
Заказать звонок
Перепланировка квартир
Услуги
  • Квартиры
    Квартиры
    • Дизайн-проект
    • Согласование перепланировки
    • Проект перепланировки
    • Технический надзор за выполнением работ
    • Строительно-монтажные работы
    • Согласование самовольной перепланировки
    • Техническое заключение
    • Обмеры
  • Нежилые помещения
    Нежилые помещения
    • Перепланировка, модернизация, реконструкция помещений
    • Обмеры нежилых помещений
  • Мастер-классы
    Мастер-классы
    • Мастер-класс по перепланировке для дизайнеров
    • Мастер-класс по перепланировке для дизайнеров
Акции
Проекты
  • Санузлы
  • Батареи
  • Антресоль
  • Газ на электро
  • Дизайн
  • Кухня в жилую
  • Нежилые
  • Объединение / разделение квартир
  • Проём в несущей
Отзывы
Статьи
Мастер-класс
О нас
  • Лицензии
  • Сотрудники
  • Отзывы
Контакты
    Подать заявку
    Перепланировка квартир
    Услуги
    • Квартиры
      Квартиры
      • Дизайн-проект
      • Согласование перепланировки
      • Проект перепланировки
      • Технический надзор за выполнением работ
      • Строительно-монтажные работы
      • Согласование самовольной перепланировки
      • Техническое заключение
      • Обмеры
    • Нежилые помещения
      Нежилые помещения
      • Перепланировка, модернизация, реконструкция помещений
      • Обмеры нежилых помещений
    • Мастер-классы
      Мастер-классы
      • Мастер-класс по перепланировке для дизайнеров
      • Мастер-класс по перепланировке для дизайнеров
    Акции
    Проекты
    • Санузлы
    • Батареи
    • Антресоль
    • Газ на электро
    • Дизайн
    • Кухня в жилую
    • Нежилые
    • Объединение / разделение квартир
    • Проём в несущей
    Отзывы
    Статьи
    Мастер-класс
    О нас
    • Лицензии
    • Сотрудники
    • Отзывы
    Контакты
      +375 (44) 535-33-00
      +375 (44) 515-33-00
      Заказать звонок
      E-mail
      inproekt100@gmail.com
      Адрес
      г. Минск, ул. Чапаева 3, офис 101
      Режим работы
      Пн. – Пт.: с 9:00 до 18:00
      Подать заявку
      Перепланировка квартир
      Телефоны
      +375 (44) 535-33-00
      +375 (44) 515-33-00
      Заказать звонок
      Перепланировка квартир
      • Услуги
        • Услуги
        • Квартиры
          • Квартиры
          • Дизайн-проект
          • Согласование перепланировки
          • Проект перепланировки
          • Технический надзор за выполнением работ
          • Строительно-монтажные работы
          • Согласование самовольной перепланировки
          • Техническое заключение
          • Обмеры
        • Нежилые помещения
          • Нежилые помещения
          • Перепланировка, модернизация, реконструкция помещений
          • Обмеры нежилых помещений
        • Мастер-классы
          • Мастер-классы
          • Мастер-класс по перепланировке для дизайнеров
          • Мастер-класс по перепланировке для дизайнеров
      • Акции
      • Проекты
        • Проекты
        • Санузлы
        • Батареи
        • Антресоль
        • Газ на электро
        • Дизайн
        • Кухня в жилую
        • Нежилые
        • Объединение / разделение квартир
        • Проём в несущей
      • Отзывы
      • Статьи
      • Мастер-класс
      • О нас
        • О нас
        • Лицензии
        • Сотрудники
        • Отзывы
      • Контакты
      Подать заявку
      • +375 (44) 535-33-00
        • Телефоны
        • +375 (44) 535-33-00
        • +375 (44) 515-33-00
        • Заказать звонок
      • г. Минск, ул. Чапаева 3, офис 101
      • inproekt100@gmail.com
      • Пн. – Пт.: с 9:00 до 18:00
      Санузлы

      ул. Авиационная, 37_1

      Перепланировка квартиры в ЖК «Новая Боровая»:
      psd_1.png Комплекс услуг: Проект
      projekt_1.png Разделы проекта: АС
      location_1.png Место: Минский р-н
      JK_1.png ЖК: «Новая Боровая»
      Подробнее
       ул. Авиационная, 37_1
      Фотогалерея
      4 —
      1/4 —
       ул. Авиационная, 37_1
       ул. Авиационная, 37_1
       ул. Авиационная, 37_1
       ул. Авиационная, 37_1
       ул. Авиационная, 37_1
       ул. Авиационная, 37_1
       ул. Авиационная, 37_1
       ул. Авиационная, 37_1
      Оформите заявку на проект, мы свяжемся с вами в ближайшее время и ответим на все интересующие вопросы.
      Заказать проект
      ?
      • Описание
      • Вопросы и ответы

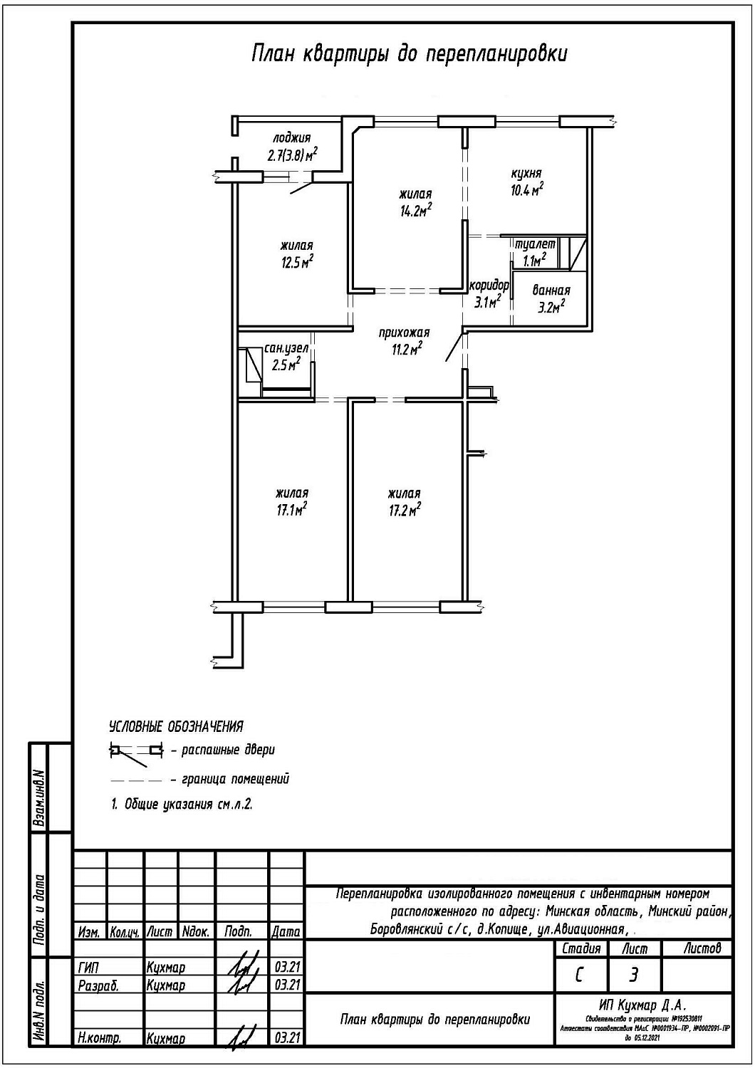
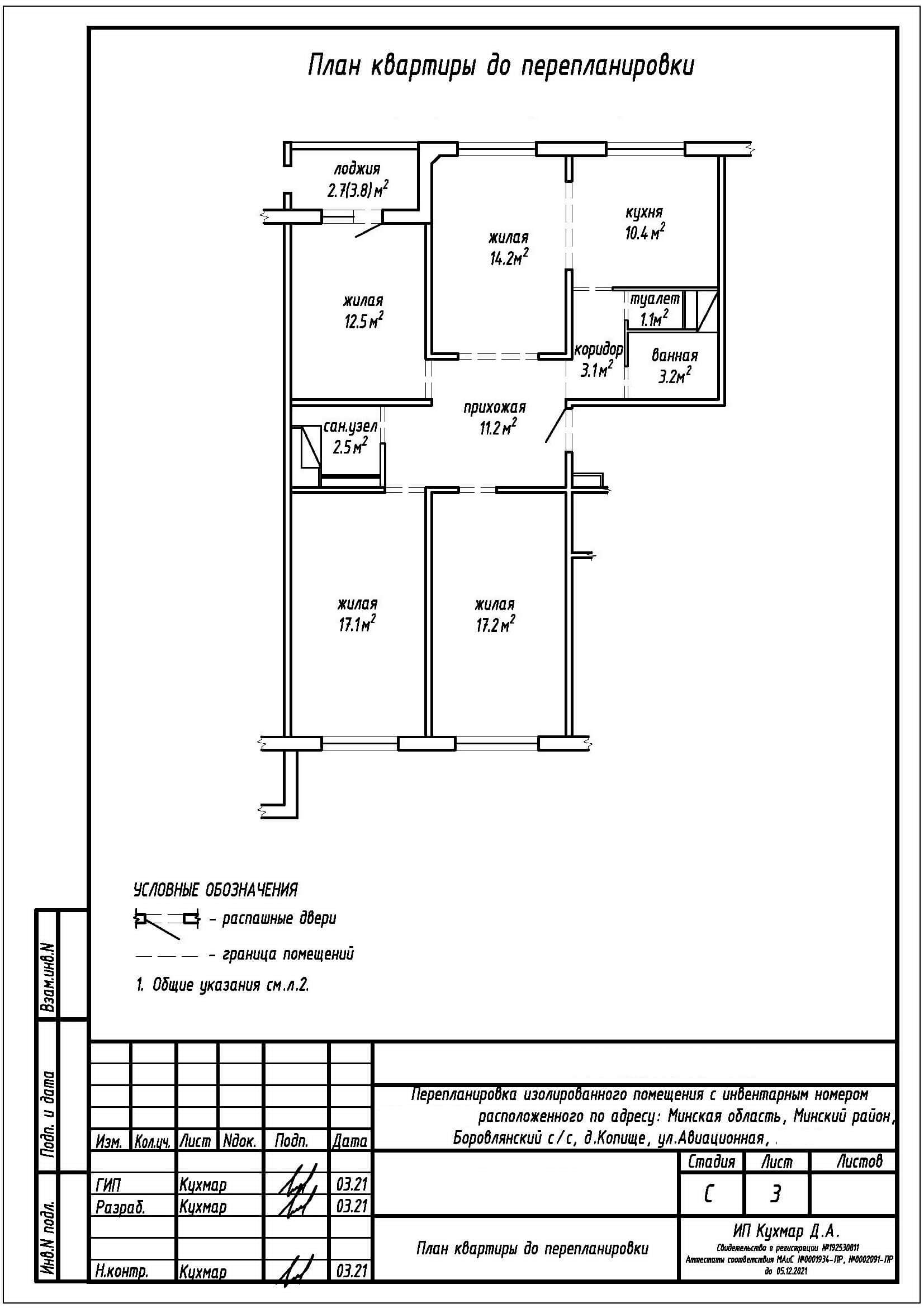
      Перепланировка квартиры по ул. Авиационная, 37 в ЖК «Новая Боровая»

      Пожелания заказчика:

      1. Устройство гардеробной на площади жилой;
      2. Увеличение санузла, но не более чем на 25%;
      3. Устройство гардеробной на площади жилой;
      4. Увеличение площади ванной и туалета;
      5. Сужение дверного проёма между кухней и жилой;
      6. Сужение дверного проёма между жилой и прихожей.
      Нами были разработаны следующие разделы проектной документации для согласования в исполкоме:
      • АС - архитектурно-строительные решения.
      Вопросы и ответы
      Когда нужен проект перепланировки?

      Согласно Постановлению Совета Министров Республики Беларусь №384 проект нужен, если вы планируете следующие работы:

      • замена или перенос систем газоснабжения, центрального отопления, мусороудаления, газоудаления;
      • устройство гидро-, паро-, тепло- и звукоизоляции;
      • изменения в несущих конструкциях.

      При получении разрешения исполкома на перепланировку в документе будет прописано, потребуется ли проект для прохождения дальнейшего согласования. Предварительно узнать о необходимости проекта можно на конултации у главного архитектора района. Либо можете написать нам. Мы подскажем.

      Решение_Страница_1.pngРешение_Страница_2.png

      Заказать проект
      Какие документы необходимы для разработки проекта по перепланировке?
      • Выписка из решения администрации района о разрешении на переустройство и (или) перепланировку жилых помещений;
      • Согласованная план-схема планировки;
      • Технический паспорт квартиры;
      • Свидетельство о регистрации квартиры;
      • Дизайн-проект (если есть);
      • Технические условия, указанные в решении администрации (при необходимости).
      Карта
      загрузка карты...
      Сопутствующие услуги
      Проект перепланировки
      Разработка проектной документации для согласования перепланировки, реконструкции квартиры.
      от 400 BYN
      Технический надзор за выполнением работ
      Технический надзор за выполнением строительно-монтажных работ по перепланировке, реконструкции квартиры.
      от 300 BYN
      Строительно-монтажные работы
      Аттестованный подряд на выполнение работ по отопительным приборам, гидроизоляции, усилению проемов в несущих стенах и прочие виды скрытых работ. Черновые и чистовые сторительно-монтаные работы.
      от 300 BYN
      Похожие проекты
      Санузлы, Батареи
      ул. Авиационная, 35
      Перепланировка квартиры в ЖК «Новая Боровая»:
      psd_1.png Комплекс услуг: Проект
      projekt_1.png Разделы проекта: АС+ОВ
      location_1.png Место: Минский р-н
      JK_1.png ЖК «Новая Боровая»
      Кухня в жилую, Санузлы
      ул. Авиационная, 37
      Реконструкция квартиры в ЖК «Новая Боровая»:
      psd_1.png Комплекс услуг: «Под ключ»
      projekt_1.png Разделы проекта: АС+ОВ+ВК
      location_1.png Место: Минский р-н
      JK_1.png ЖК «Новая Боровая»
      Статьи
      24 апреля 2020
      7 основных этапов согласования перепланировки квартиры
      Какой процесс прохождения согласования перепланировки квартиры в Беларуси? Узнайте про основные этапы в данной статье.
      Назад к списку

      +375 (44) 535-33-00
      +375 (44) 535-33-00
      +375 (44) 515-33-00
      Заказать звонок
      E-mail
      inproekt100@gmail.com
      Адрес
      г. Минск, ул. Чапаева 3, офис 101
      Режим работы
      Пн. – Пт.: с 9:00 до 18:00
      Заказать звонок
      inproekt100@gmail.com
      г. Минск, ул. Чапаева 3, офис 101
      Услуги
      Квартиры
      Нежилые помещения
      Мастер-классы
      Компания
      Лицензии
      Сотрудники
      Отзывы
      Информация
      Вопрос-ответ
      Как оформить заказ
      платежные системы 1.png
      © 2026 Pereplan.by
      Общество с ограниченной ответственностью «А4-Проект»
      Свидетельство о государственной регистрации 193093030 выдано 13.06.2018 Минским горисполкомом.
      Юр. Адрес: Беларусь, г.Минск, ул. Чапаева, 3-101.
      Политика конфиденциальности
      Договор оферты
      Главная Услуги Проекты Лицензии Статьи FAQ Скидки Отзывы Поиск Сотрудники Контакты