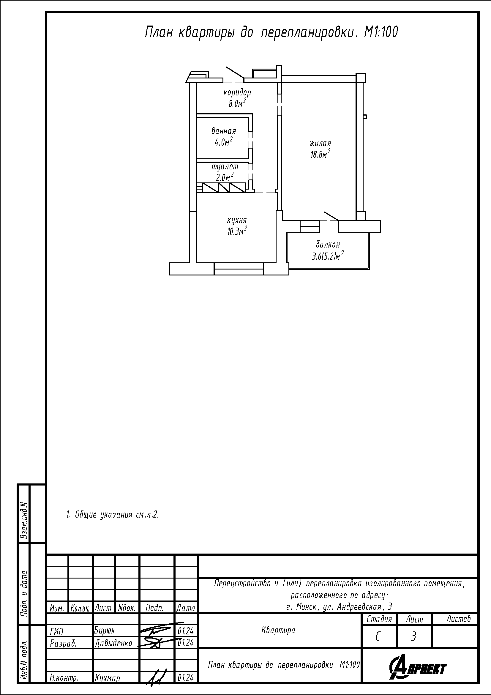
Перепланировка квартиры по ул. Андреевская, 3 в г. Минске
Пожелания заказчика:
- Демонтаж подоконного простенка меду жилой комнатой и балконом при условии установки оконного (дверного) блока;
- Объединение кухни и жилой в единое пространство;
- Разборка существующих и устройство новых перегородок для изменения площади подсобных помещений в квартире.
Нами были разработаны следующие разделы проектной документации для согласования в исполкоме:
- АС - архитектурно-строительные решения.
