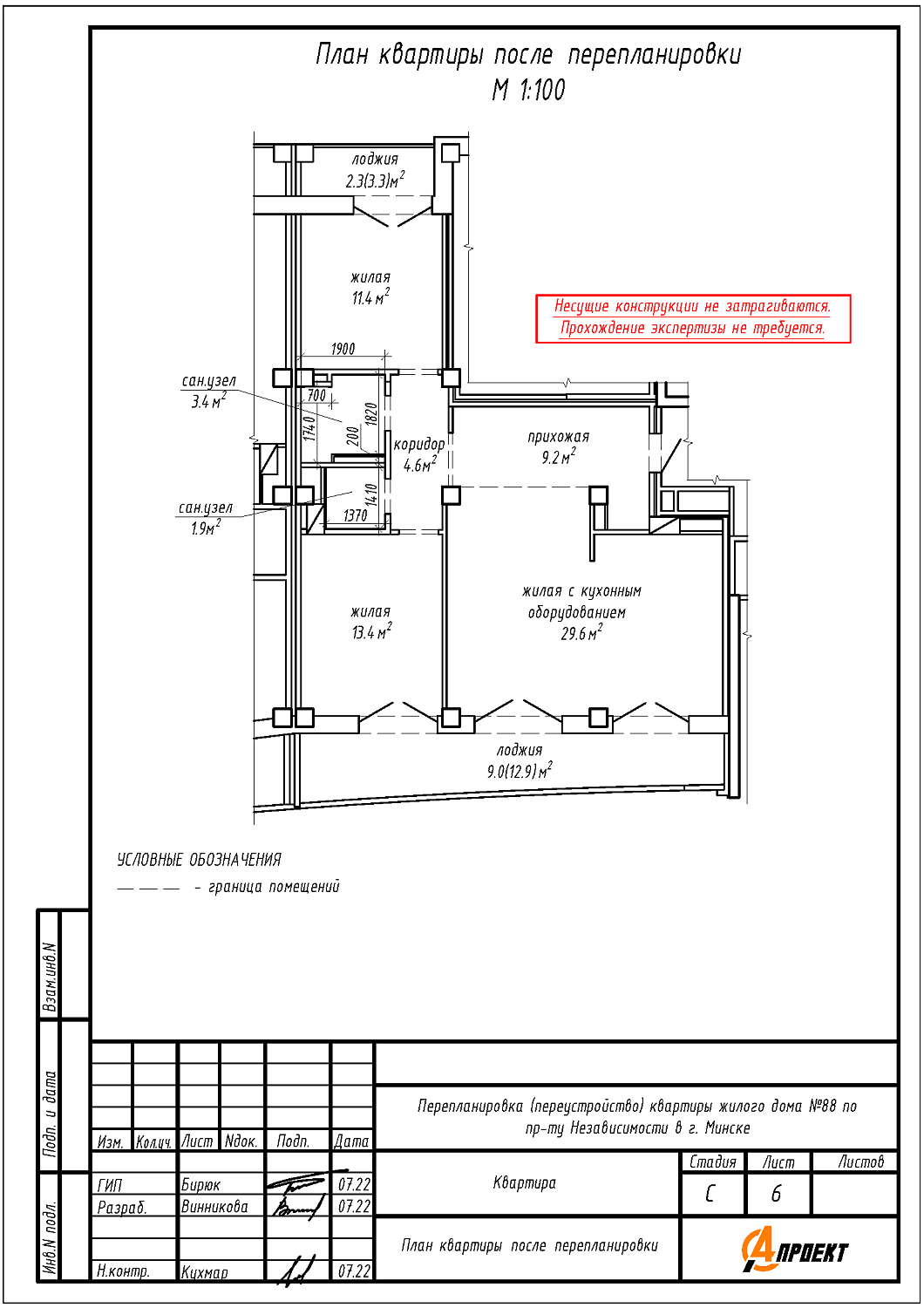
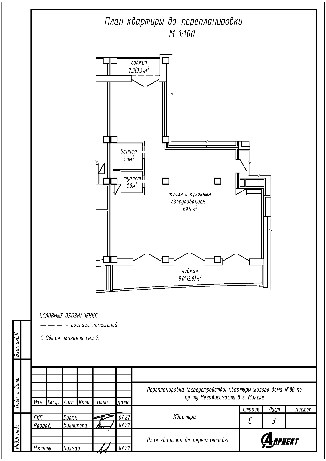
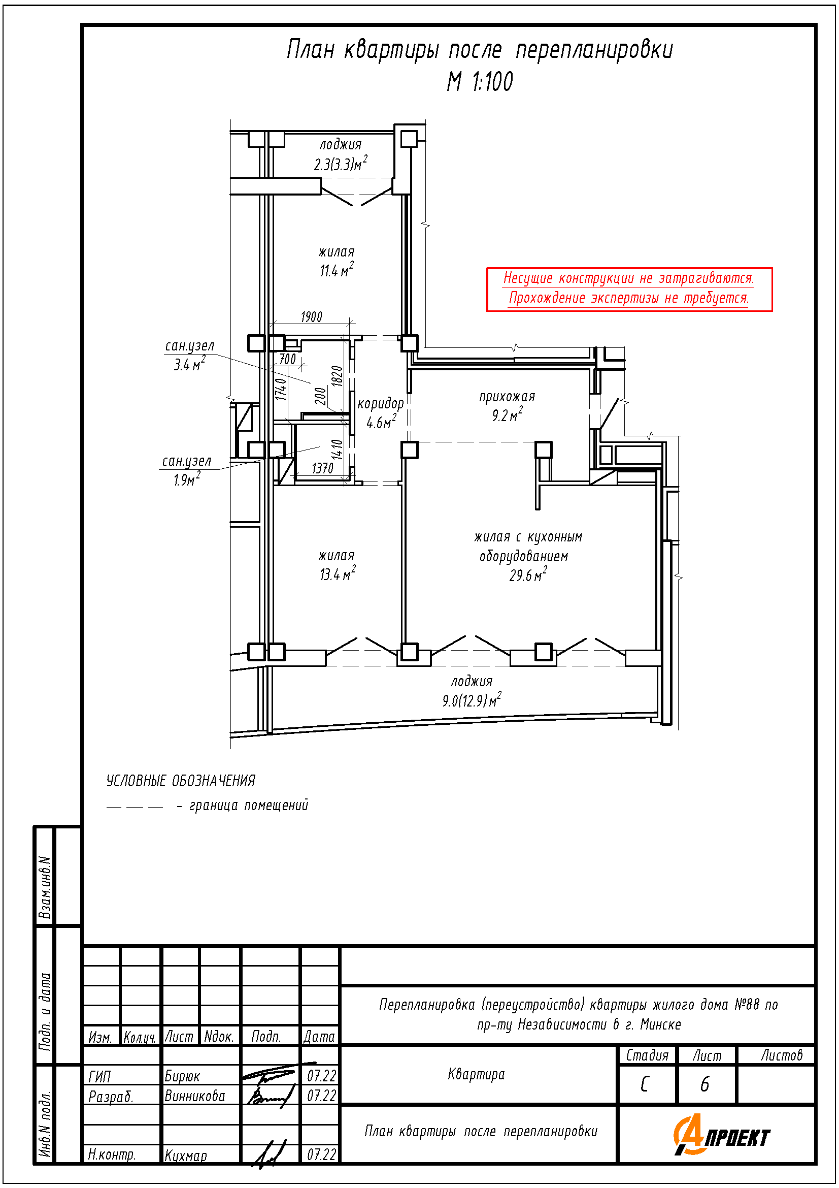
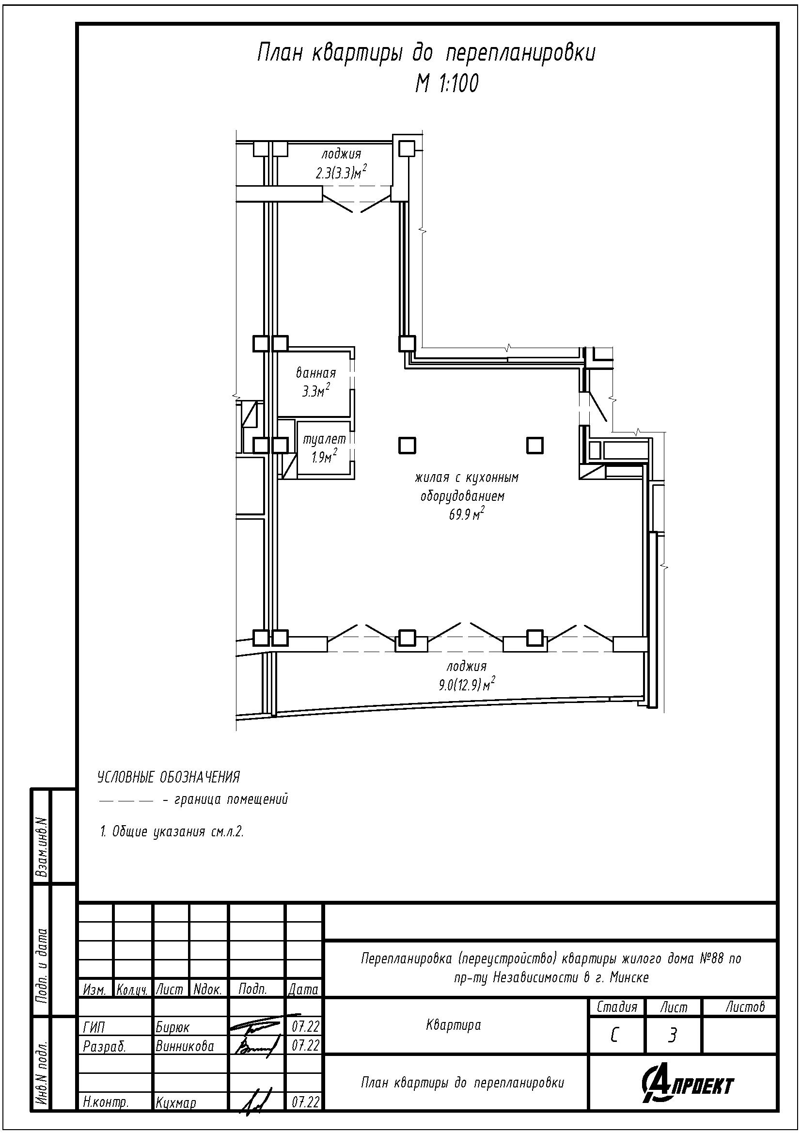
Перепланировка квартиры по пр-ту Независимости, 88 в ЖК «Парк Челюскинцев»
Пожелания заказчика:
- Разделение общего помещения жилой с кухонным оборудованием на жилую с кухонным оборудованием, две жилые, коридор и прихожую;
- Устройство санузла на площади существующей ванной;
- Устройство санузла на площади существующего туалета;
- Смена направления открывания входной двери.
Нами были разработаны следующие разделы проектной документации для согласования в исполкоме:
- АС - архитектурно-строительные решения.
