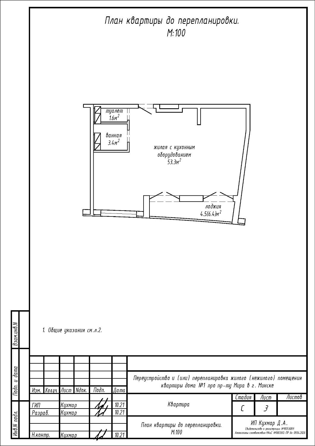
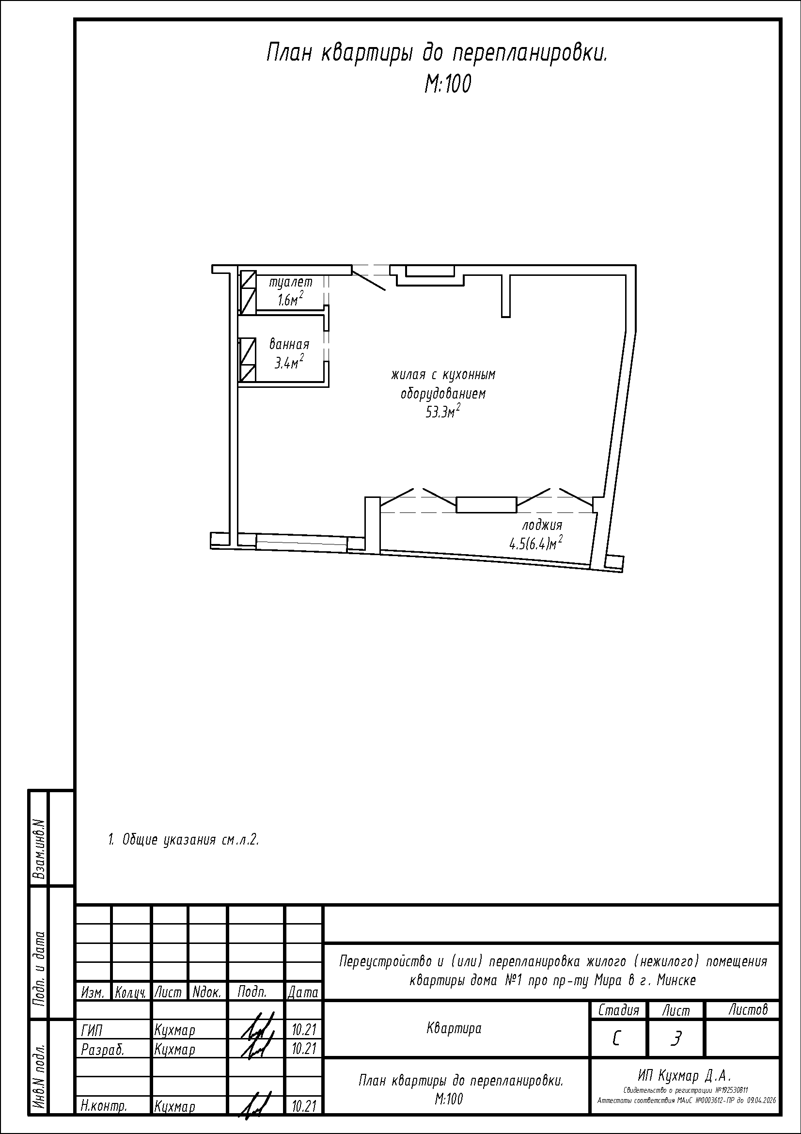
Перепланировка квартиры по проспекту Мира, 1 в ЖК «Минск Мир»
Пожелания заказчика:
- Разделение общей жилой с кухонным оборудованием на кухню, две жилые и коридор;
- Объединение ванной и туалета в единый санузел;
- Увеличение площади санузла за счёт площади жилой с кухонным оборудованием, что не нарушает норму 25%;
Нами были разработаны следующие разделы проектной документации для согласования в исполкоме:
- АС - архитектурно-строительные решения.
