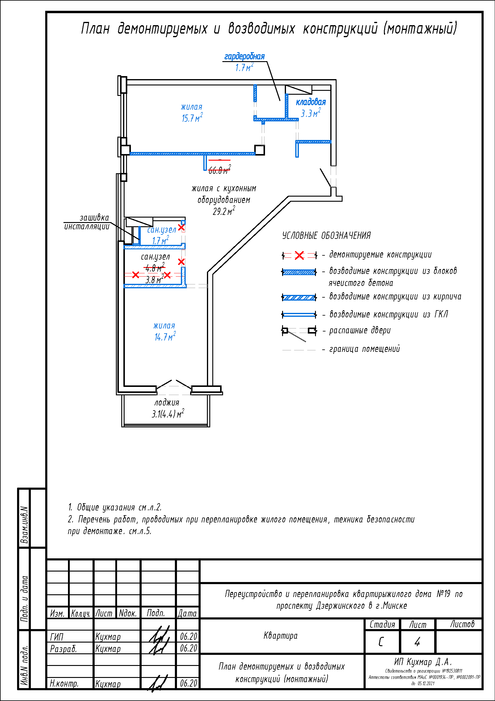
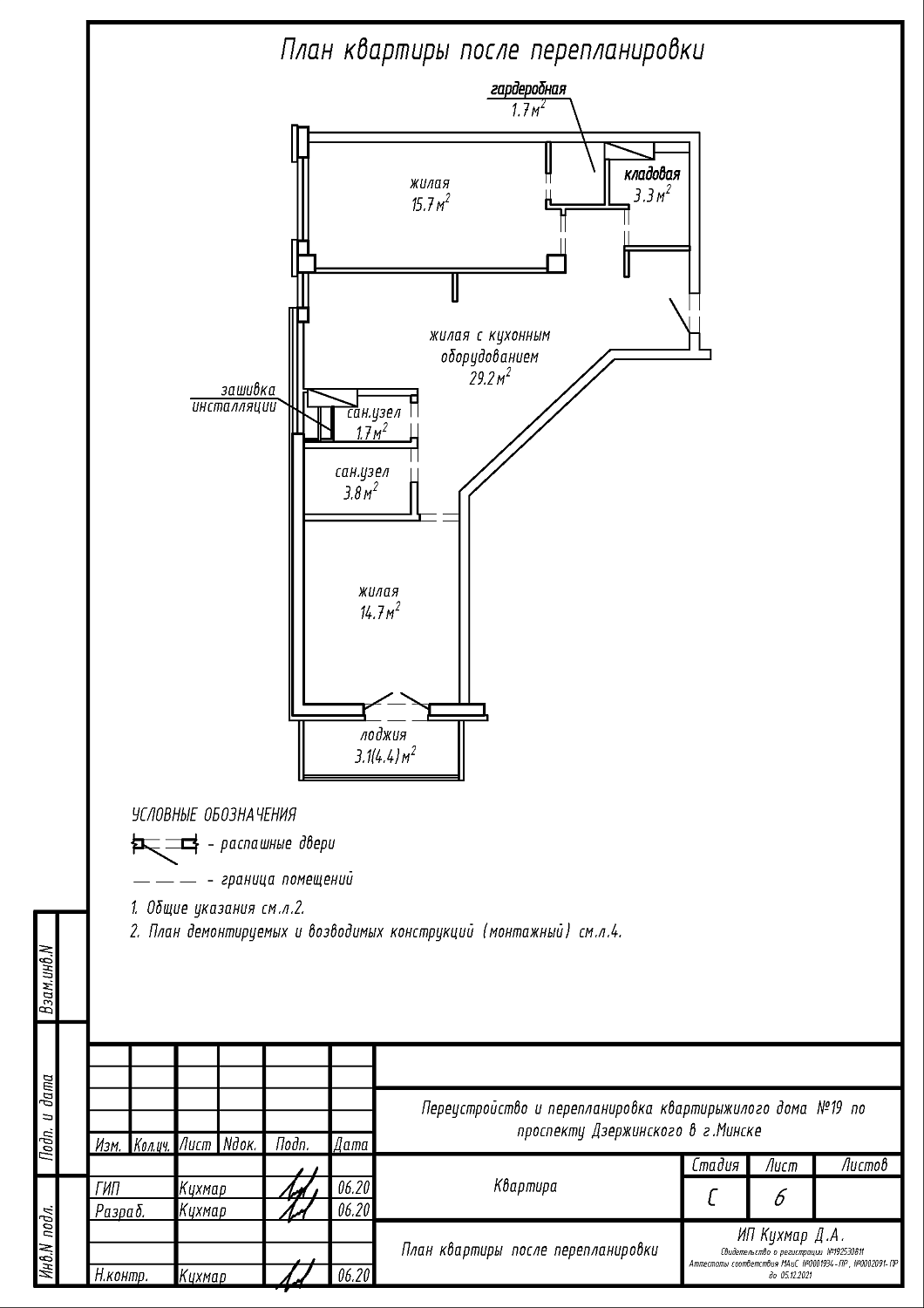
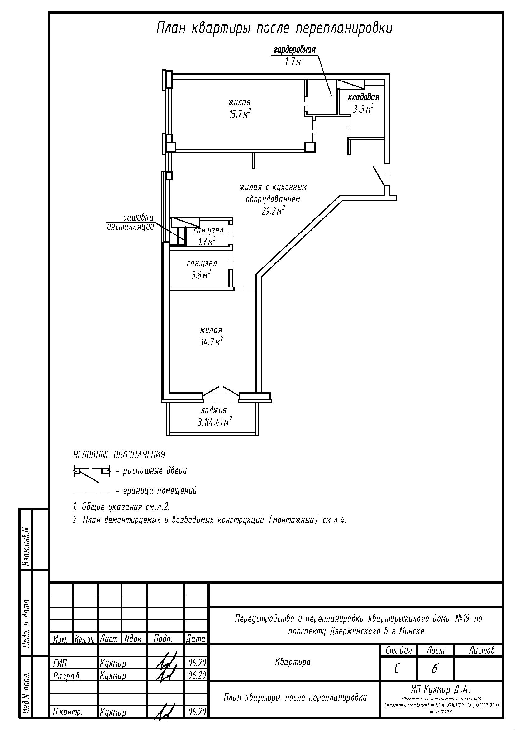
Перепланировка квартиры по пр-ту Дзержинского, 19 в ЖК «Гранд Хаус»
Пожелания заказчика:
- Разделение общего жилого помещения на жилую с кухонным оборудованием, две жилые, гардеробную, кладовую и устройство нового санузла на части площади существующего санузла;
- Устройство зашивки инсталляции в санузле.
Нами были разработаны следующие разделы проектной документации для согласования в исполкоме:
- АС - архитектурно-строительные решения.
