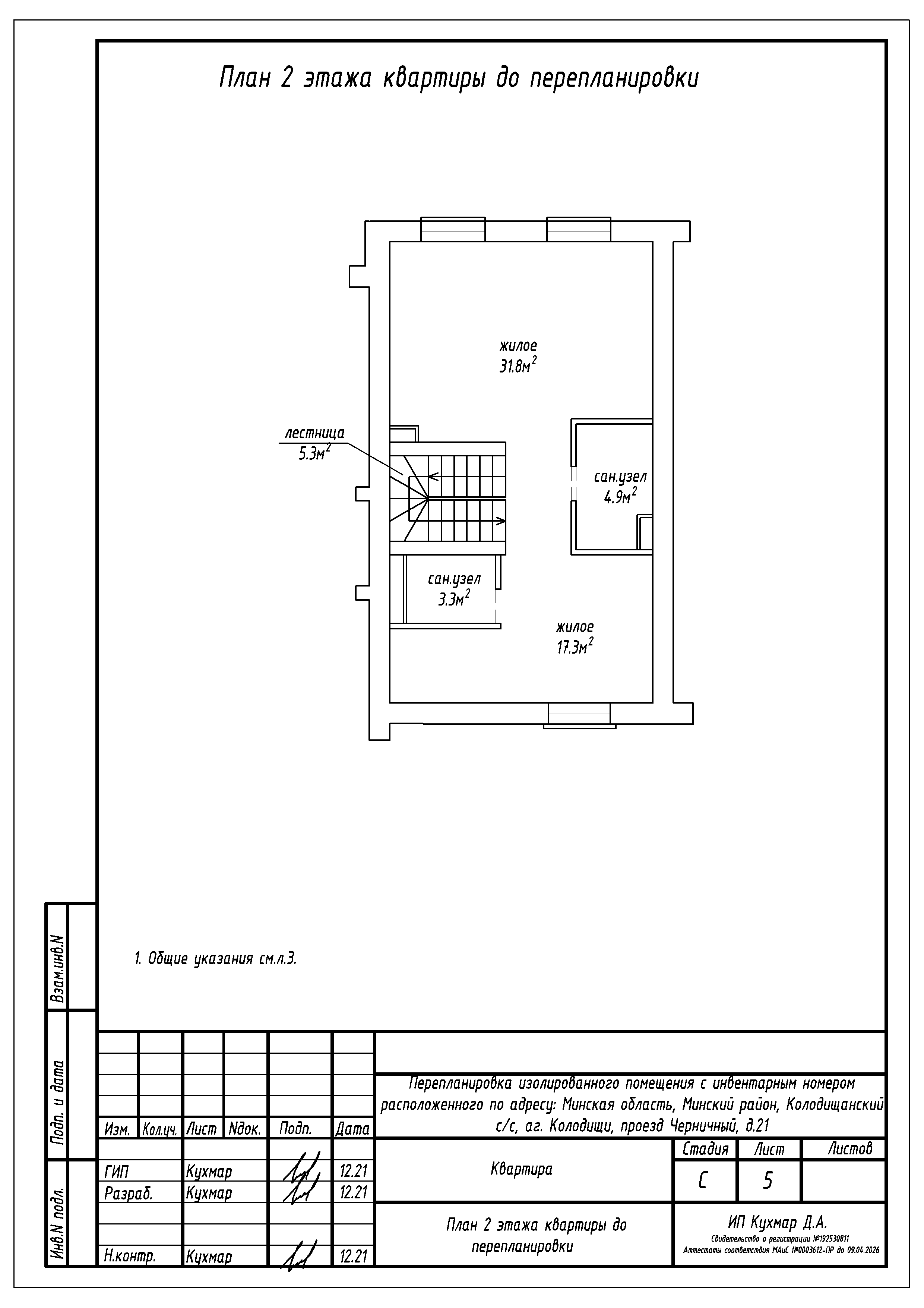
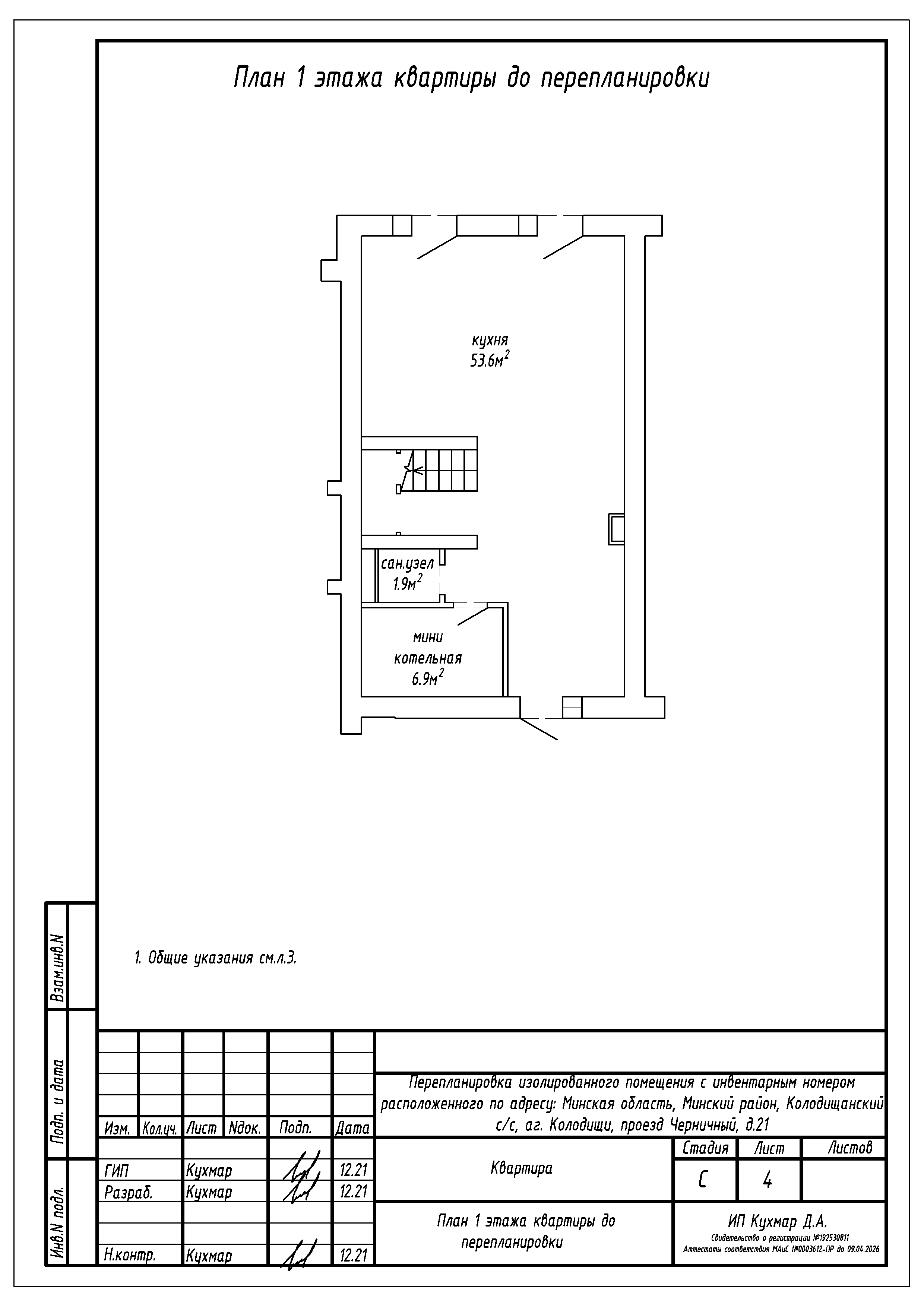
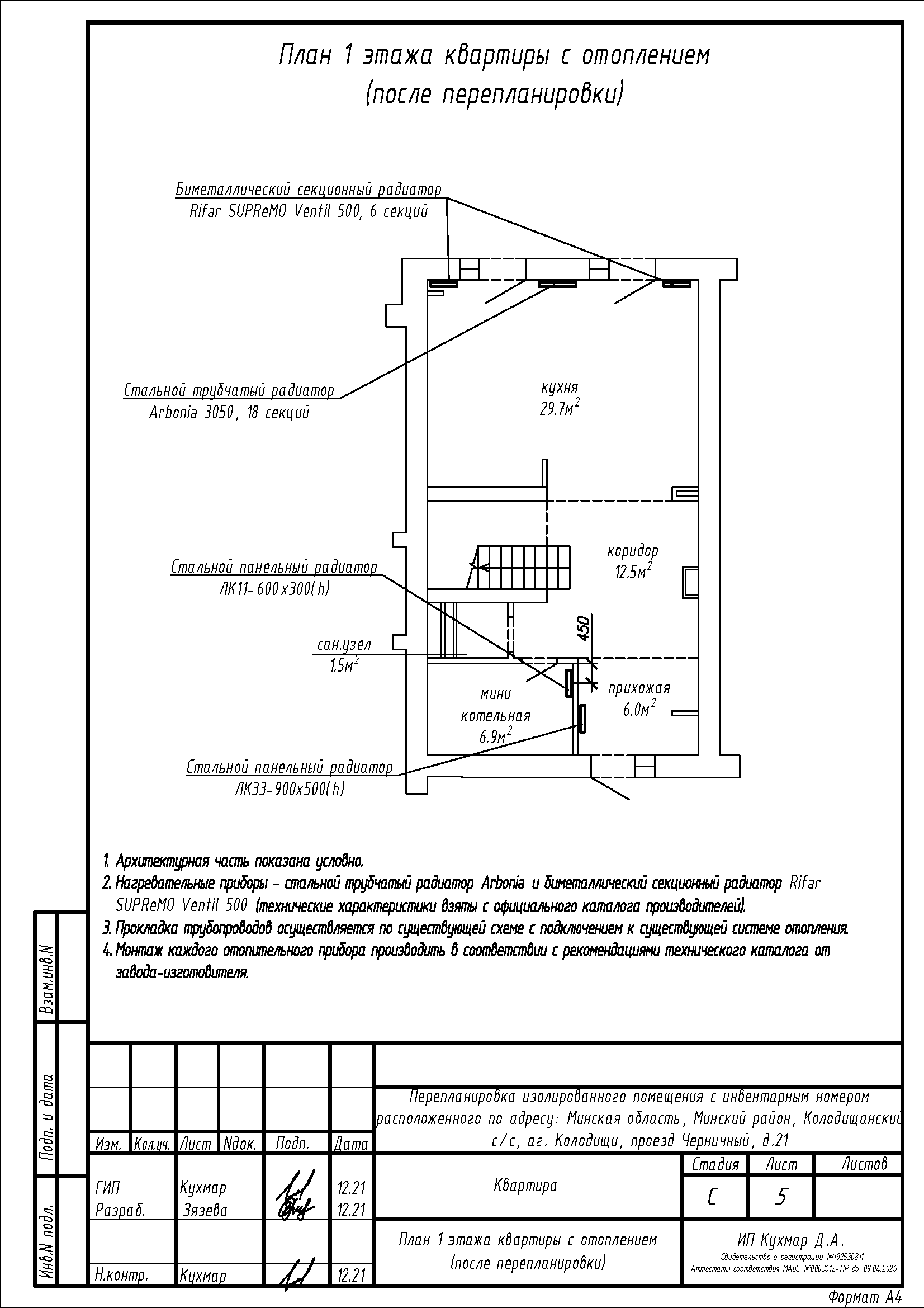
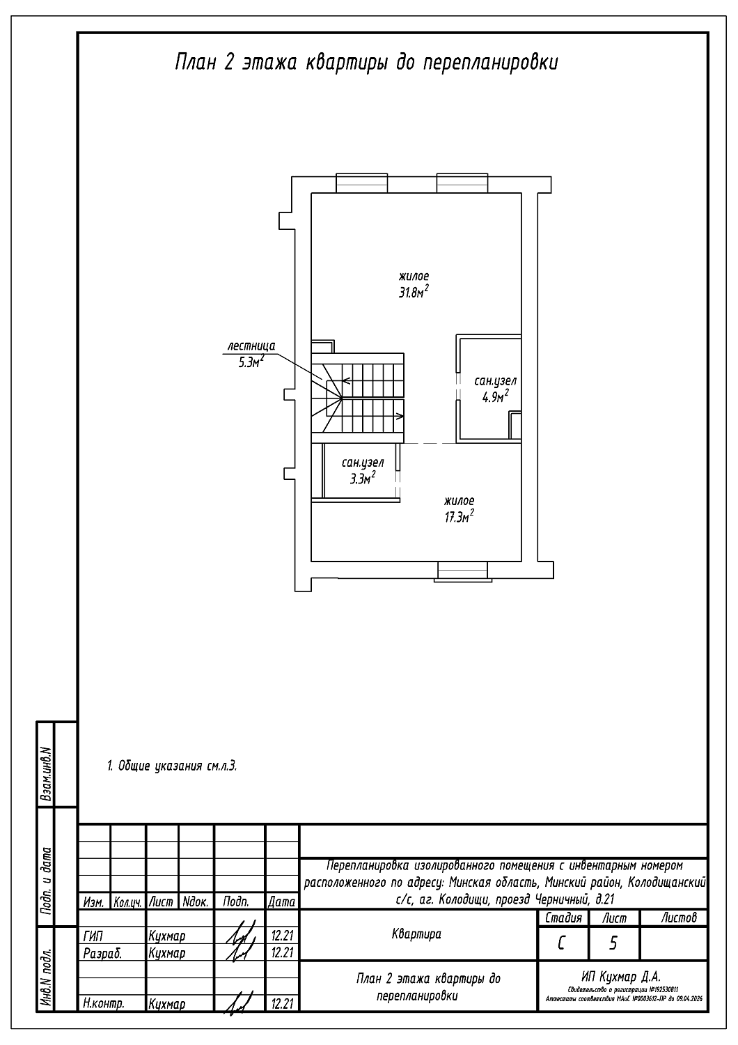
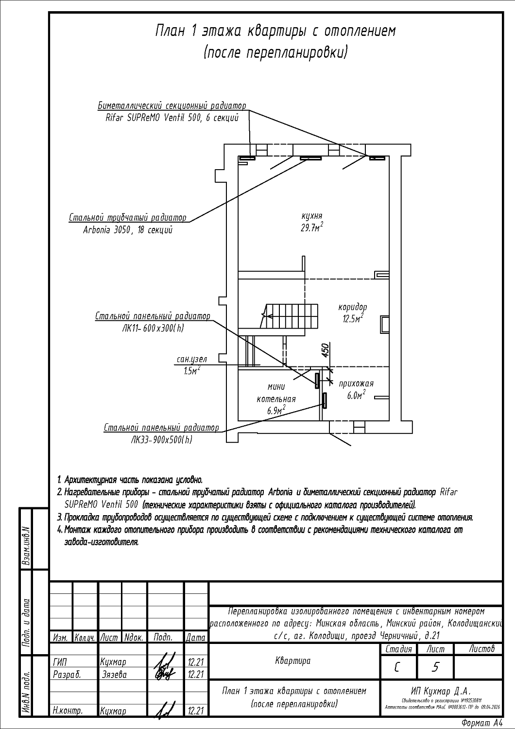
Перепланировка квартиры по проезду Черничному, 21 в ЖК «Зелёная Гавань»
Пожелания заказчика:
- Устройство перегородок на площади кухни с последующим образованием кухни, коридора, прихожей и мини- котельной;
- Устройство перегородок на площади жилого с последующим образованием кабинета, двух жилых, коридора и гардеробной;
- Расширение дверного проёма между санузлом и жилой;
- Устройство перегородок на площади санузлов;
- Замена и перенос приборов отопления.
Нами были разработаны следующие разделы проектной документации для согласования в исполкоме:
- АС - архитектурно-строительные решения;
- ОВ - отопление и вентиляция.
