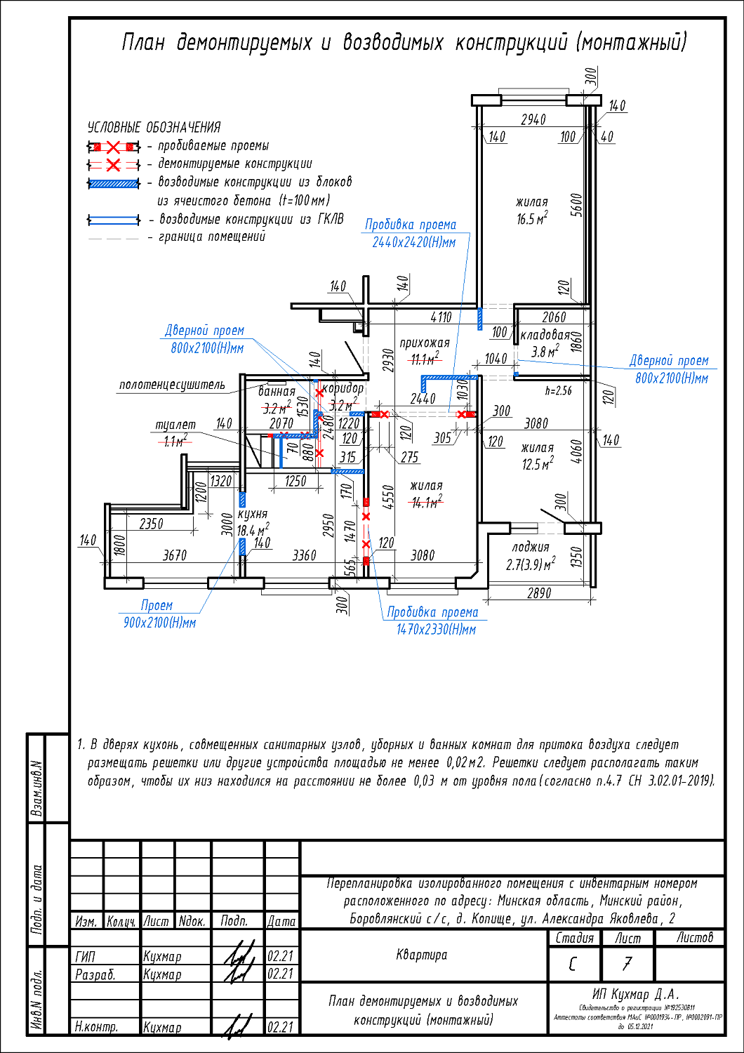
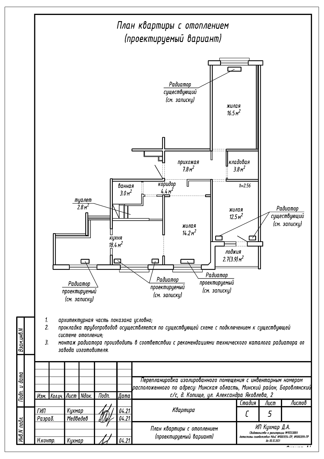
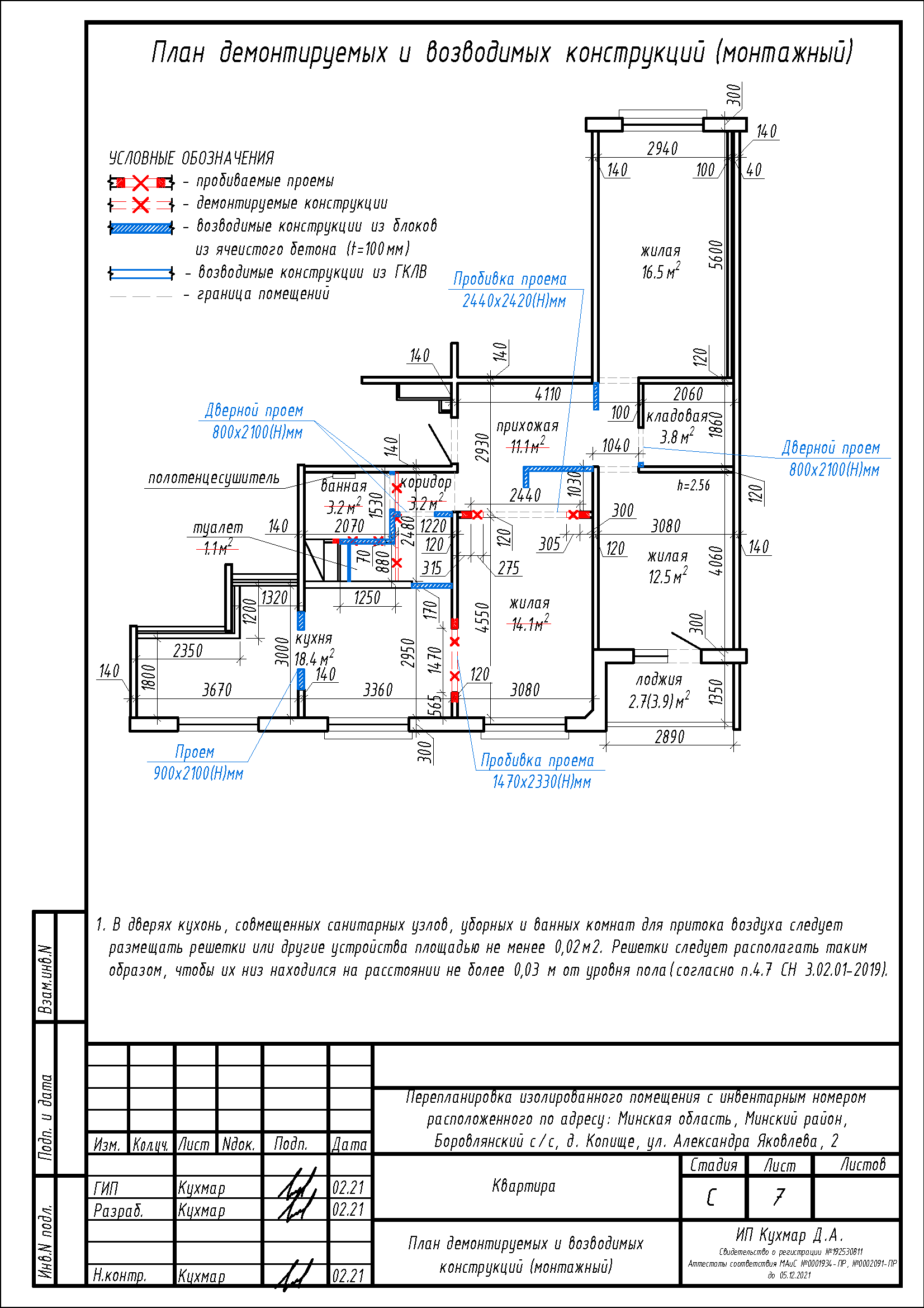
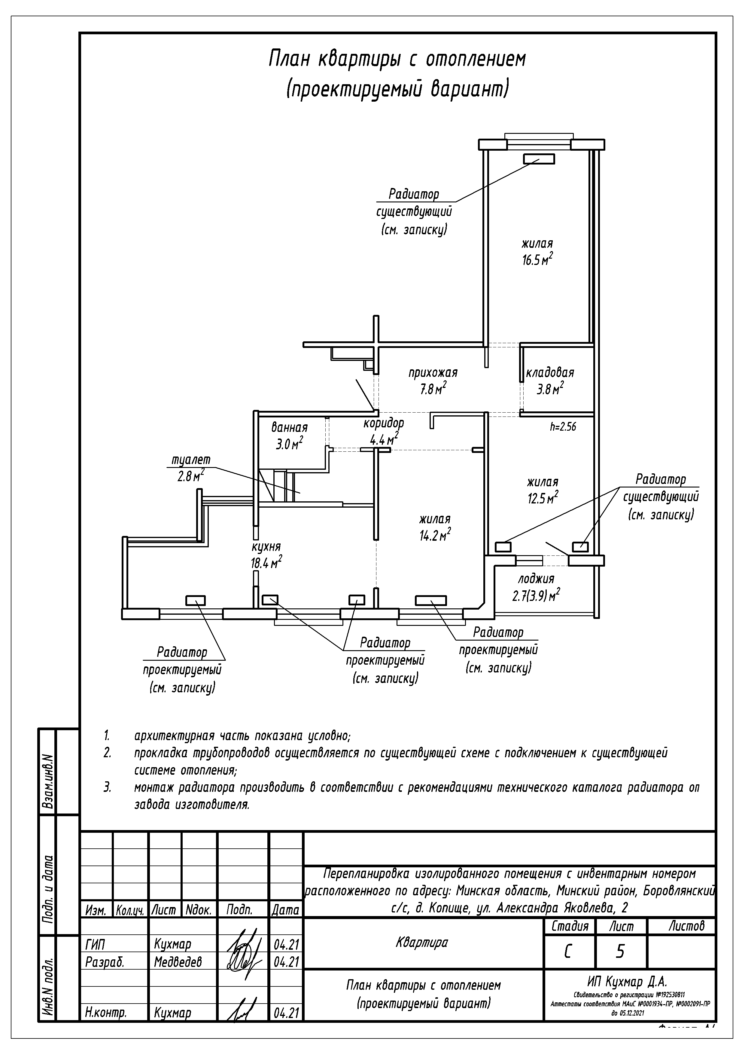
Перепланировка квартиры по ул. Александра Яковлева, 2 в ЖК «Новая Боровая»
Пожелания заказчика:
- Расширение дверных проёмов в несущих стенах между жилой и кухней, прихожей и жилой;
- Увеличение туалета за счёт коридора;
- Замена отопительных приборов.
Нами были разработаны следующие разделы проектной документации для согласования в исполкоме:
- АС - архитектурно-строительные решения;
- ОВ - отопление и вентиляция.
