Реконструкция квартир по ул. Киселёва, 17 в г. Минске
Пожелания заказчика:
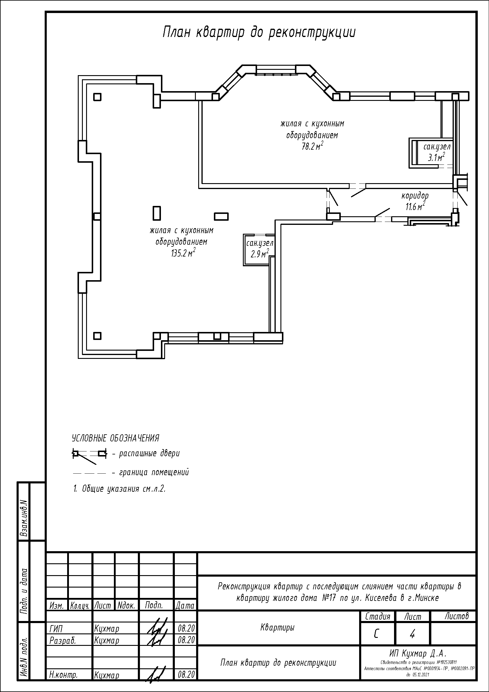
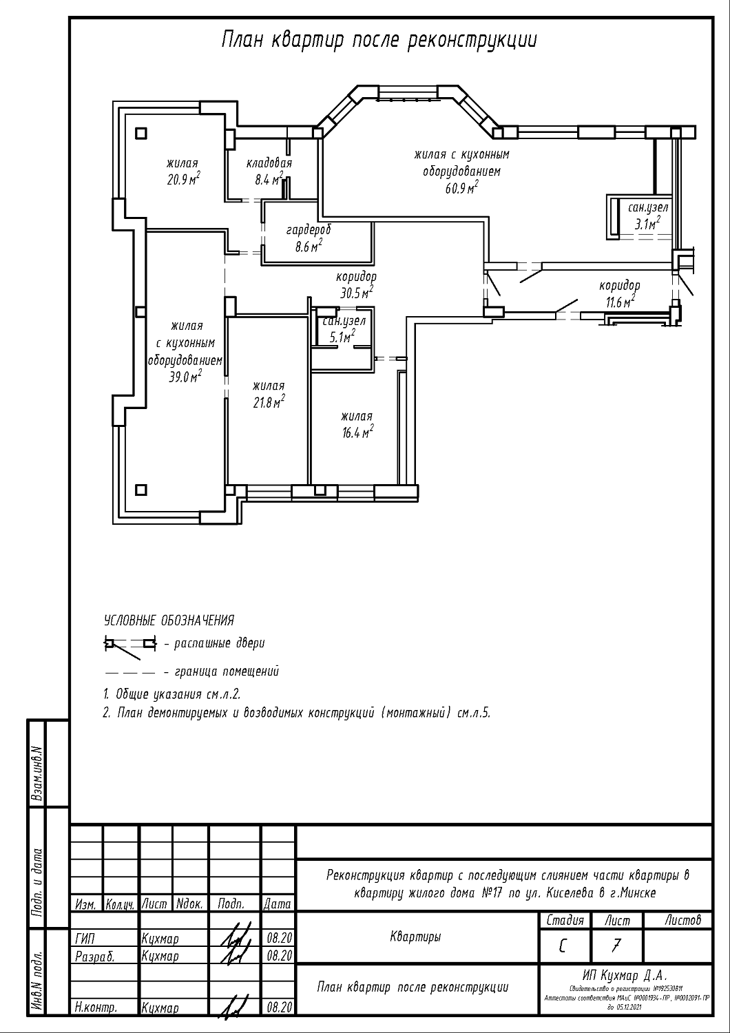
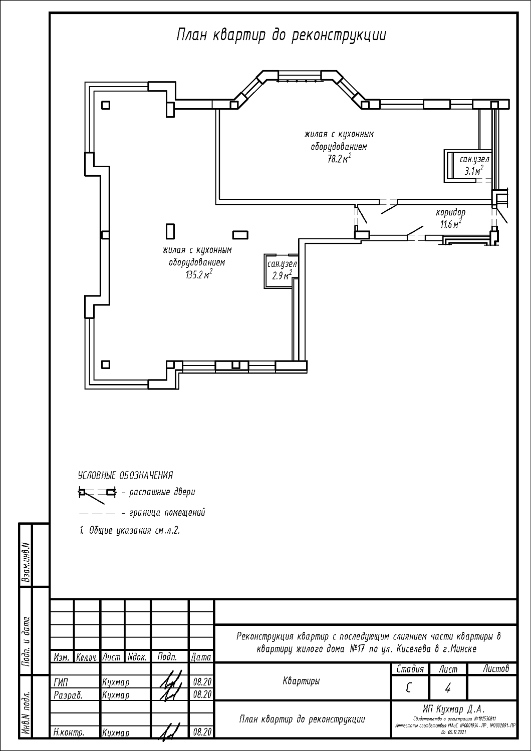
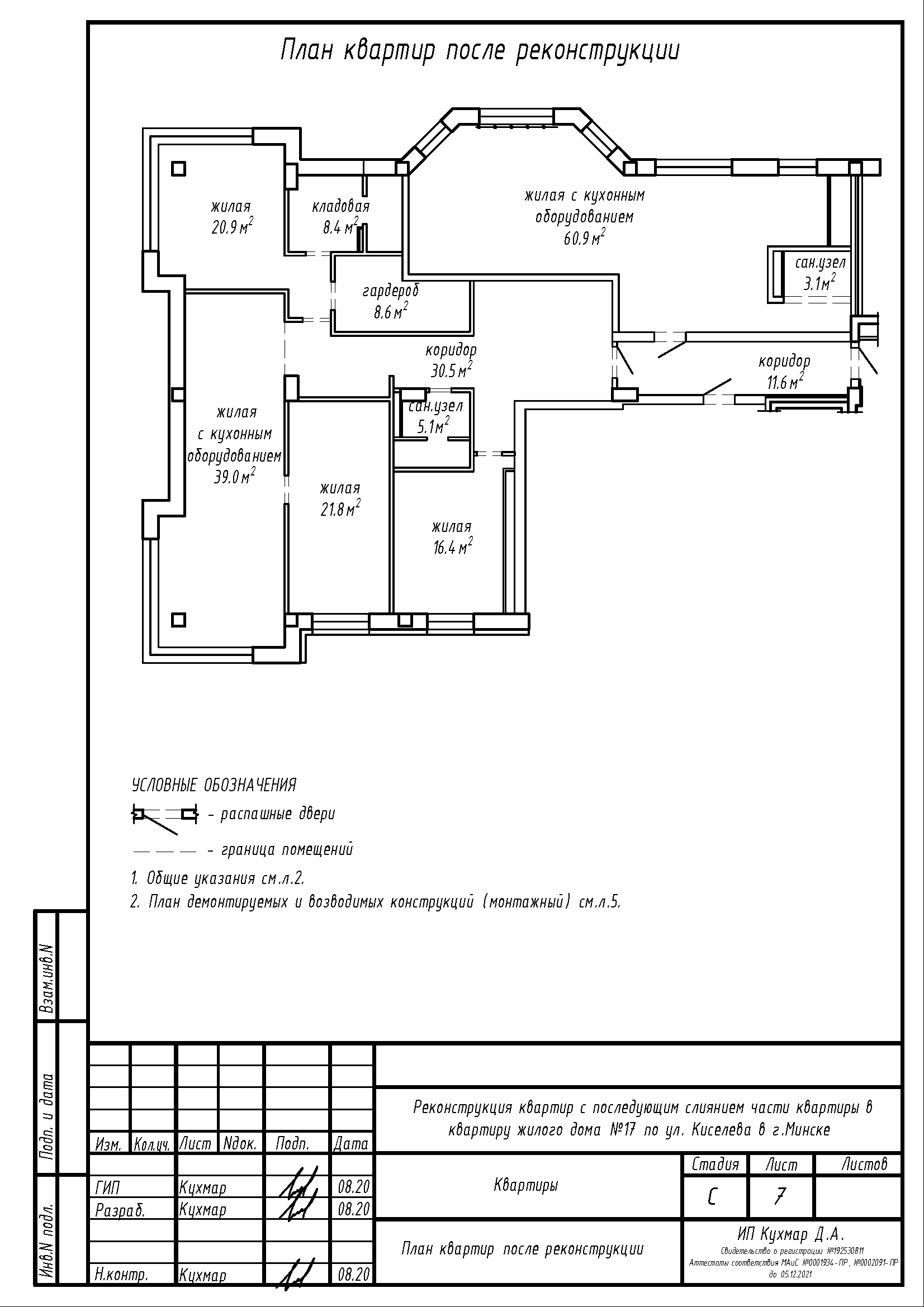
- Демонтаж части стены между квартирами с последующим устройством новой части стены, образованием двух квартир с помещениями: две жилые комнаты с кухонным оборудованием и два санузла;
- Демонтаж перегородок между жилой комнатой с кухонным оборудованием площадью 135.2 м2 и сан.узлом в одной из квартир с последующим устройством новых перегородок, образованием помещений: трех жилых комнат, жилой комнаты с кухонным оборудованием, кладовой, гардероба, коридора и сан .узла с устройством гидроизоляции пола;
- Демонтаж части перегородки между жилой комнатой с кухонным оборудованием площадью 78.2 м2 и сан.узлом в другой квартире.
Нами были разработаны следующие разделы проектной документации для согласования в исполкоме:
- АС - архитектурно-строительные решения.
