Реконструкция (объединение) квартир по Аэродромной, 18 в ЖК «Минск Мир»
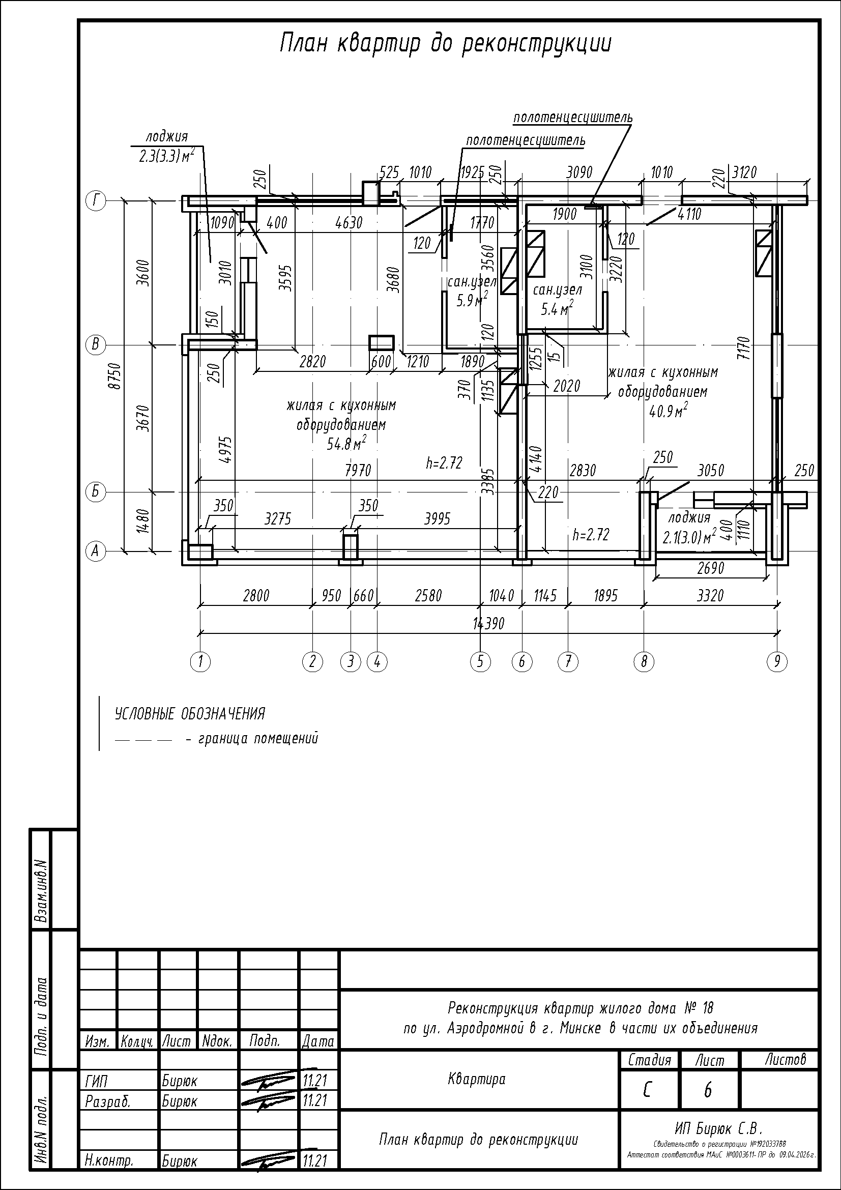
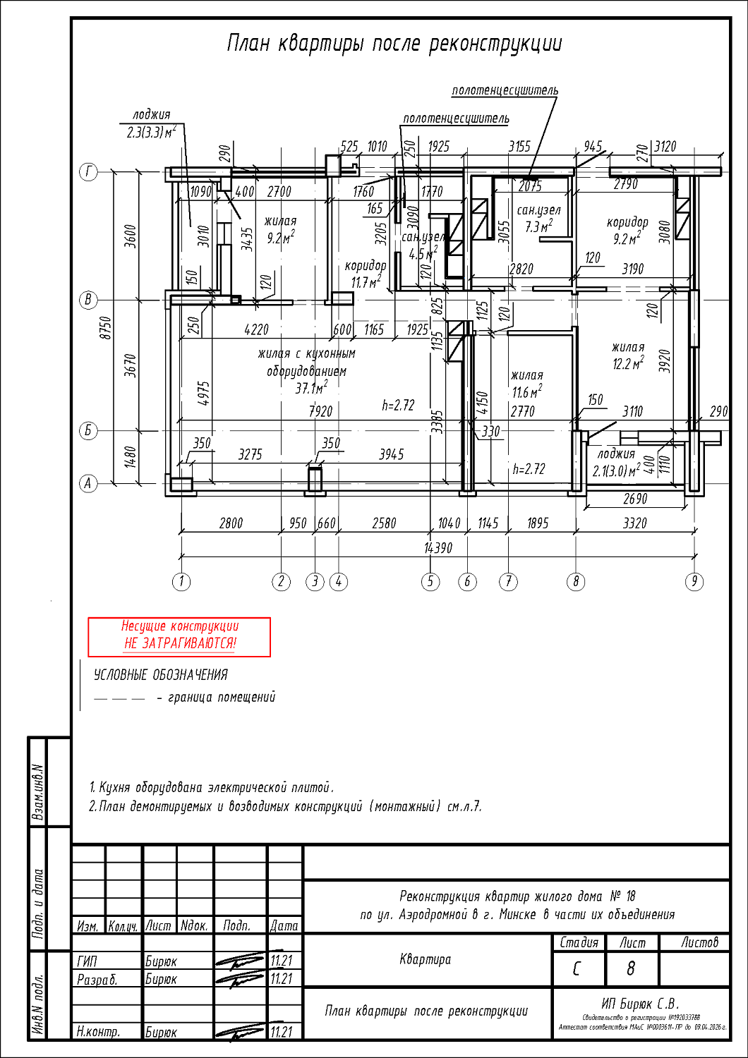
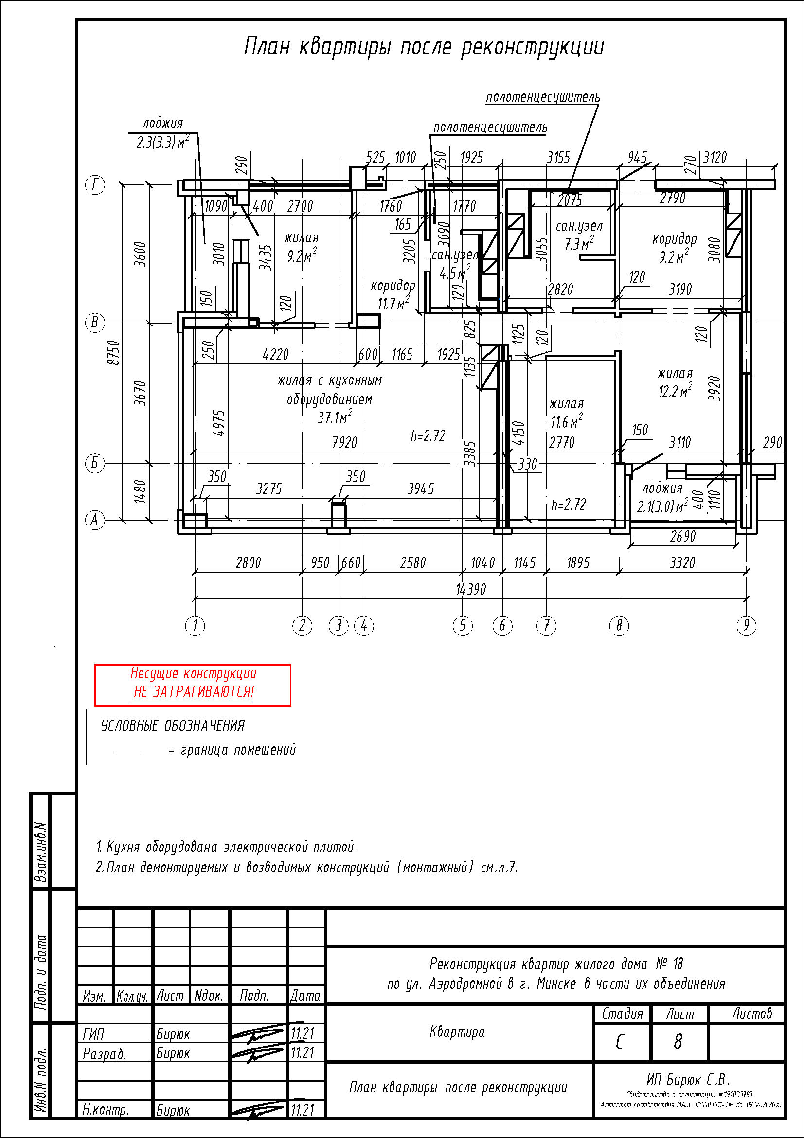
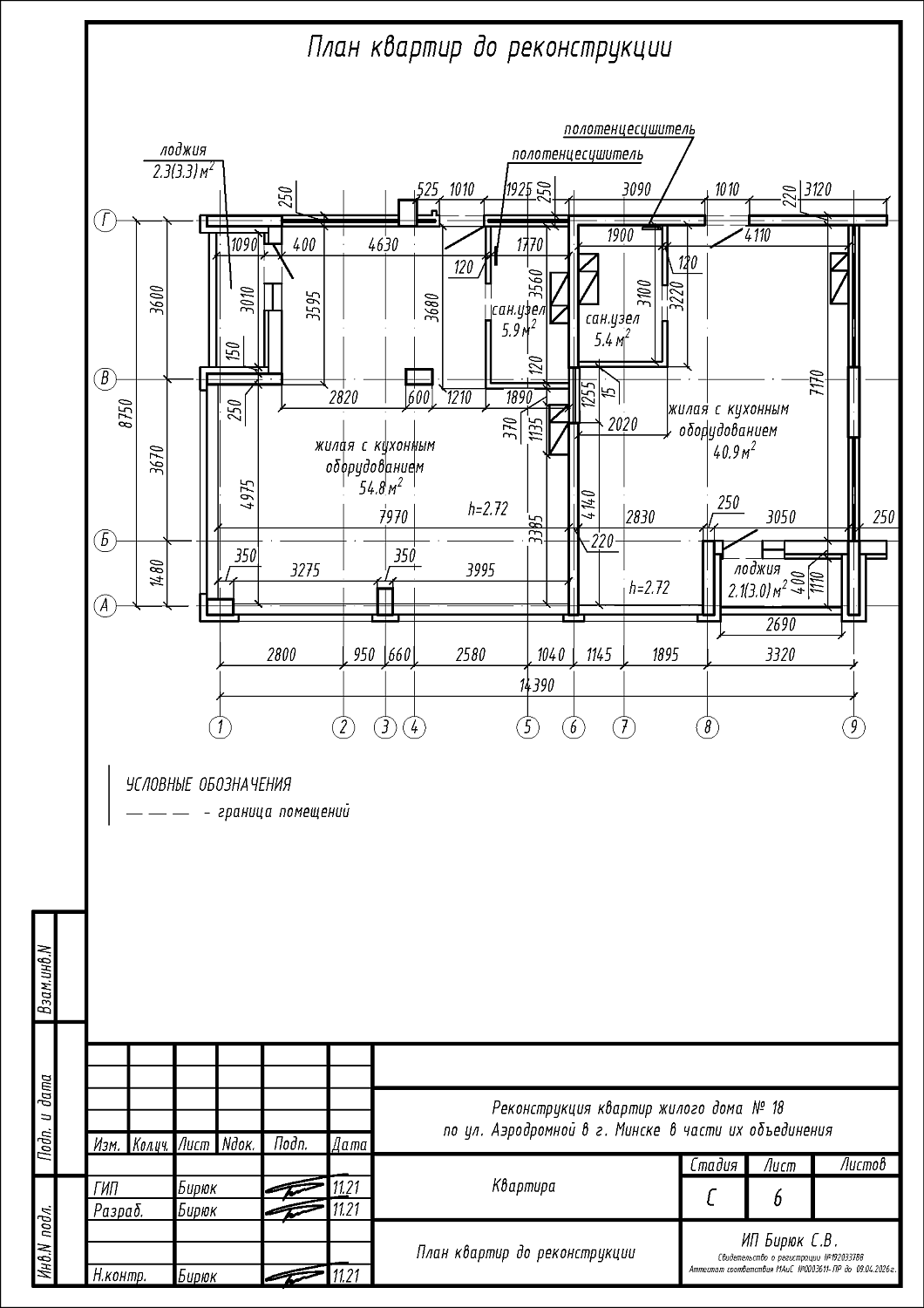
Пожелания заказчика:- Объединение квартир посредством демонтажа перегородки между одной квартирой и второй;
- Перенос жилой с кухонным оборудованием в жилую;
- Устройство трёх жилых и двух коридоров;
- Изменение площади санузлов;
- Устройство зашивок из ГКЛ на площади санузлов;
- Сужение одного из дверных проёмов входной двери;
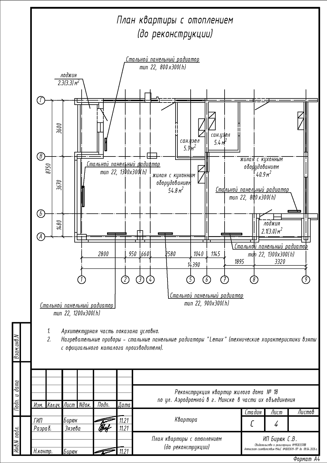
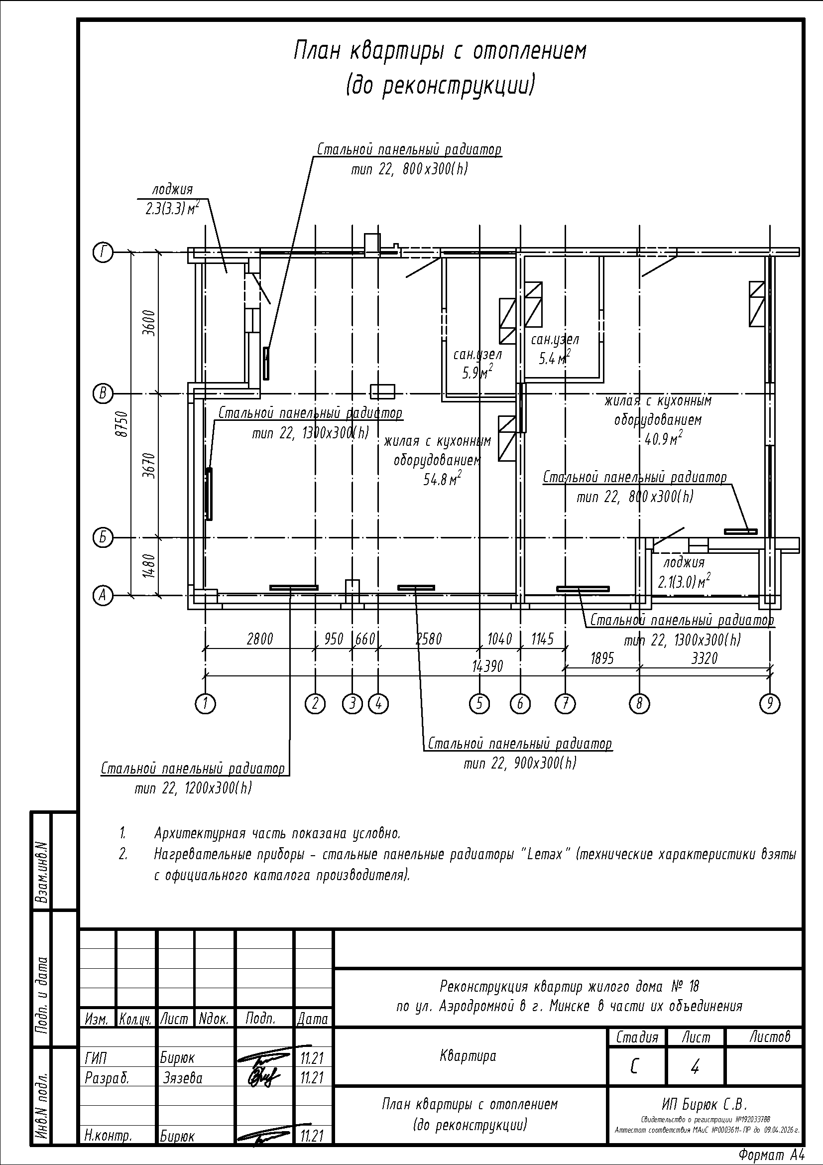
- Перенос и замена отопительных приборов.
Нами были разработаны следующие разделы проектной документации для согласования в исполкоме:
- АС - архитектурно-строительные решения;
- ОВ - отопление и вентиляция;
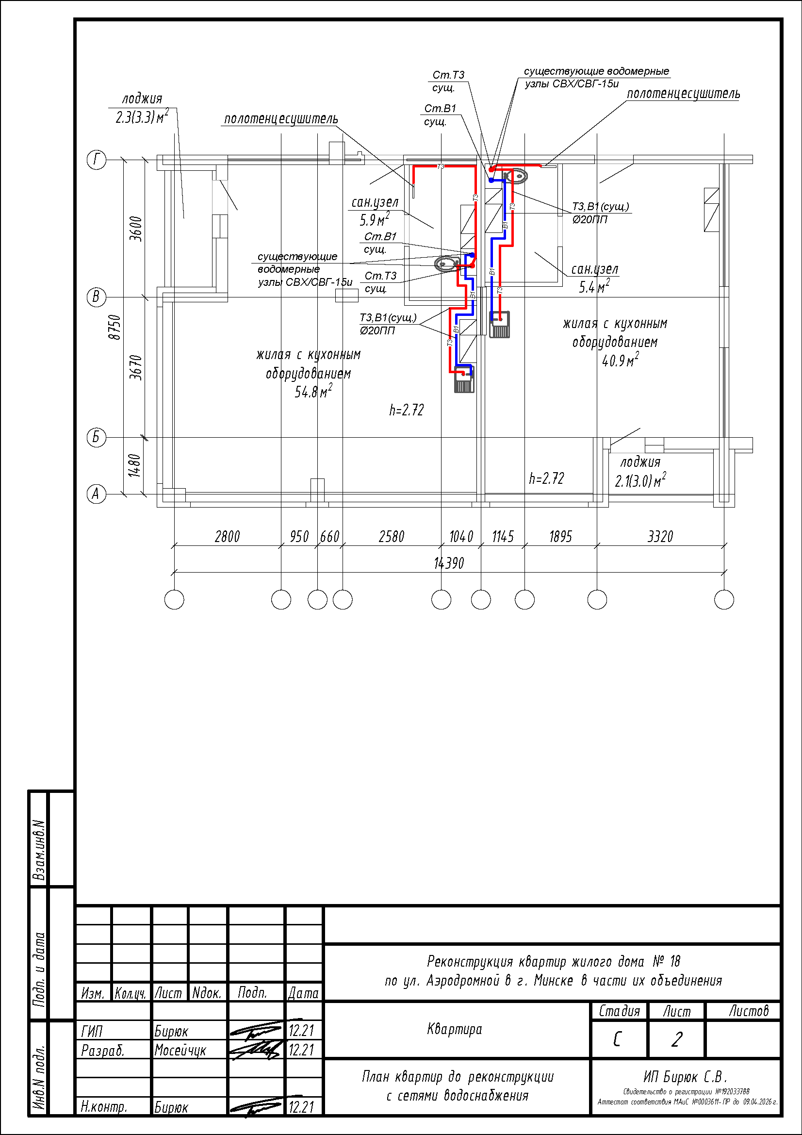
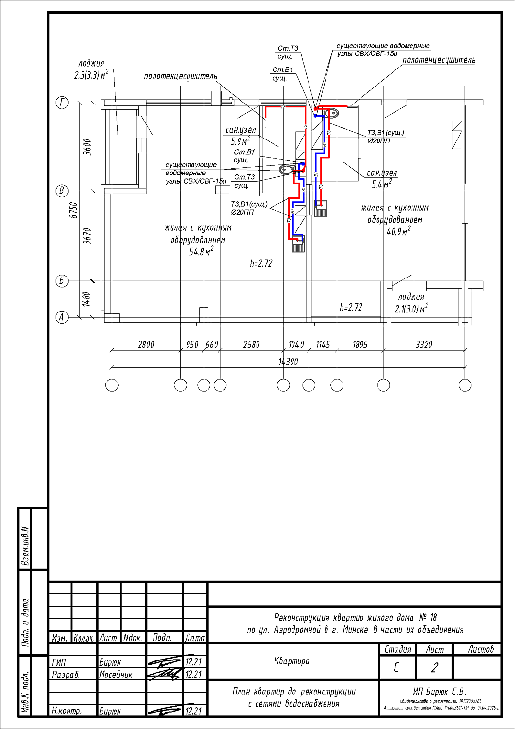
- ВК - вентиляция и канализация;
- ЭМ - электрооборудование. Монтаж.
