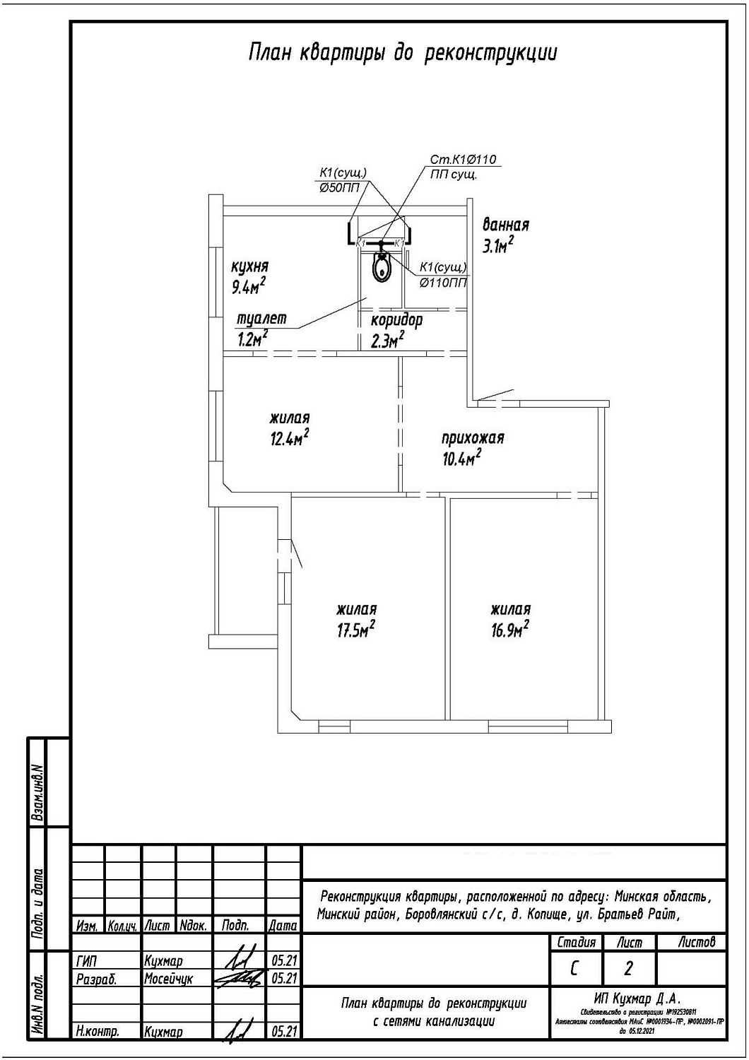
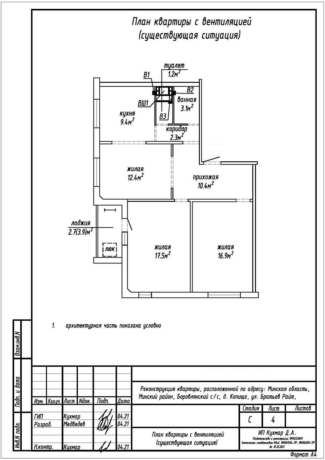
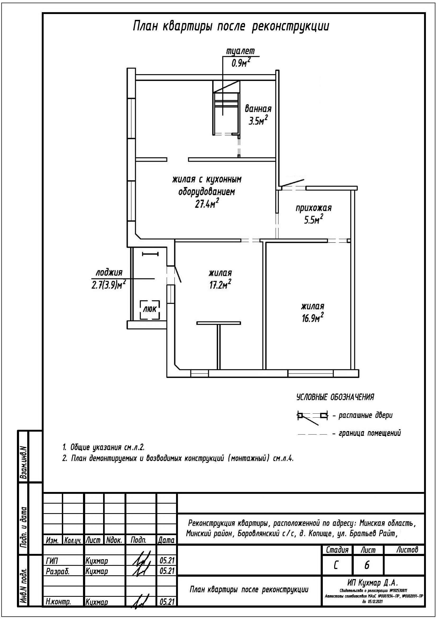
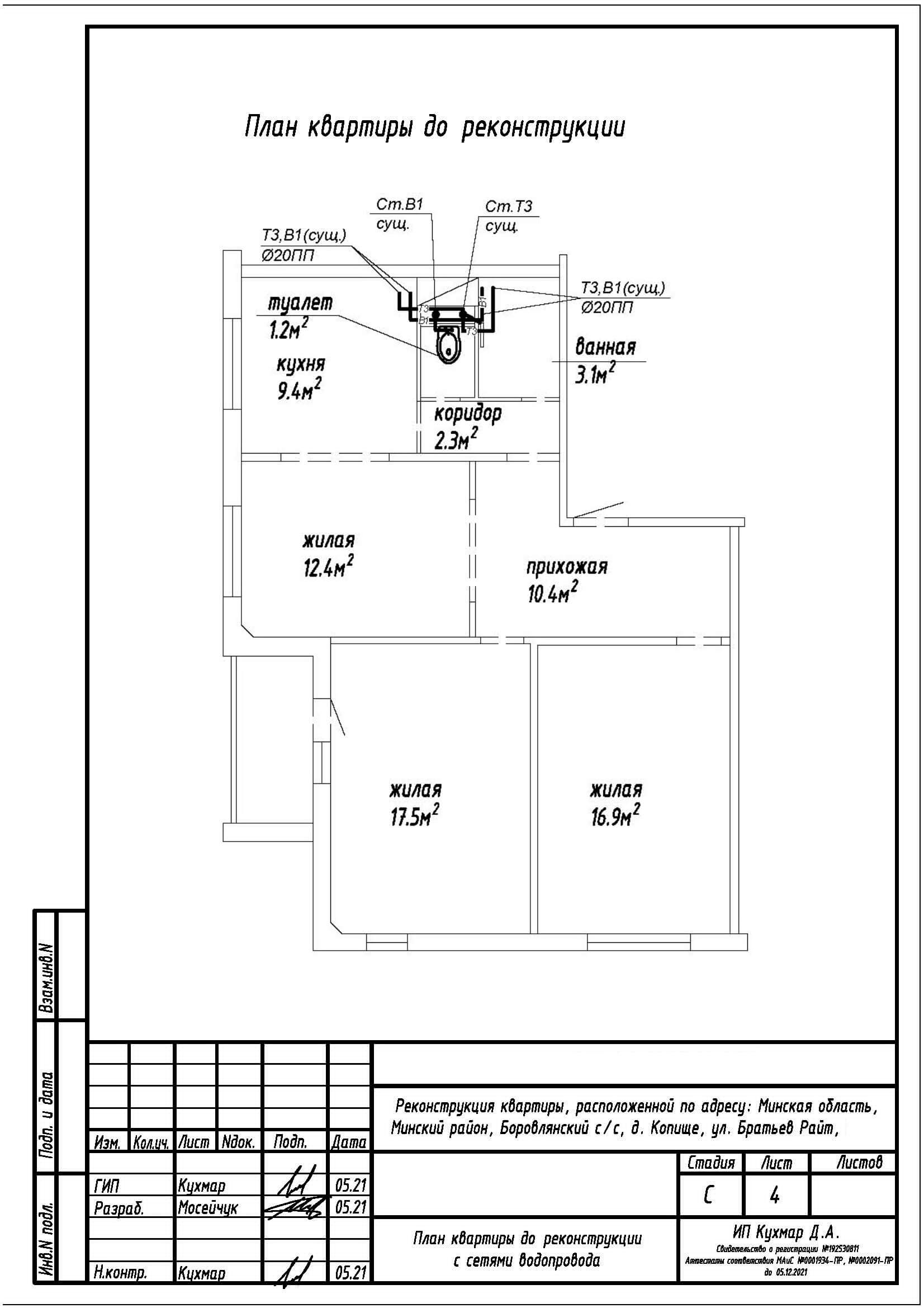
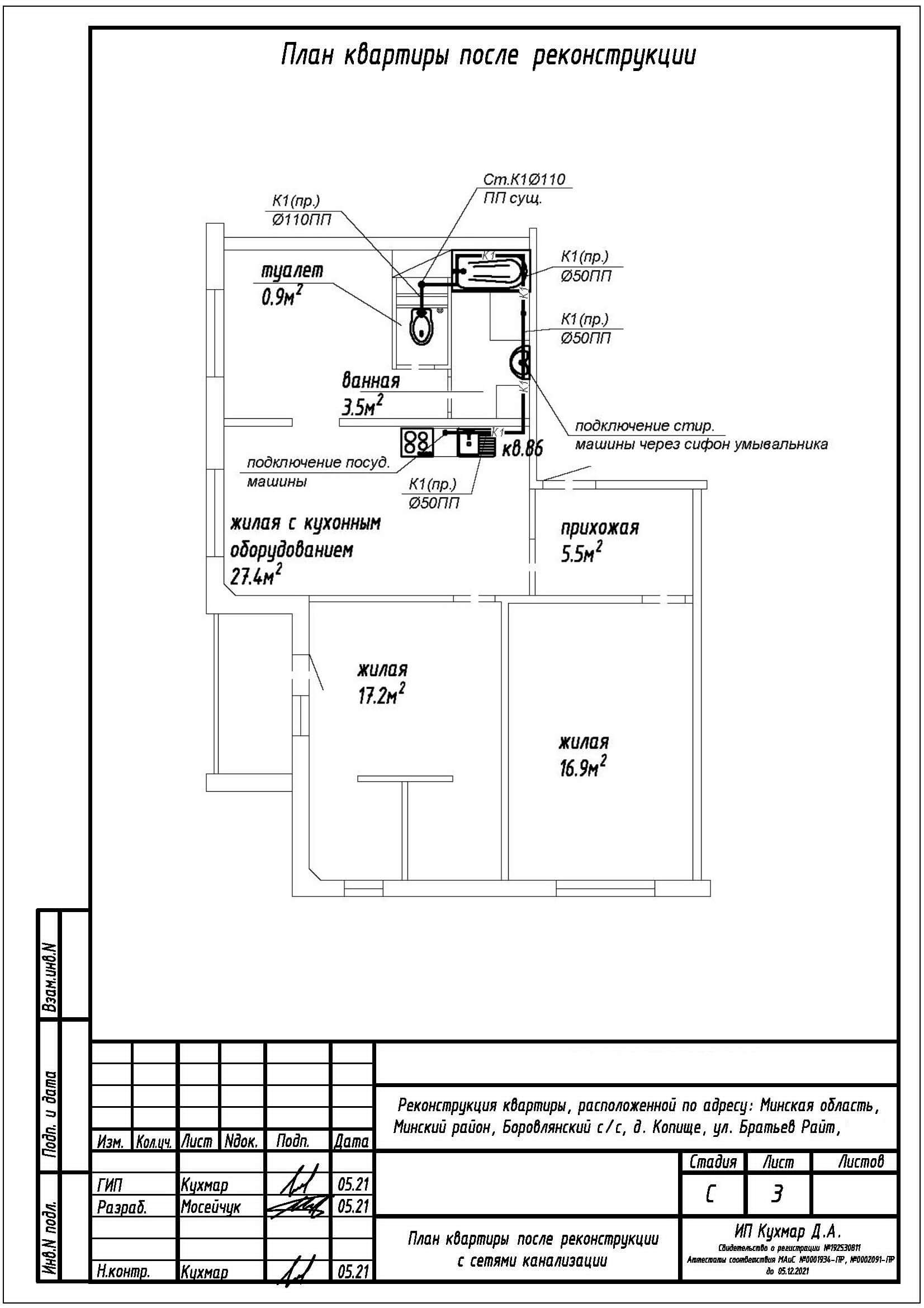
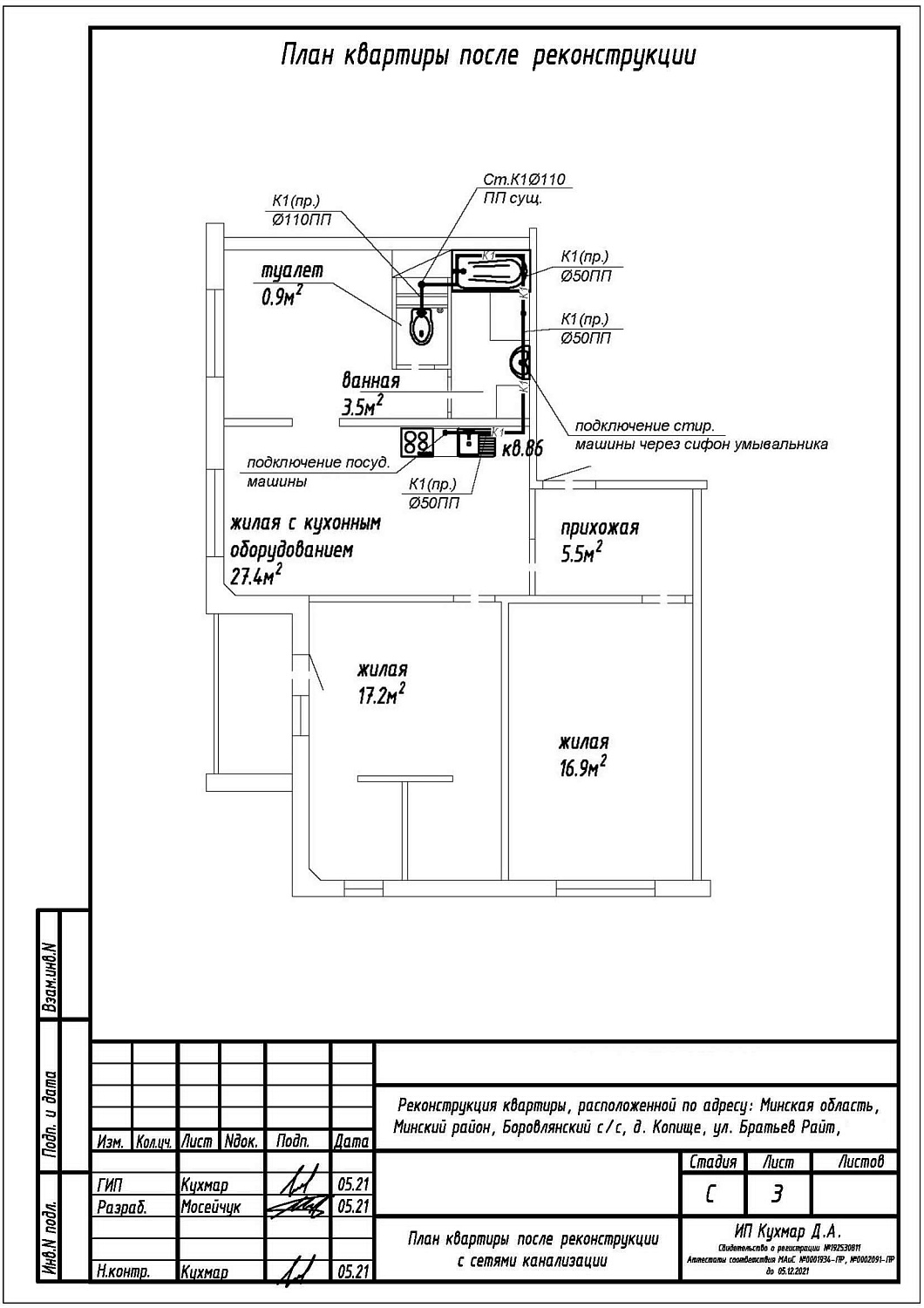
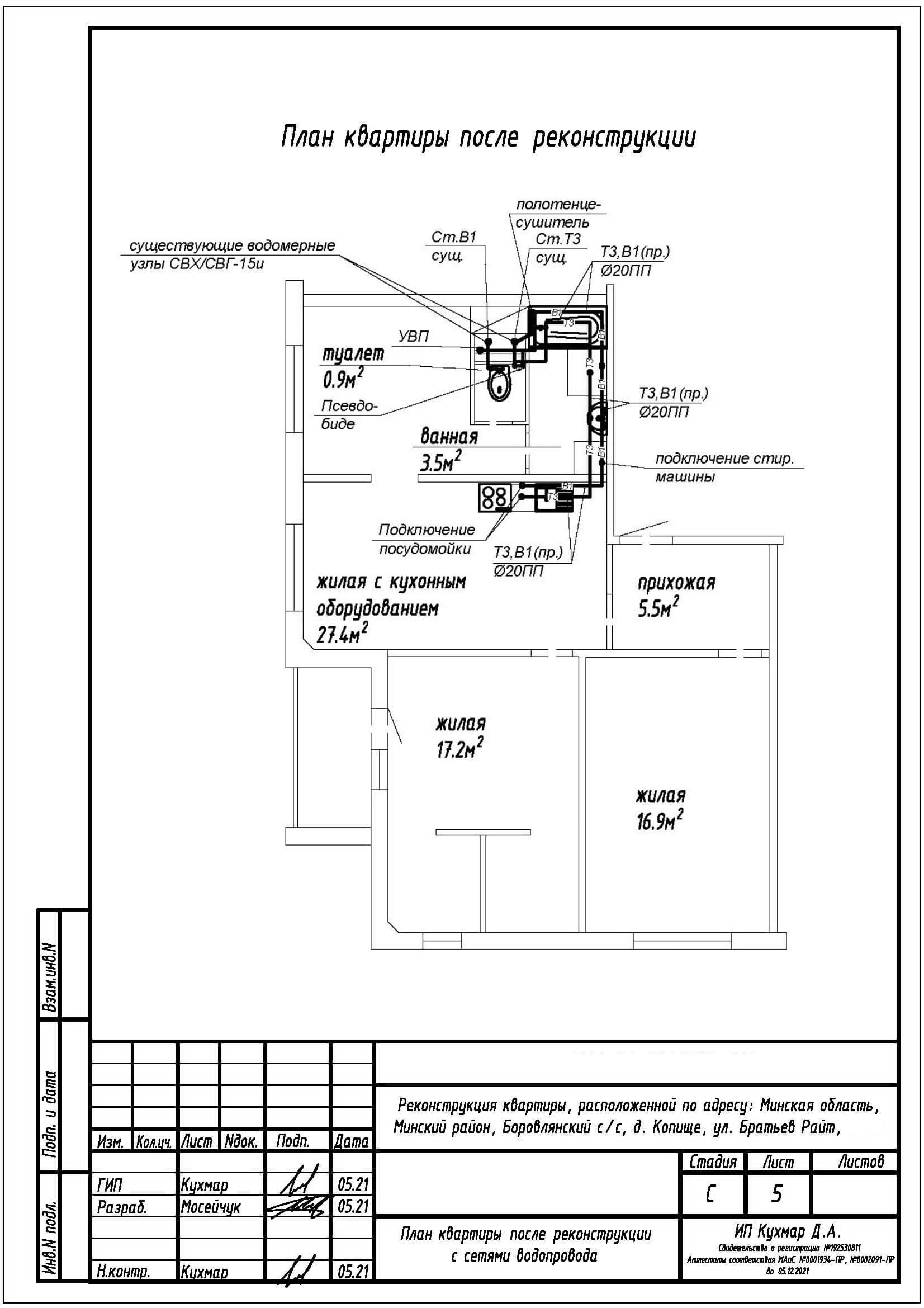
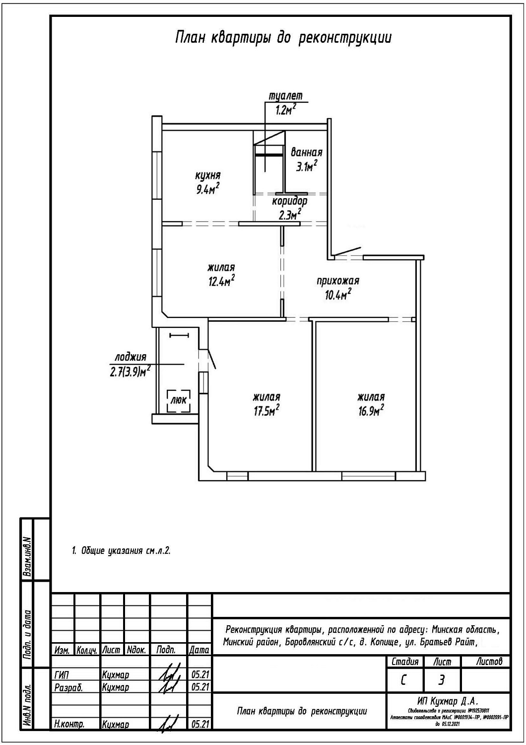
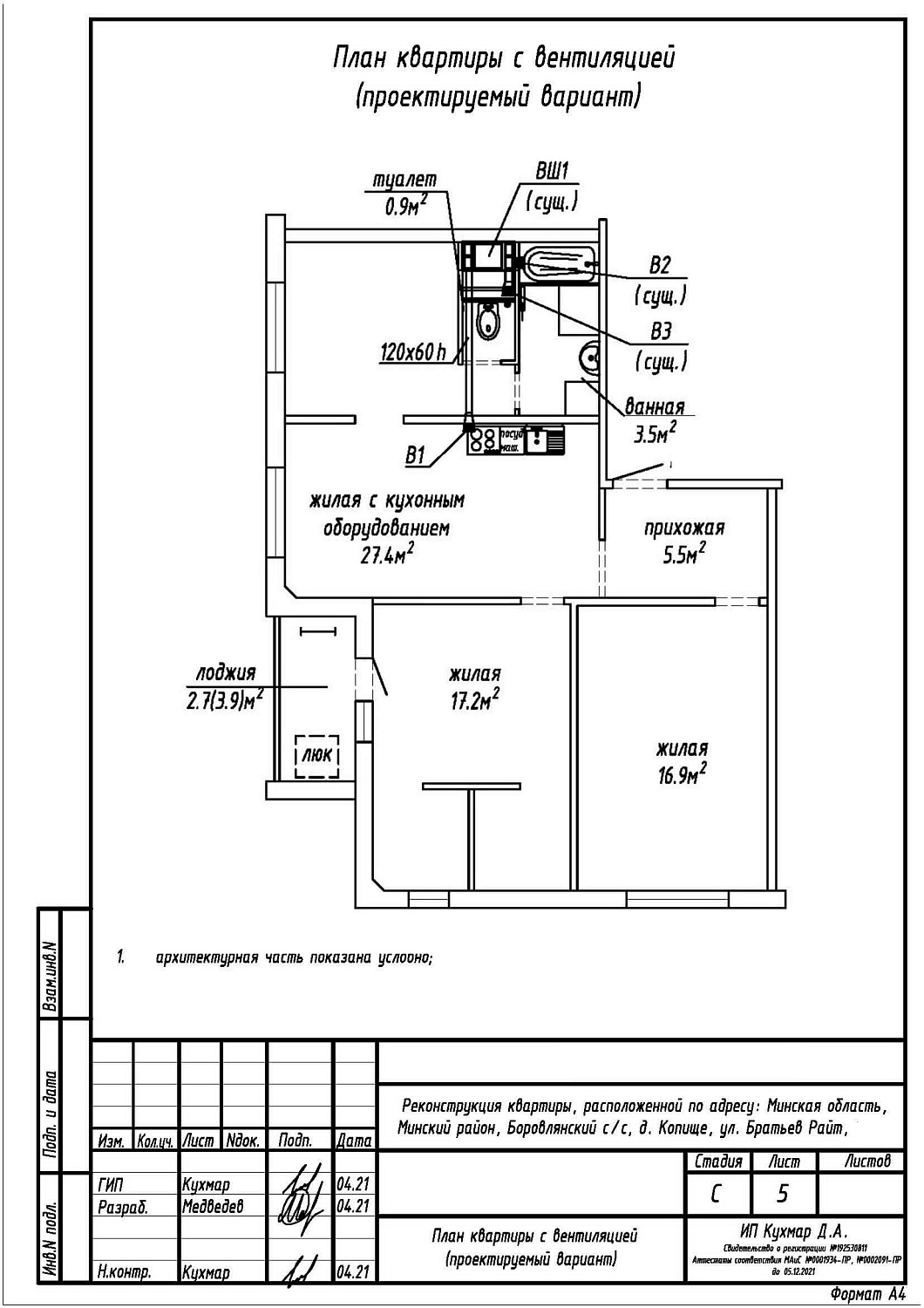
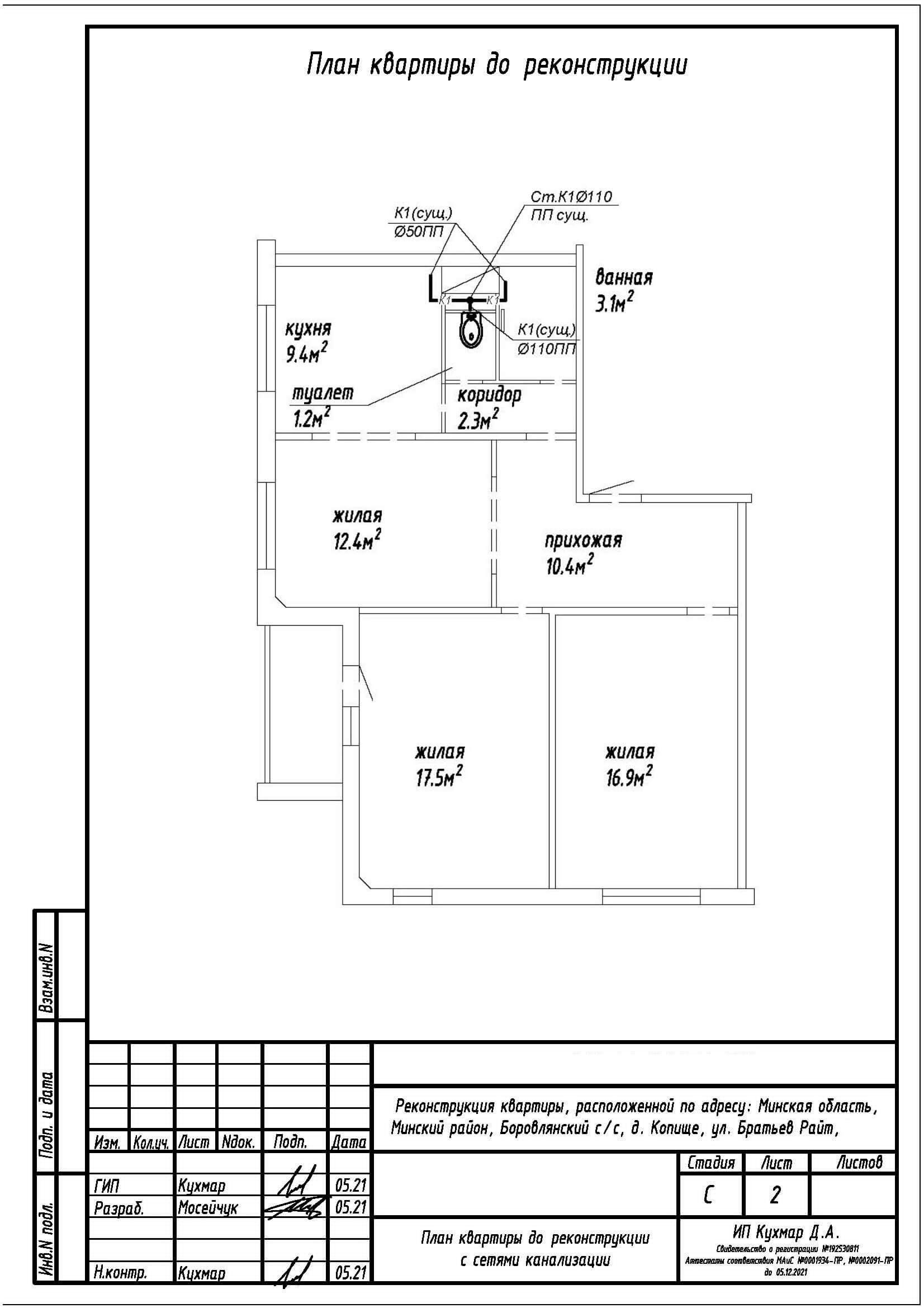
Реконструкция квартиры по ул. Братьев Райт, 10 в ЖК «Новая Боровая»
Пожелания заказчика:
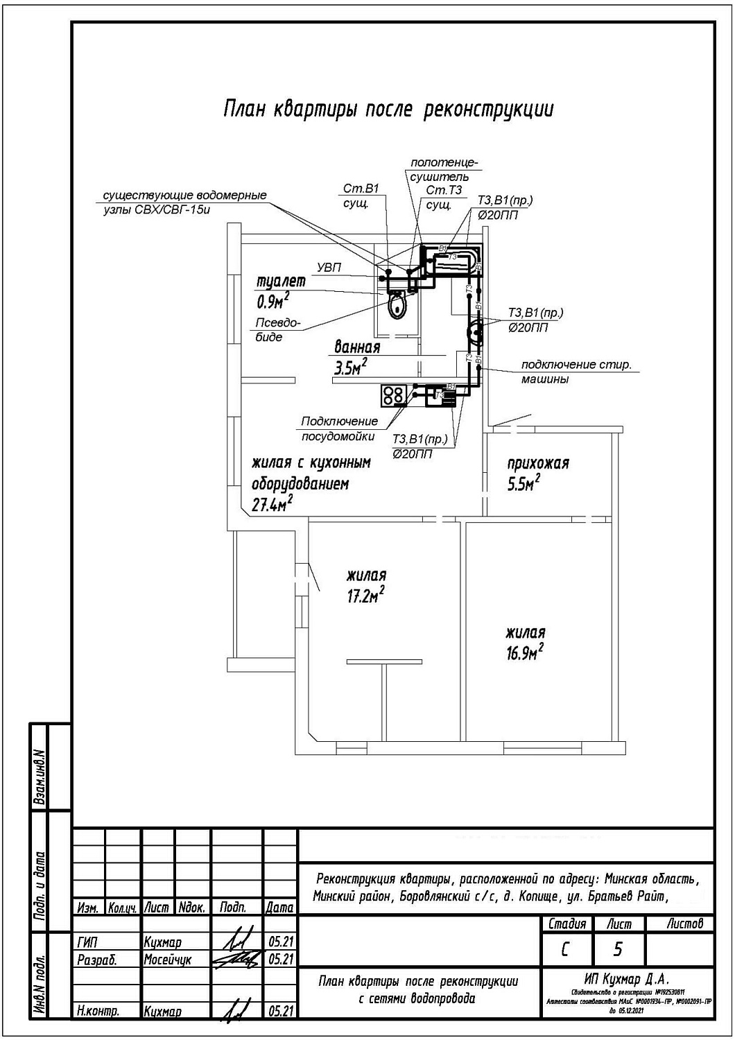
- Перенос кухонного оборудования из кухни в жилую с целью устройства функциональных зон;
- Устройство перегородок на площади жилой;
- Возведение перегородки между коридором 86-9 и прихожей 86-1 (закладка проёма);
- Возведение перегородки между кухней и жилой;
- Устройство перегородки на площади прихожей;
- Увеличение площади ванной за счёт части площади коридора.
Нами были разработаны следующие разделы проектной документации для согласования в исполкоме:
- АС - архитектурно-строительные решения;
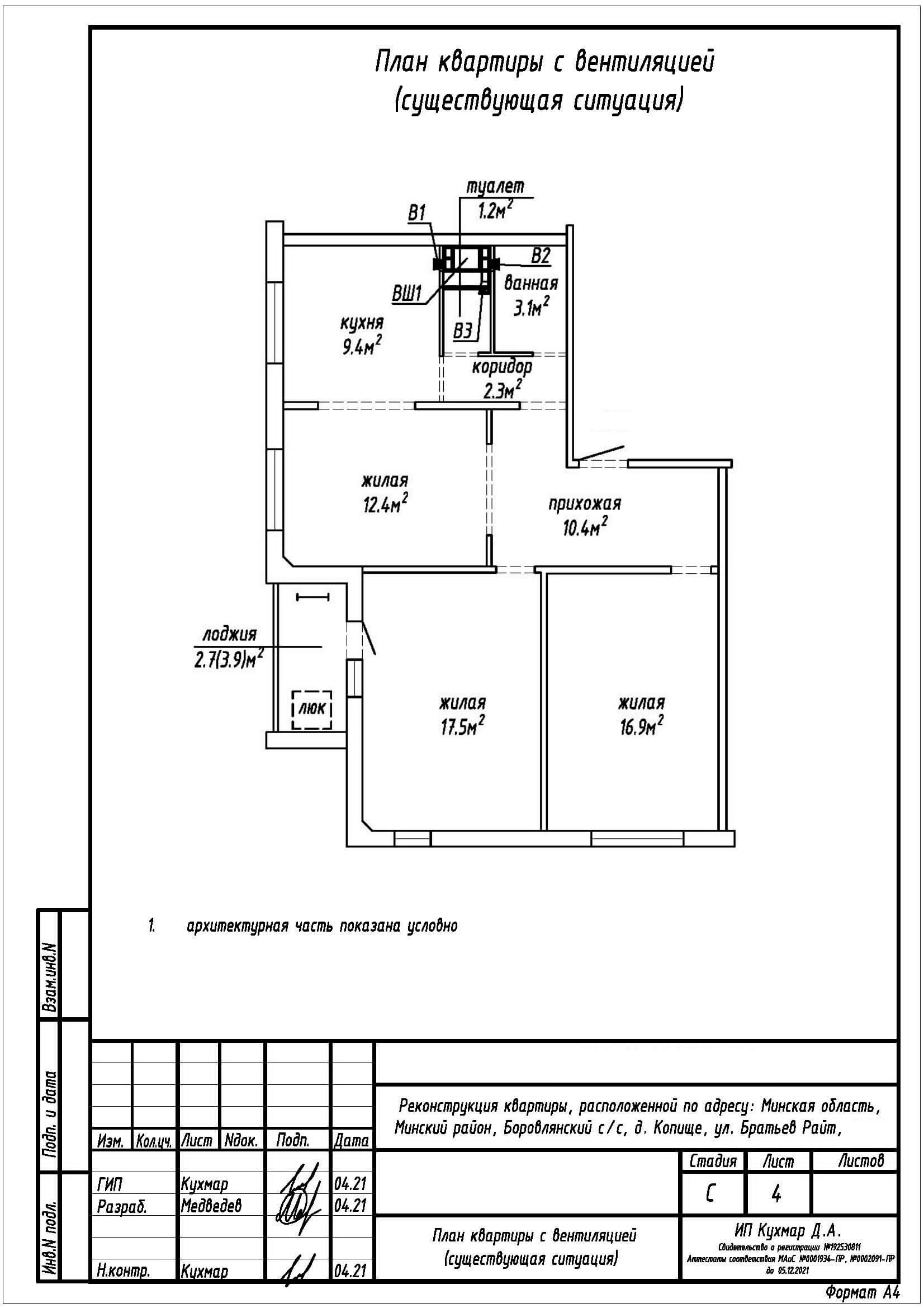
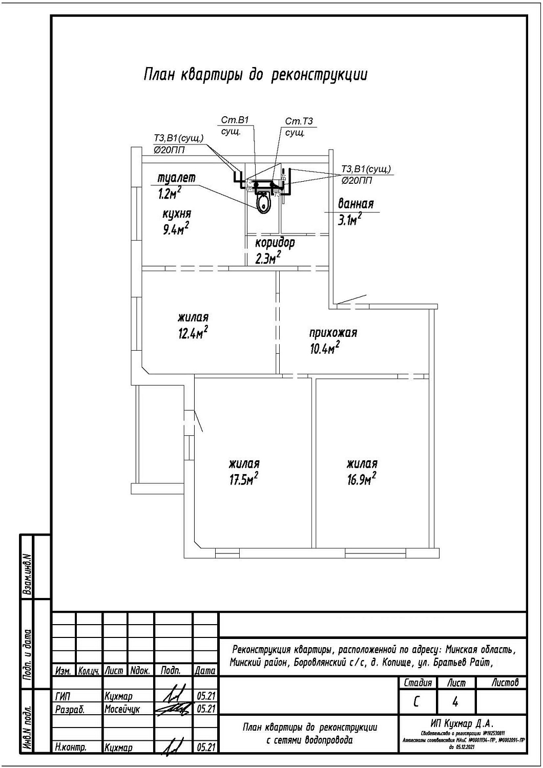
- ОВ - отопление и вентиляция.
- ВК - вентиляция и канализация.
