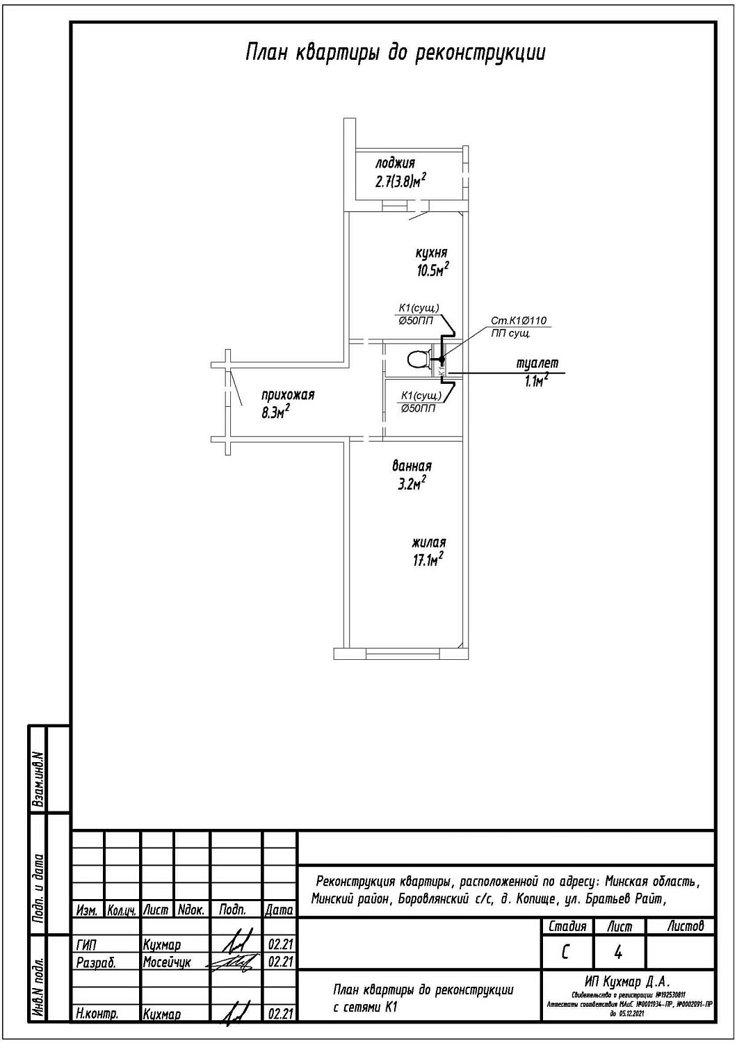
Реконструкция квартиры по ул. Братьев Райт, 10 в ЖК «Новая Боровая»
Пожелания заказчика:
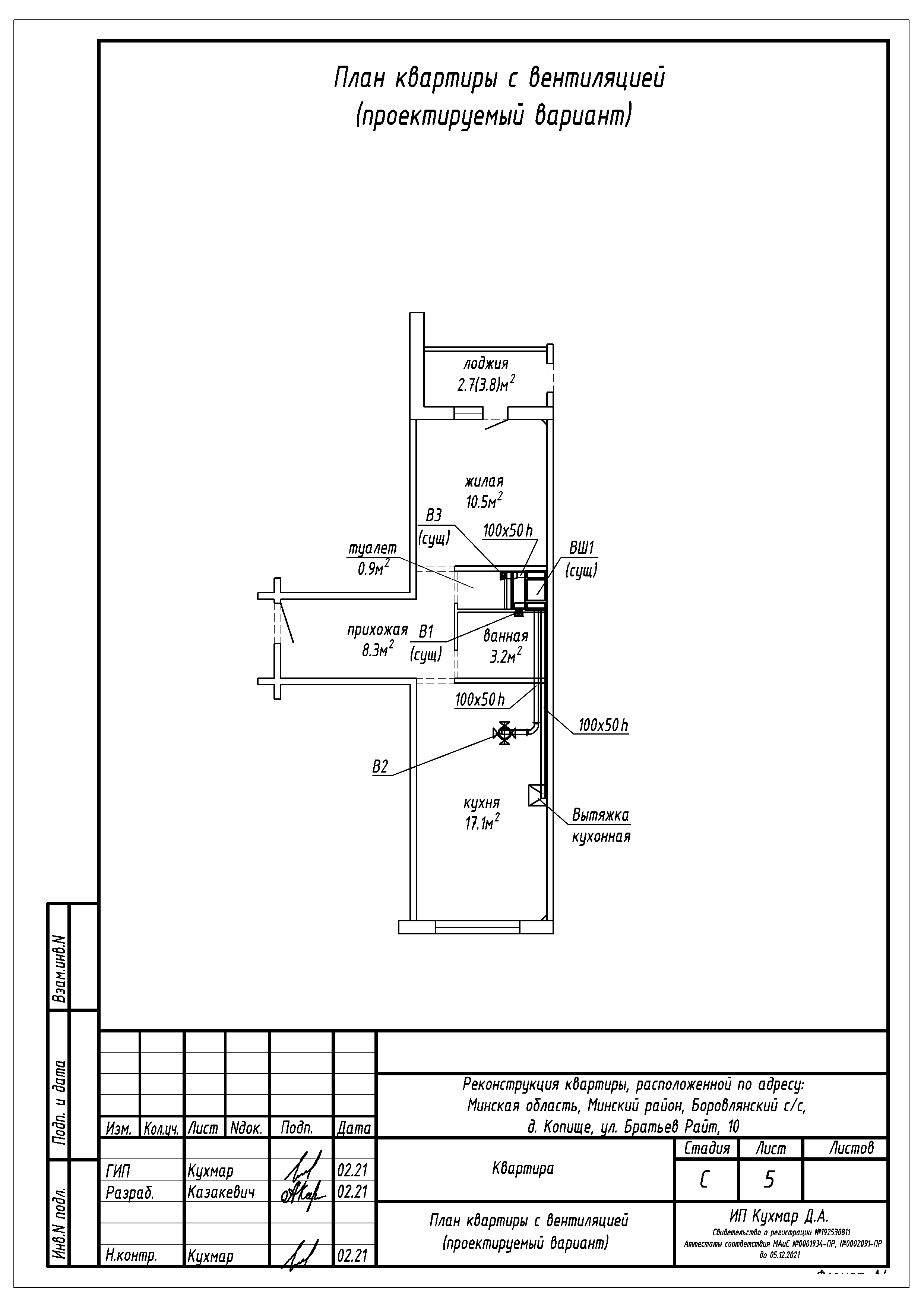
- Перенос кухни в жилую;
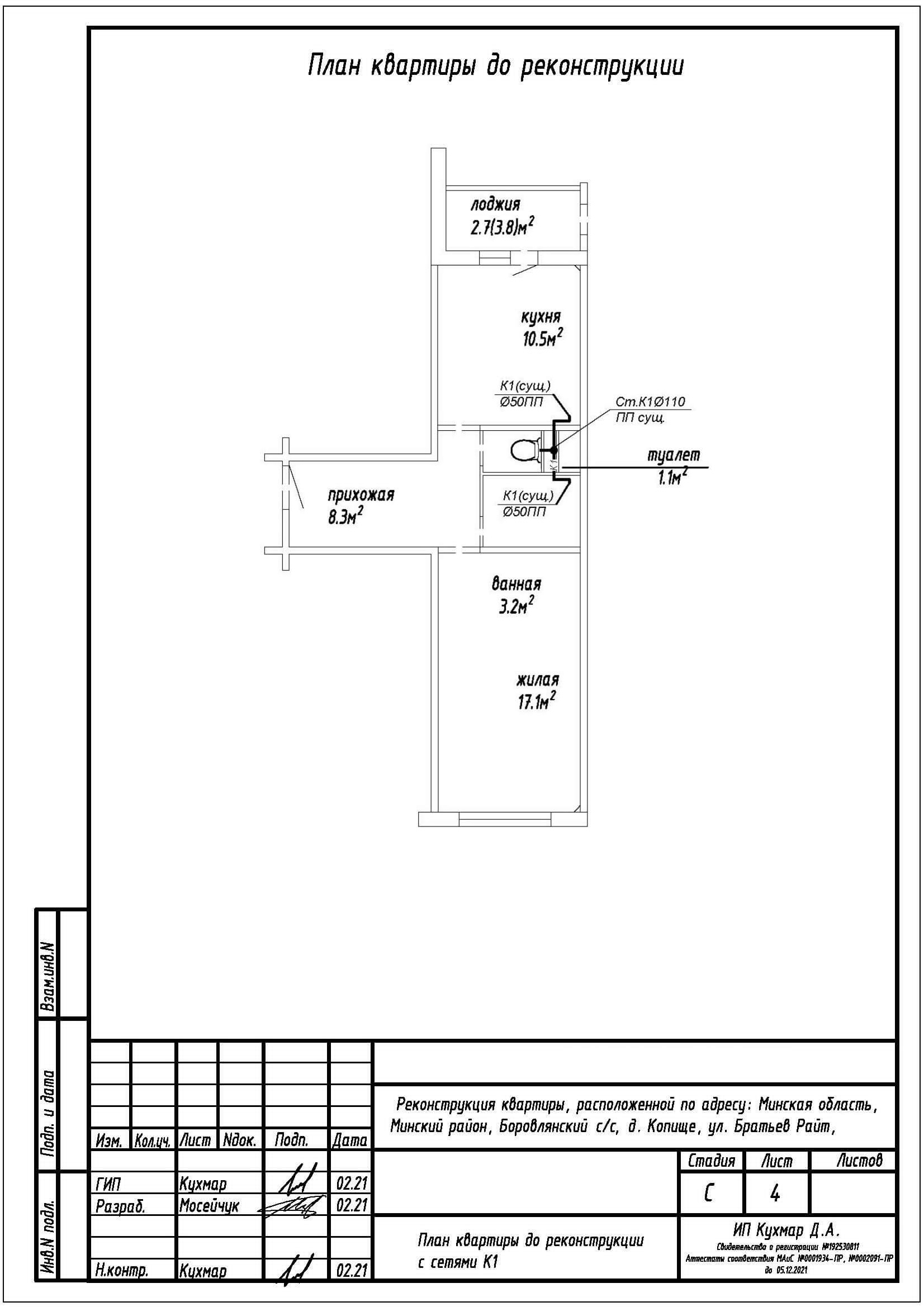
- Устройство зашивки в туалете.
Нами были разработаны следующие разделы проектной документации для согласования в исполкоме:
- АС - архитектурно-строительные решения;
- ОВ - отопление и вентиляция.
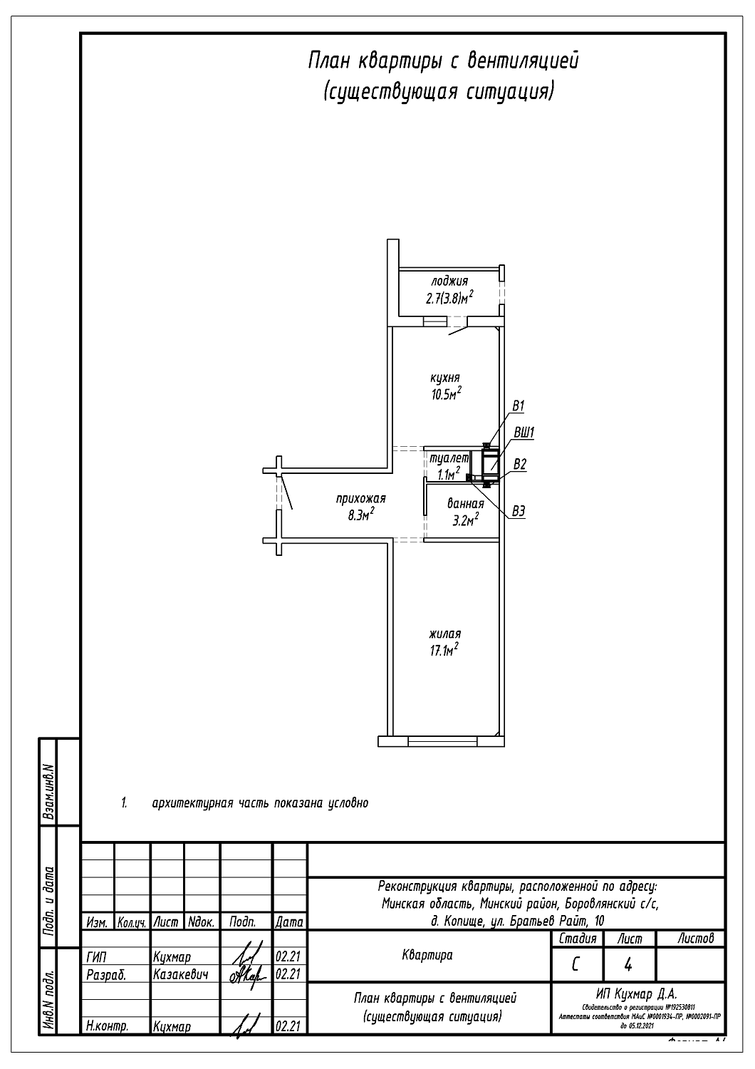
- ВК - вентиляция и канализация.
