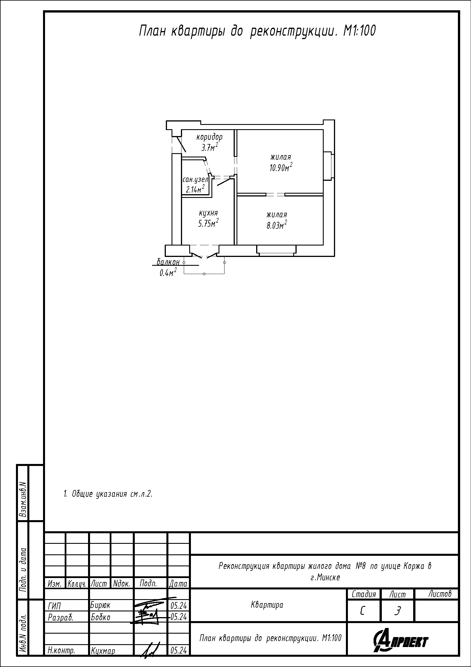
Реконструкция квартиры по ул. Коржа, 8 в г. Минске
Пожелания заказчика:
- Демонтаж перегородок в квартире;
- Устройство перегородки на месте демонтируемой перегородки между кухней и сан.узлом, перегородки в кухне, перегородок с дверными проемами в жилой комнате 10.90 м2 с целью устройства кухни, на части площади кухни, площади жилой комнаты 8.03 м2, части площади жилой комнаты 10.90 м2;
- Устройство перегородки на месте демонтируемой перегородки между кухней и сан.узлом, перегородки между кухней и коридором с целью устройства кладовой на части площади кухни;
- Устройство перегородок с дверным проемом в коридоре, перегородки на месте демонтруемой перегородки между сан .узлом и коридором с целью устройства сан.узла на площади сан.узла, части площади коридора с устройством гидроизоляции;
- Устройство перегородки в жилой комнате 10.90 м2 с целью устройства жилой комнаты на части площади жилой комнаты 10.90 м2.
- Переход с газа на электро.
Нами были разработаны следующие разделы проектной документации для согласования в исполкоме:
- АС - архитектурно-строительные решения.
- ЭМ - электрооборудование. Монтаж.


