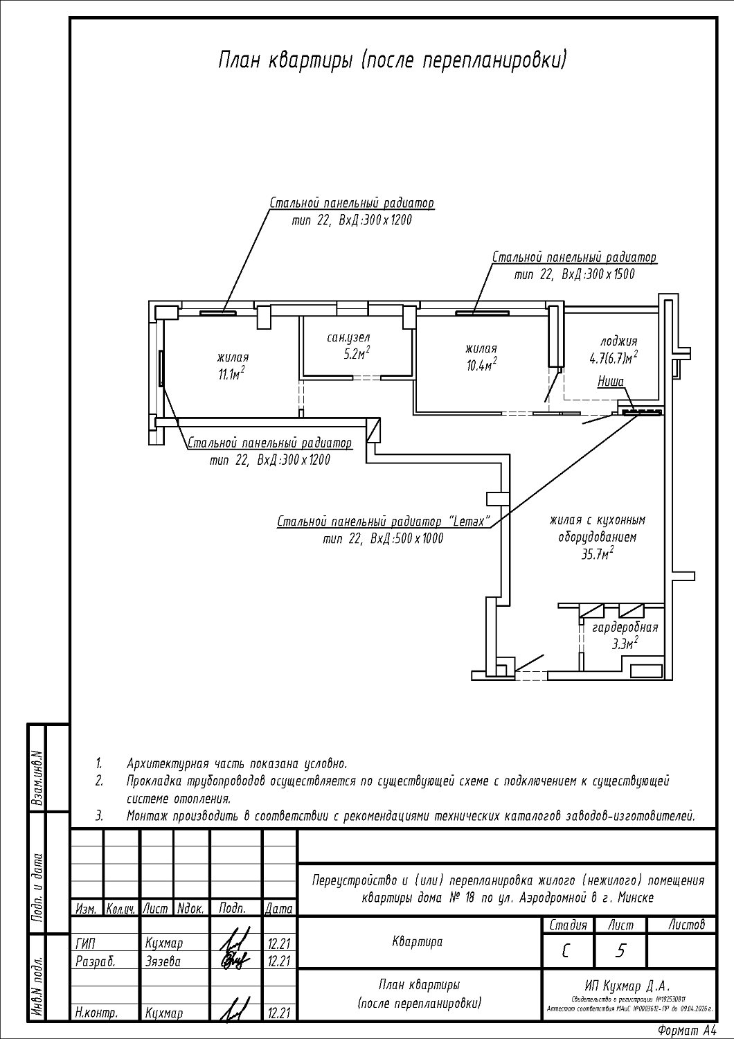
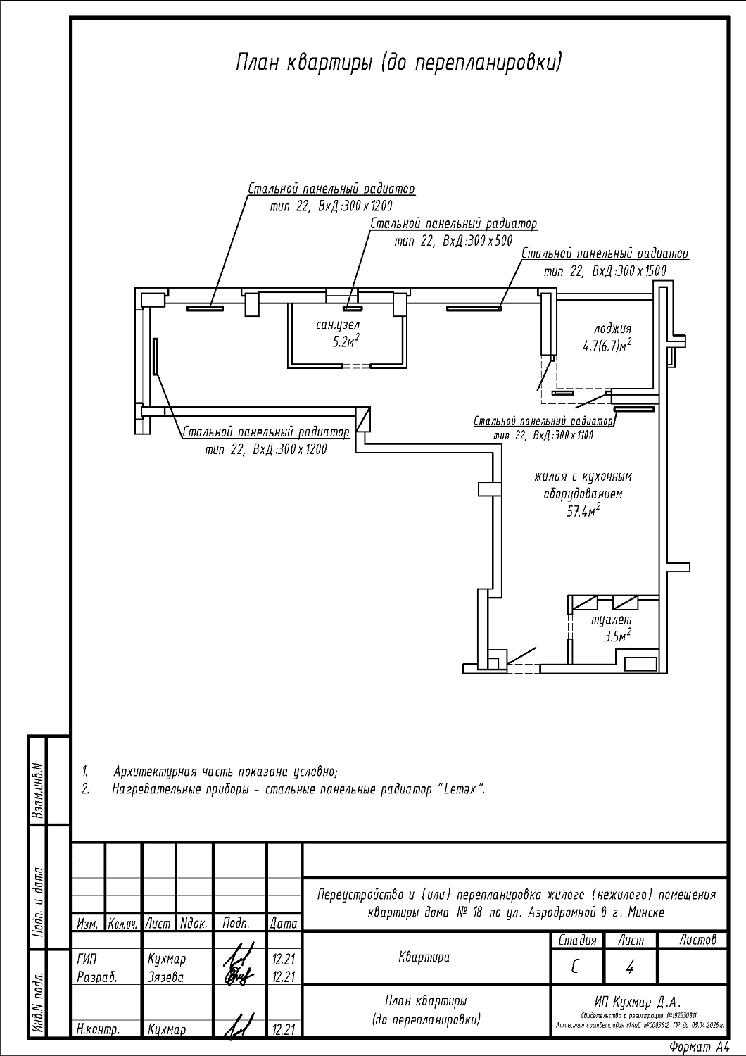
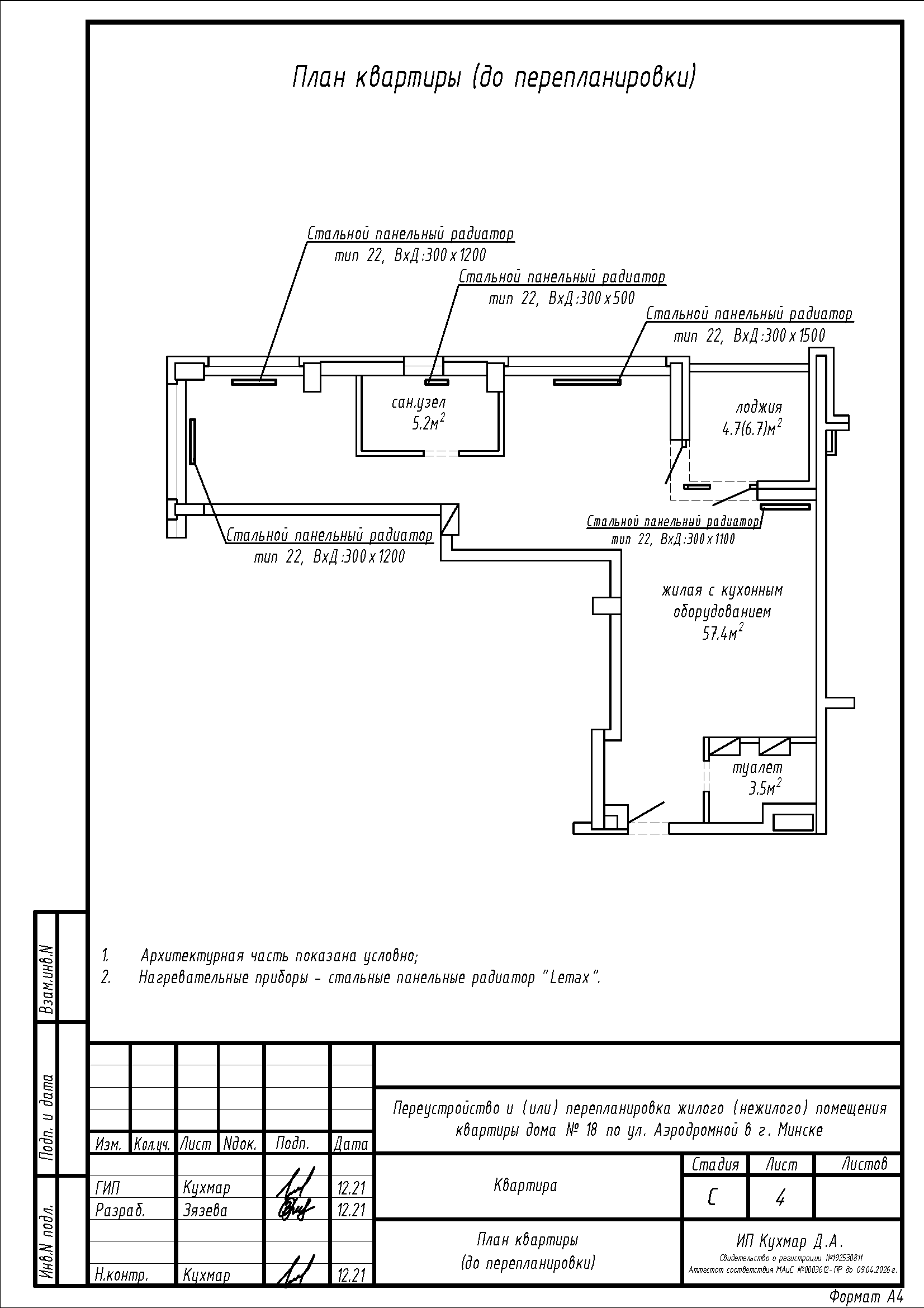
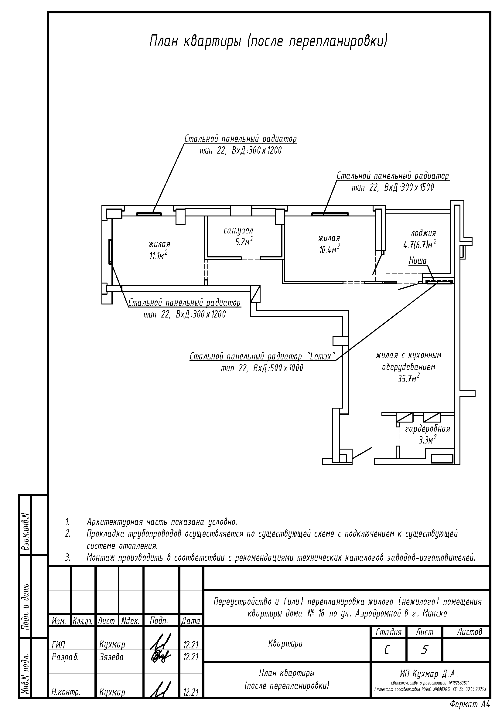
Перепланировка квартиры по улице Аэродромная, 18 в ЖК «Минск Мир»
Пожелания заказчика:
- Замена и перенос существующих отопительных приборов.
Нами были разработаны следующие разделы проектной документации для согласования в исполкоме:
- ОВ - отопление и вентиляция.
