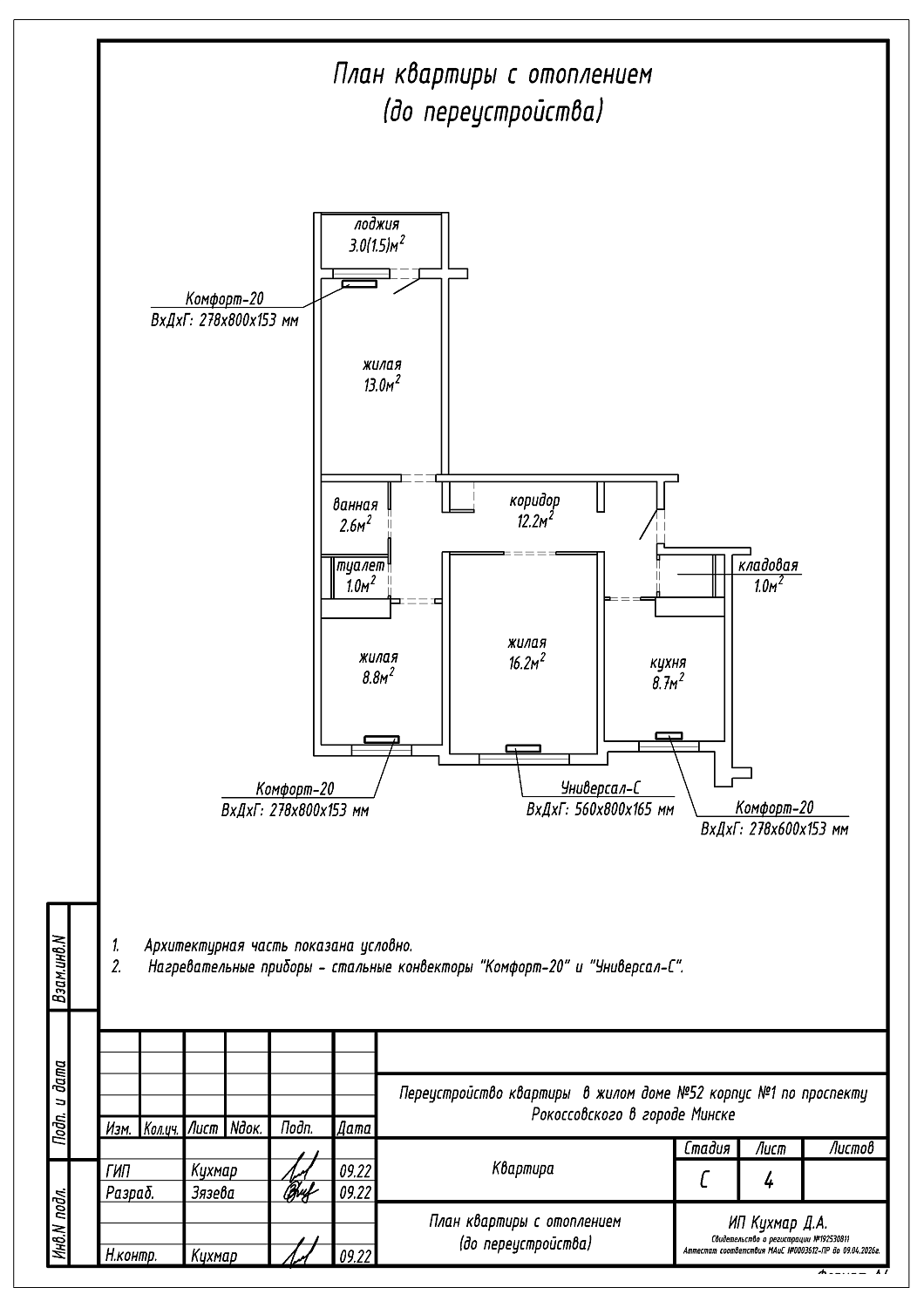
Перепланировка квартиры по пр-ту Рокоссовского, 52 корупс 1 в г. Минске
Пожелания заказчика:
- Замена существующих отопительных приборов.
Нами были разработаны следующие разделы проектной документации для согласования в исполкоме:
- ОВ - отопление и вентиляция;
