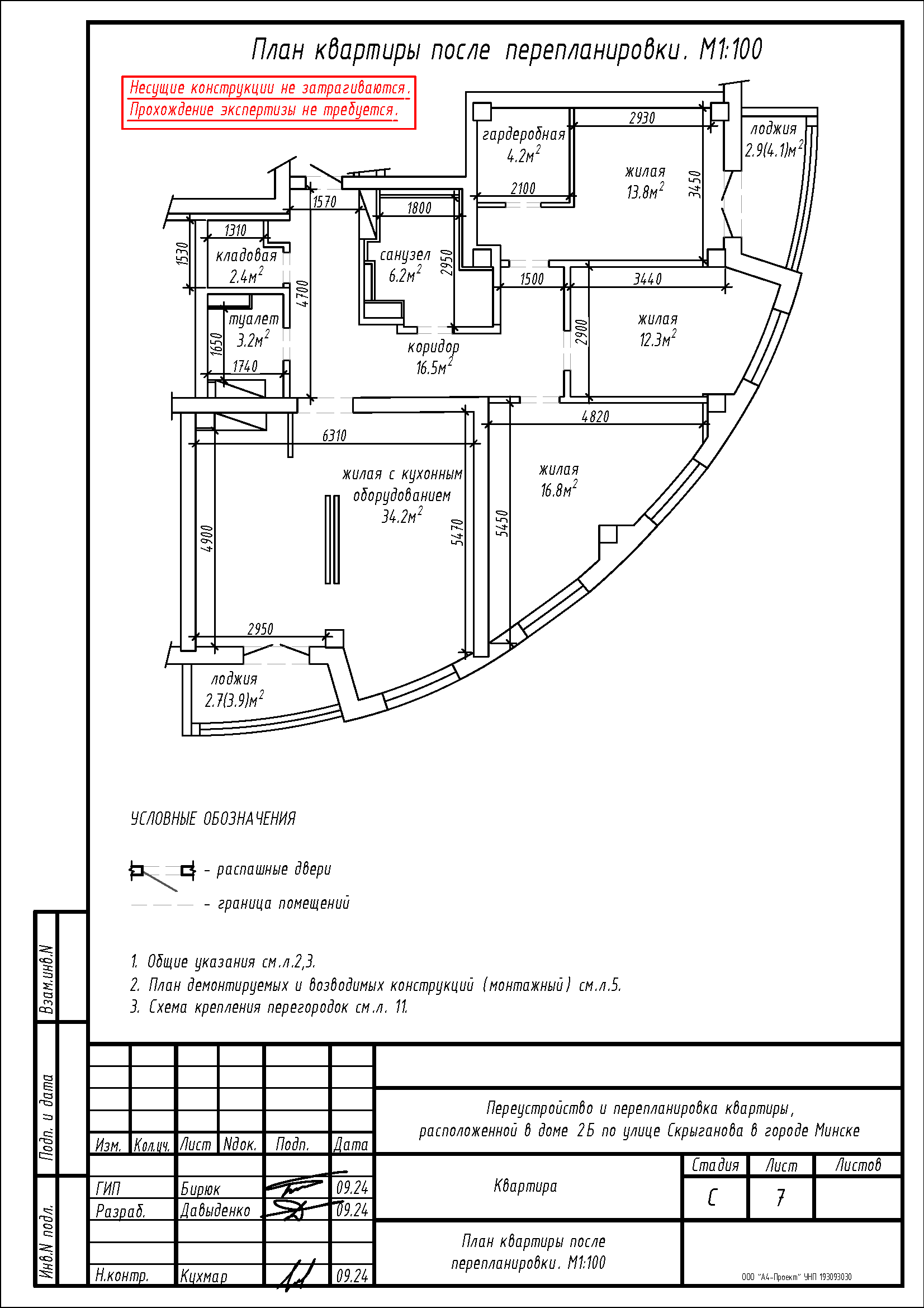
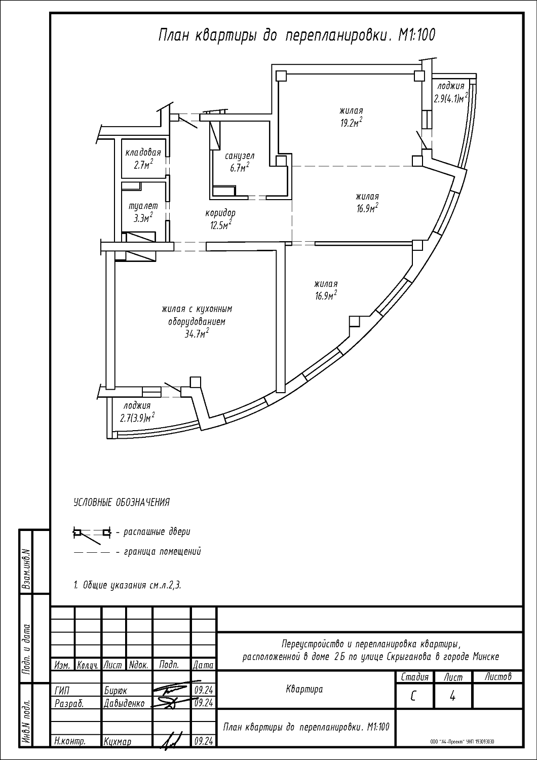
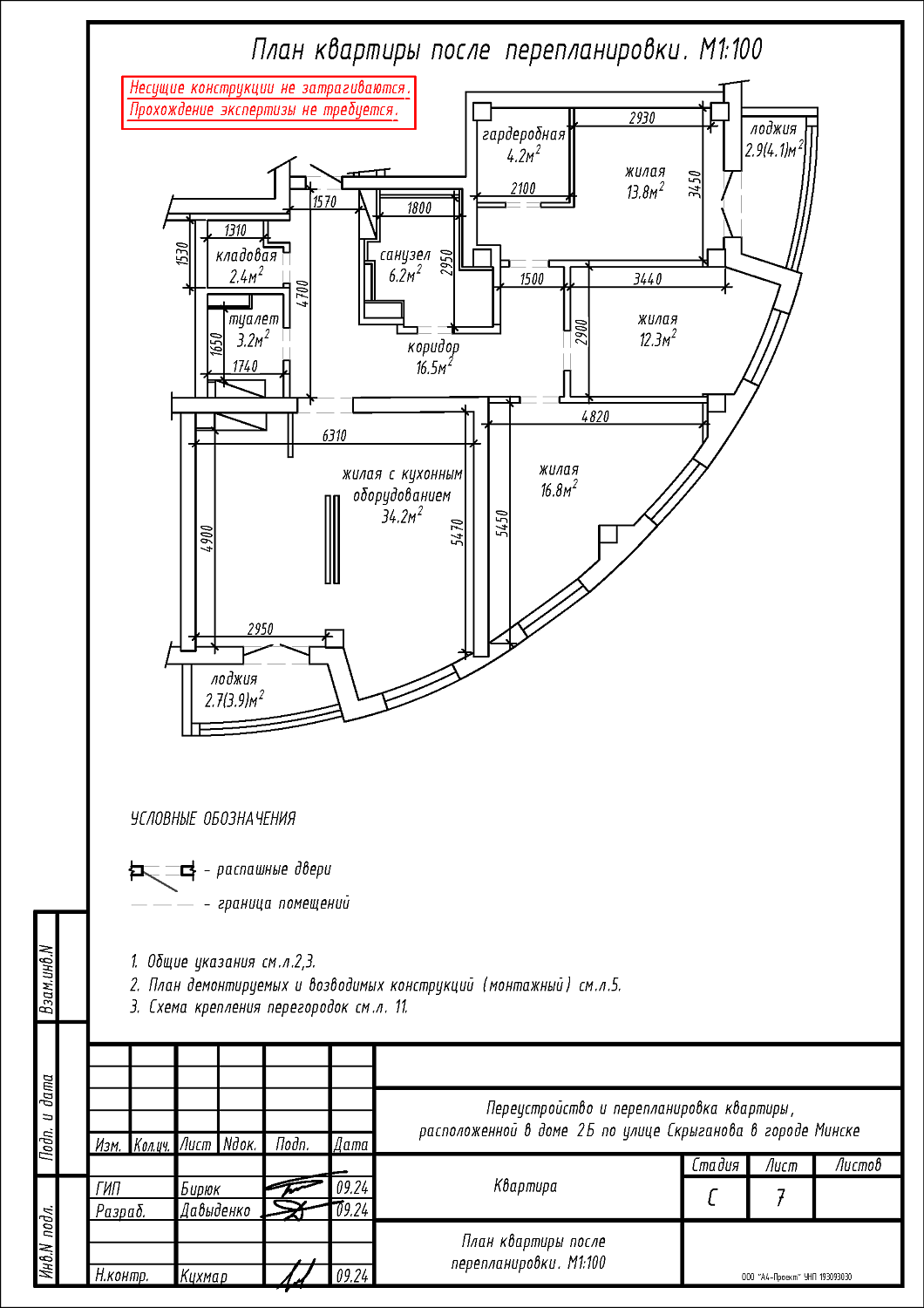
Перепланировка квартиры по ул. Скрыганова, 2Б в ЖК «Каскад»
Пожелания заказчика:
- Демонтаж дверного и оконного блоков с подоконной частью в стене между жилой 19.2м2 и лоджией, жилой с кухонным оборудованием и лоджией, с последующим устройством дверных блоков без создания отапливаемого помещения;
- Демонтаж перегородок с дверными проемами между коридором, кладовой и санузлом, с последующим устройством перегородок с дверными проемами на части площади кладовой, коридора, жилой с кухонным оборудованием, жилой 16.9м2, жилой 16.9м2 и жилой 19.2м2 с целью устройства гардеробной на части площади жилой 19.2м2;
- Смещение дверного проема в перегородке между жилой 16.9м2 и жилой 16.9м2;
- Демонтаж зашивки ГКЛ в туалете с последующим устройством зашивок ГКЛ на части площади туалета и санузла;
- Замена дверного блока входной двери со сменой направления открывания;
- Перенос и замена отопительных приборов.
Нами были разработаны следующие разделы проектной документации для согласования в исполкоме:
- АС - архитектурно-строительные решения;
- ОВ - отопление и вентиляция.
