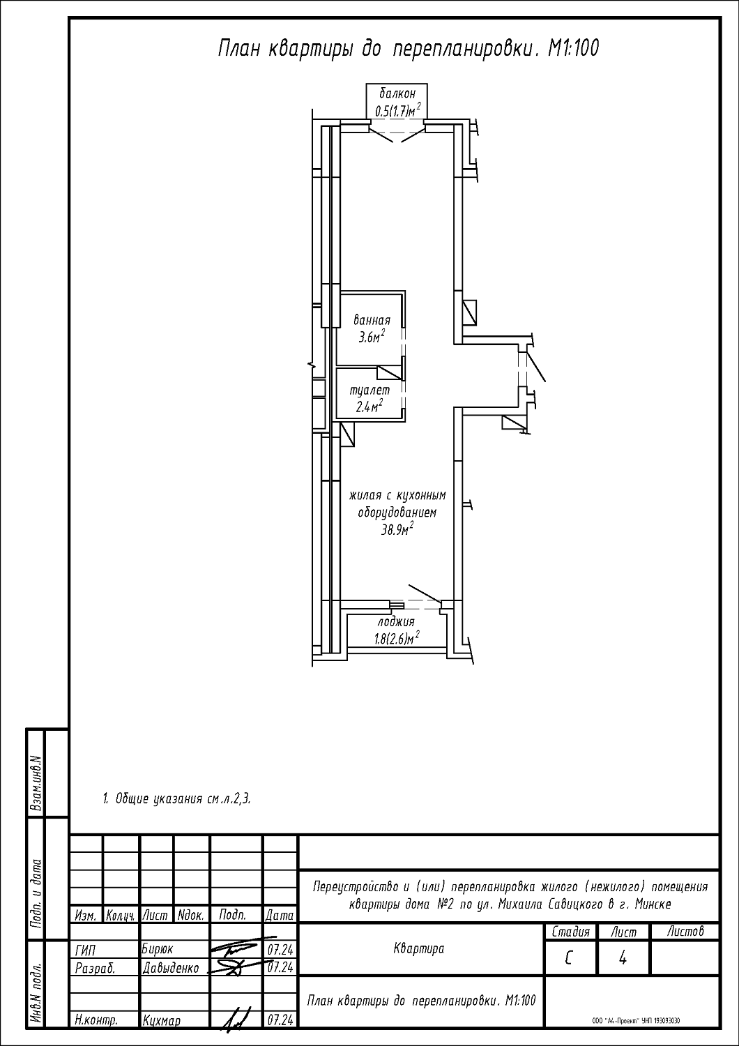
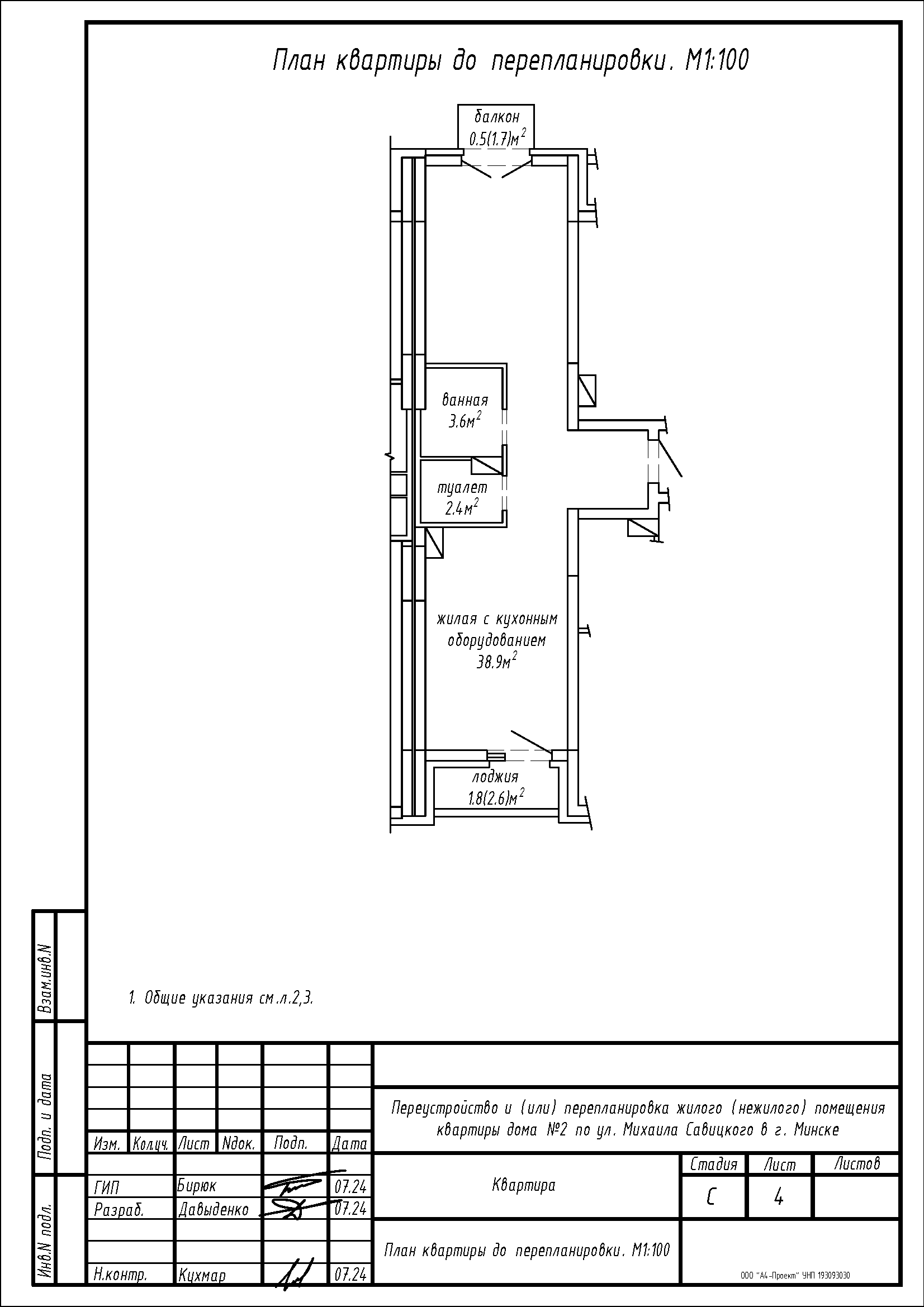
Перепланировка квартиры по ул. Михаила Савицкого, 2 в ЖК «Минск Мир»
Пожелания заказчика:
- Разделение помещения жилой с кухонным оборудованием на жилую с кухонным оборудованием, жилую, коридор;
- Увеличение площади туалета за счёт части площади жилой, не более чем на 25%.
Нами были разработаны следующие разделы проектной документации для согласования в исполкоме:
- АС - архитектурно-строительные решения.
