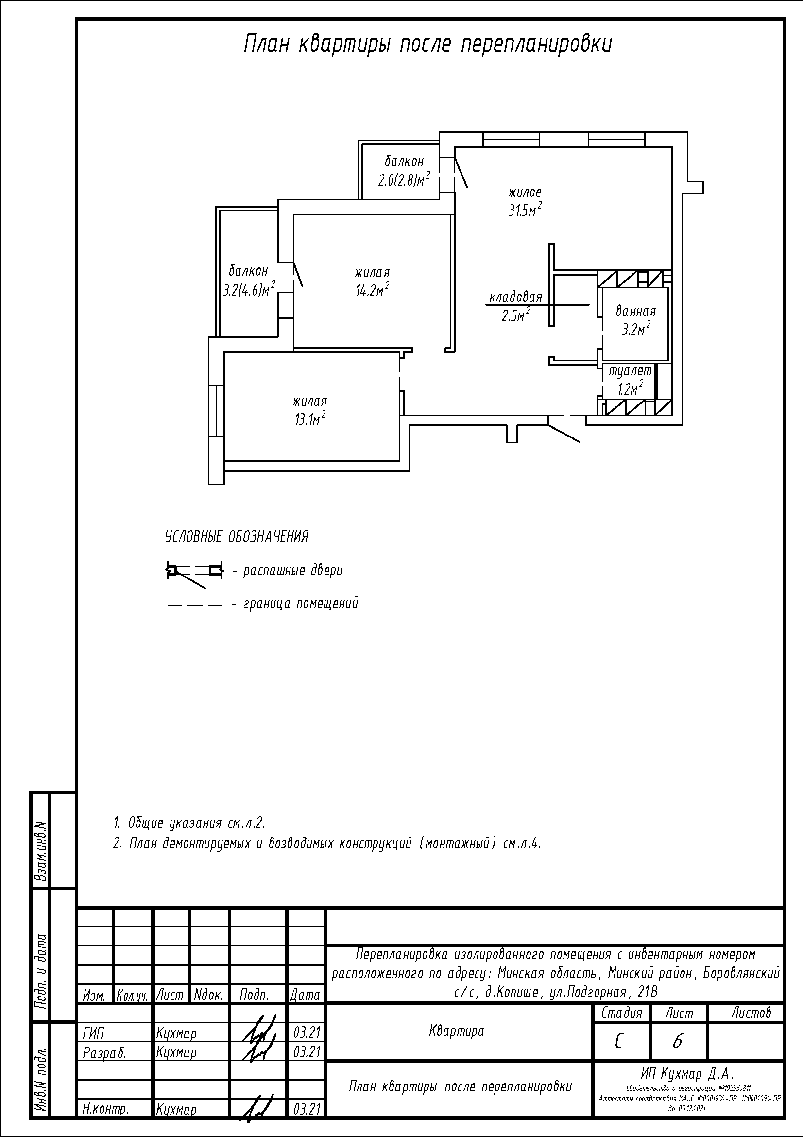
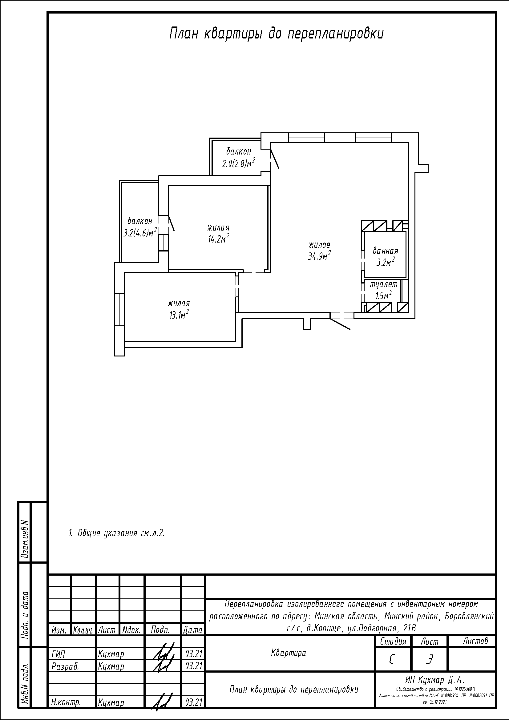
Перепланировка квартиры по ул. Подгорная, 21В в ЖК «Новая Боровая»
Пожелания заказчика:
- Устройство новых перегородок на площади жилого с последующим образованием нового помещения (кладовой);
- Уменьшение дверных проёмов в жилой 142-2, жилой 142-4, туалета 142-7 с возведением новых перегородок.
Нами были разработаны следующие разделы проектной документации для согласования в исполкоме:
- АС - архитектурно-строительные решения.
