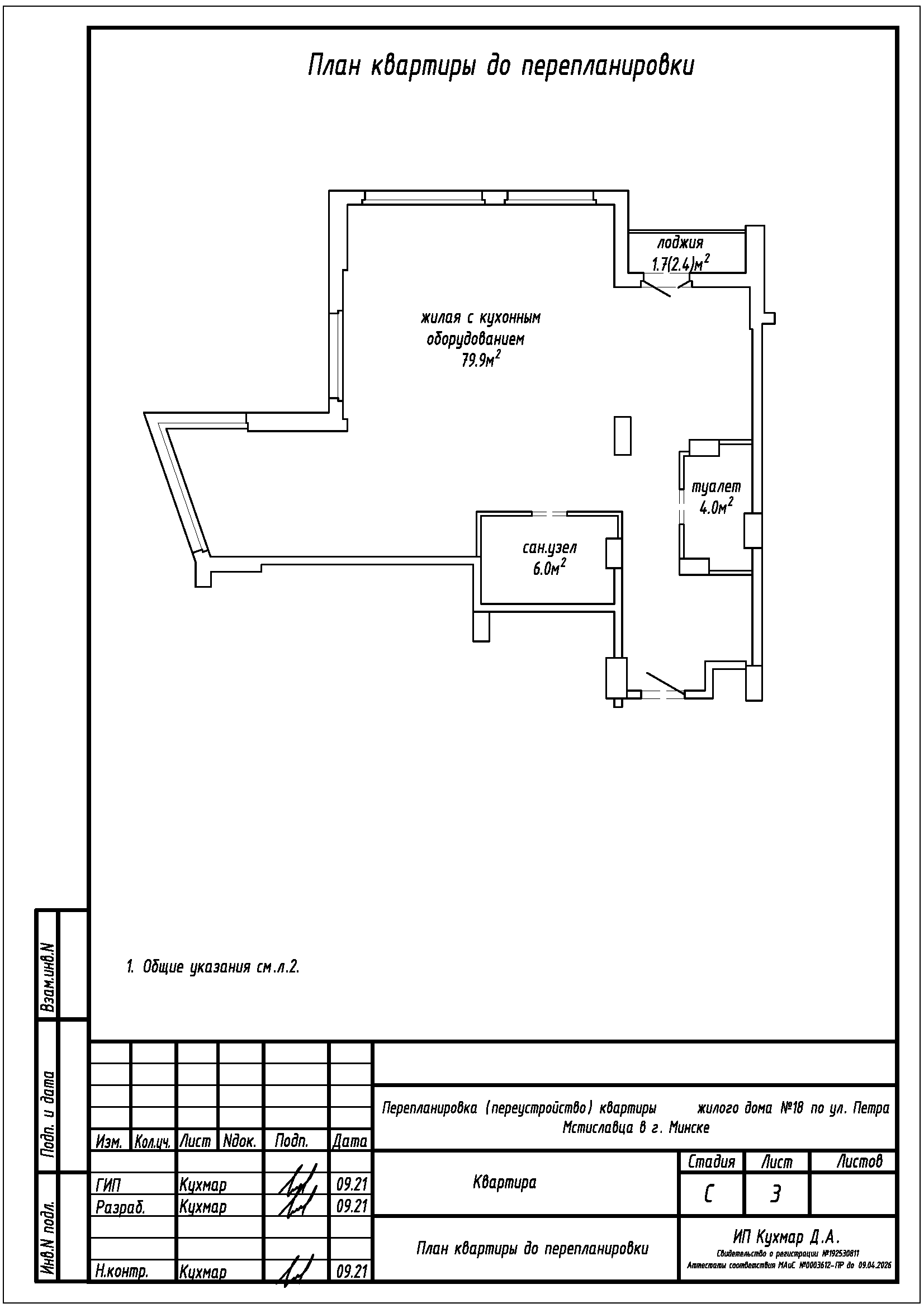
Перепланировка квартиры по ул. Петра Мстиславца, 18 в ЖК «Маяк Минска»
Пожелания заказчика:
- Разделение общего помещения жилой с кухонным оборудованием на три отдельные жилые и жилую с кухонным оборудованием;
- Изменение площади туалета;
- Уменьшение площади санузла;
- Изменение направления открывания входной двери в квартиру.
Нами были разработаны следующие разделы проектной документации для согласования в исполкоме:
- АС - архитектурно-строительные решения.
