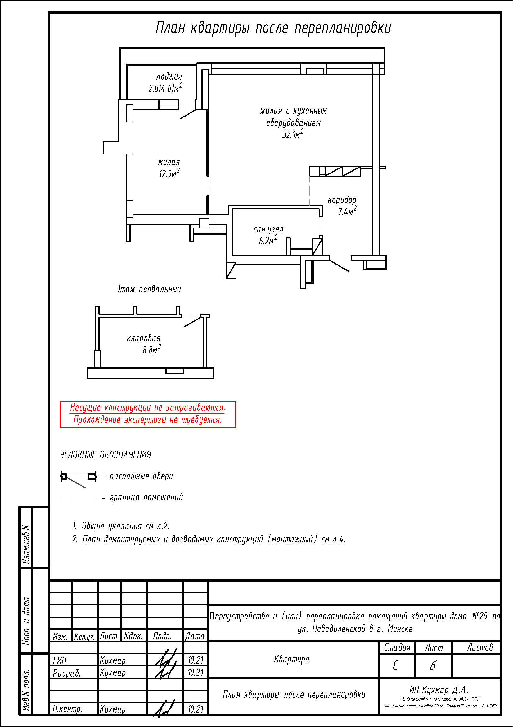
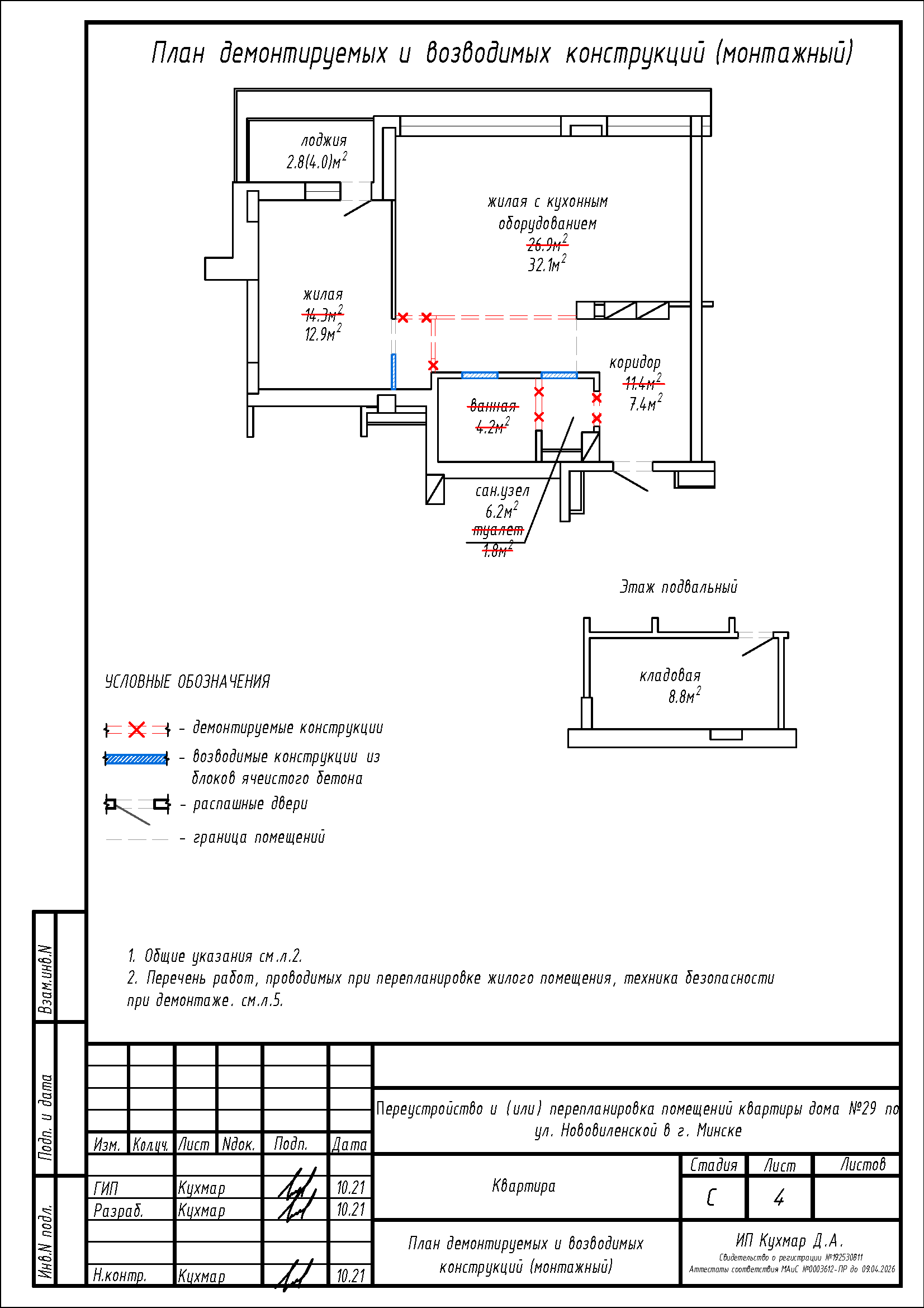
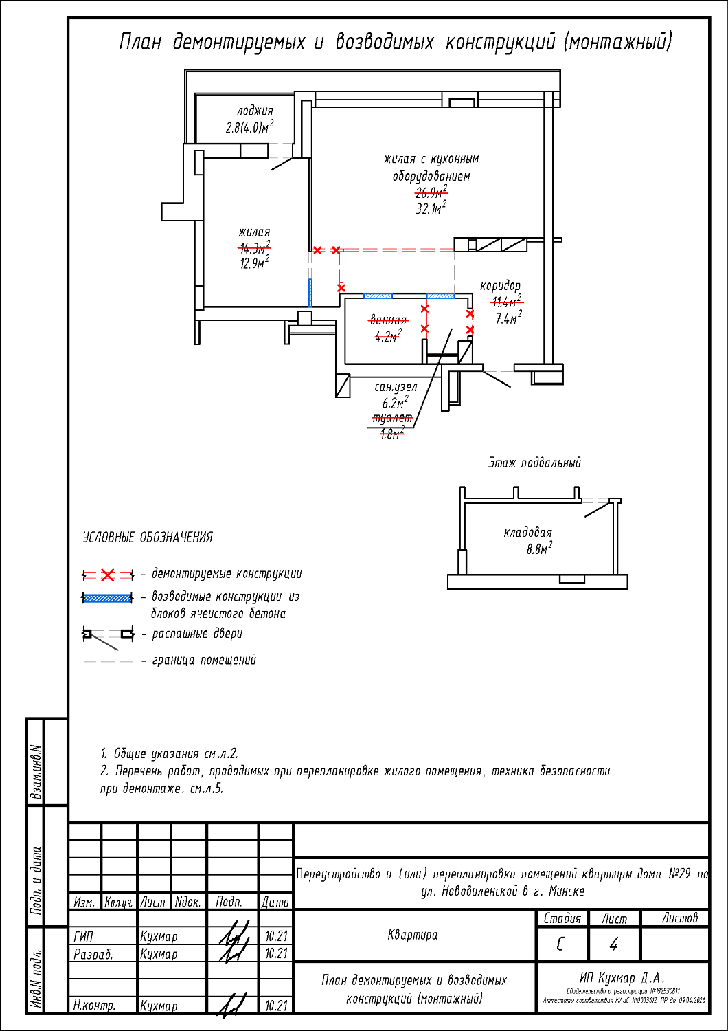
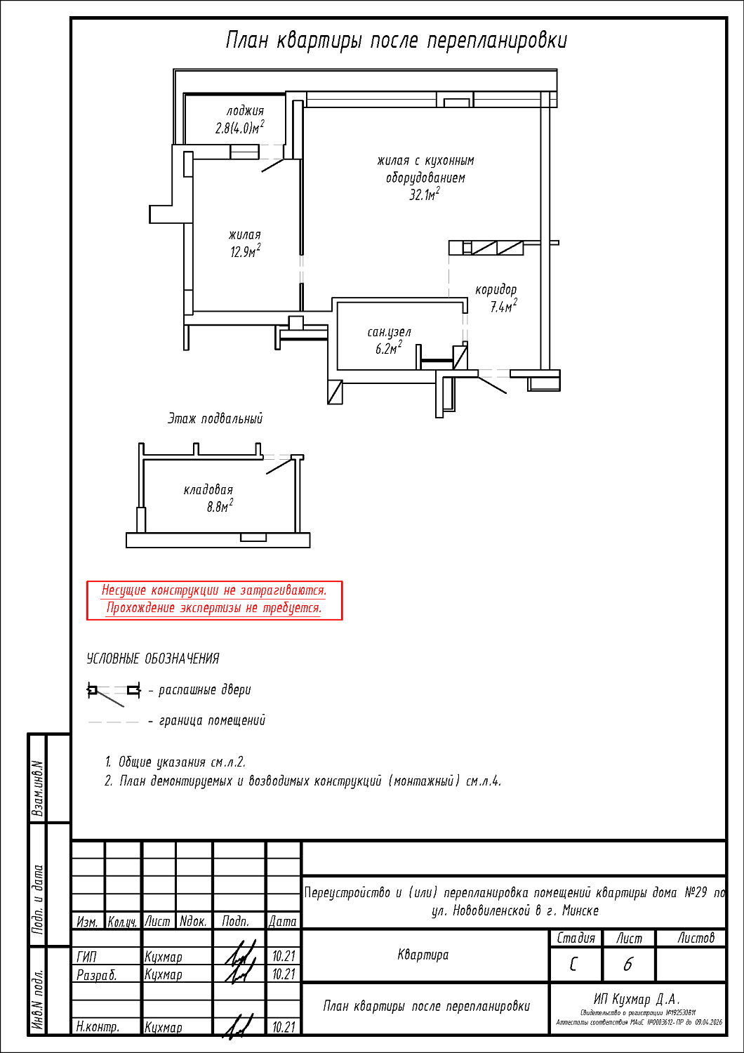
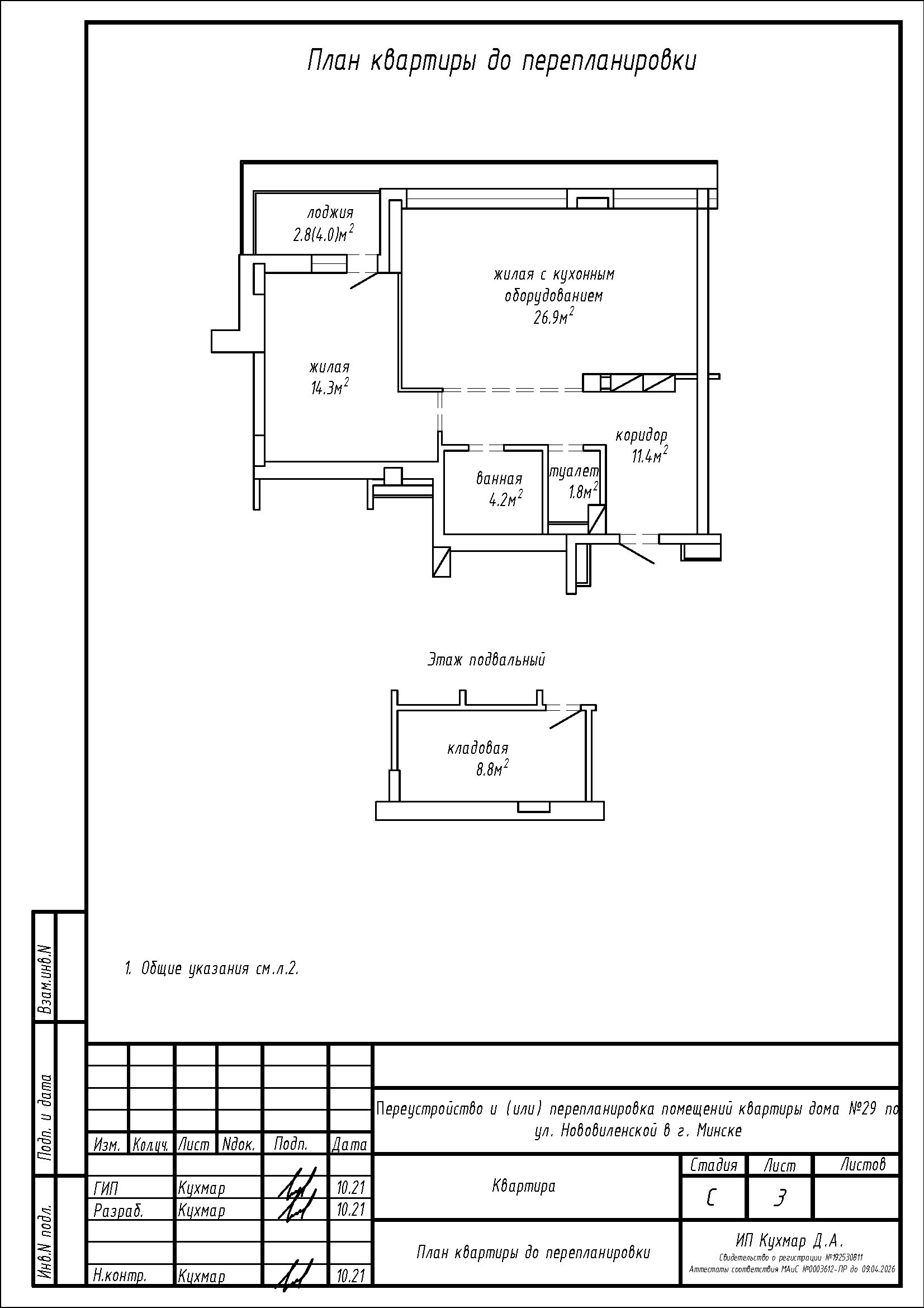
Перепланировка квартиры по ул. Нововиленская, 29 в ЖК «Левада»
Пожелания заказчика:
- Демонтаж частей перегородок между жилой с кухонным оборудованием и коридором;
- Увеличение площади жилой с кухонным оборудованием за счет коридора;
- Объединение ванной и туалета в санузел.
Нами были разработаны следующие разделы проектной документации для согласования в исполкоме:
- АС - архитектурно-строительные решения.
