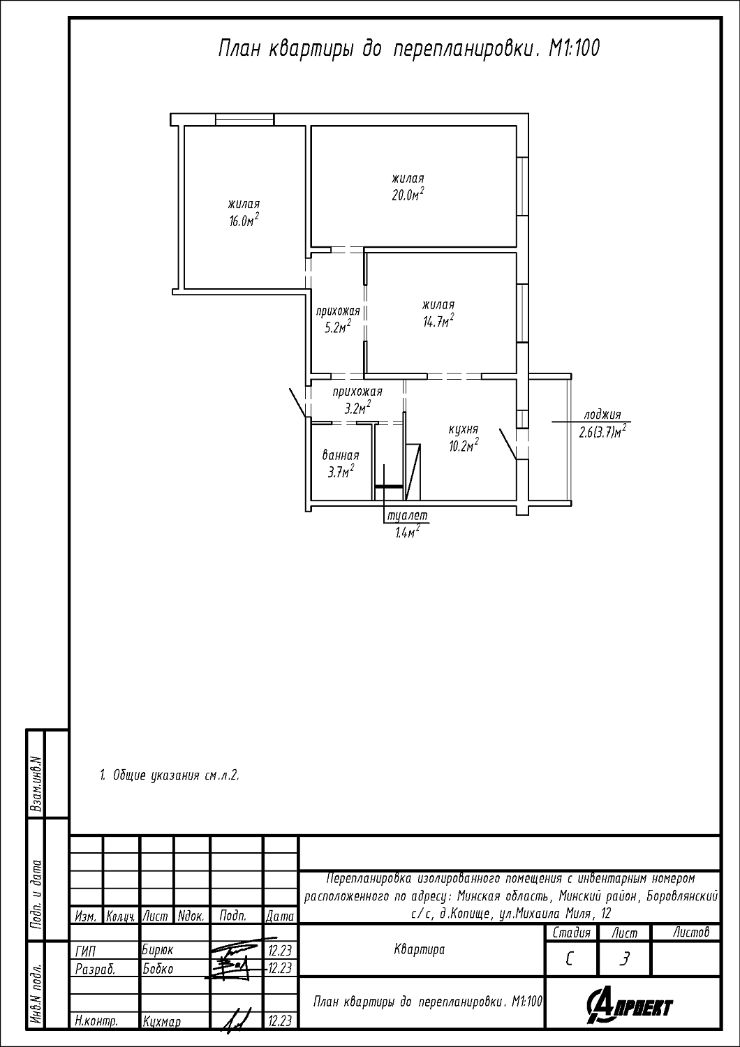
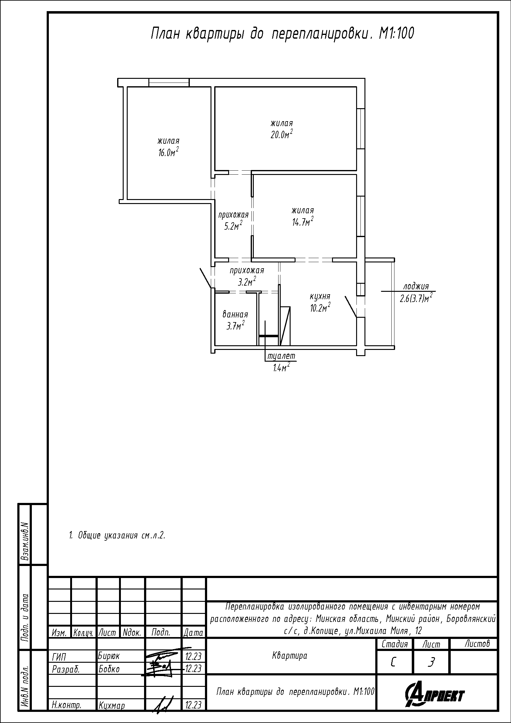
Перепланировка квартиры по ул. Михаила Миля, 12 в ЖК «Новая Боровая»
Пожелания заказчика:
- Увеличение площади жилой за счёт демонтажа существующей перегородки дверного проёма между жилой и прихожей 5.2 м2;
- Закладка дверного проёма между прихожей 3.2 м2 и кухней;
- Уменьшение дверного проёма между жилой и кухней;
- Сужение дверного проёма в стене между жилой и прихожей;
- Объединение ванной и туалета в единый санузел;
- Увеличение объединённого санузла;
- Изменение типа подключения отопительного прибора в кухне.
Нами были разработаны следующие разделы проектной документации для согласования в исполкоме:
- АС - архитектурно-строительные решения;
- ОВ - отопление и вентиляция.
