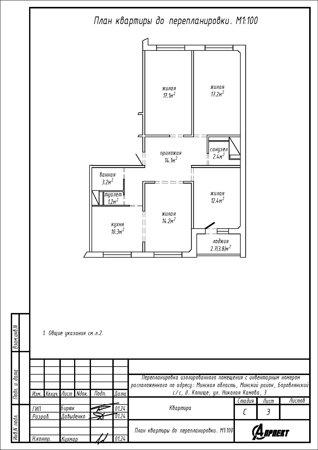
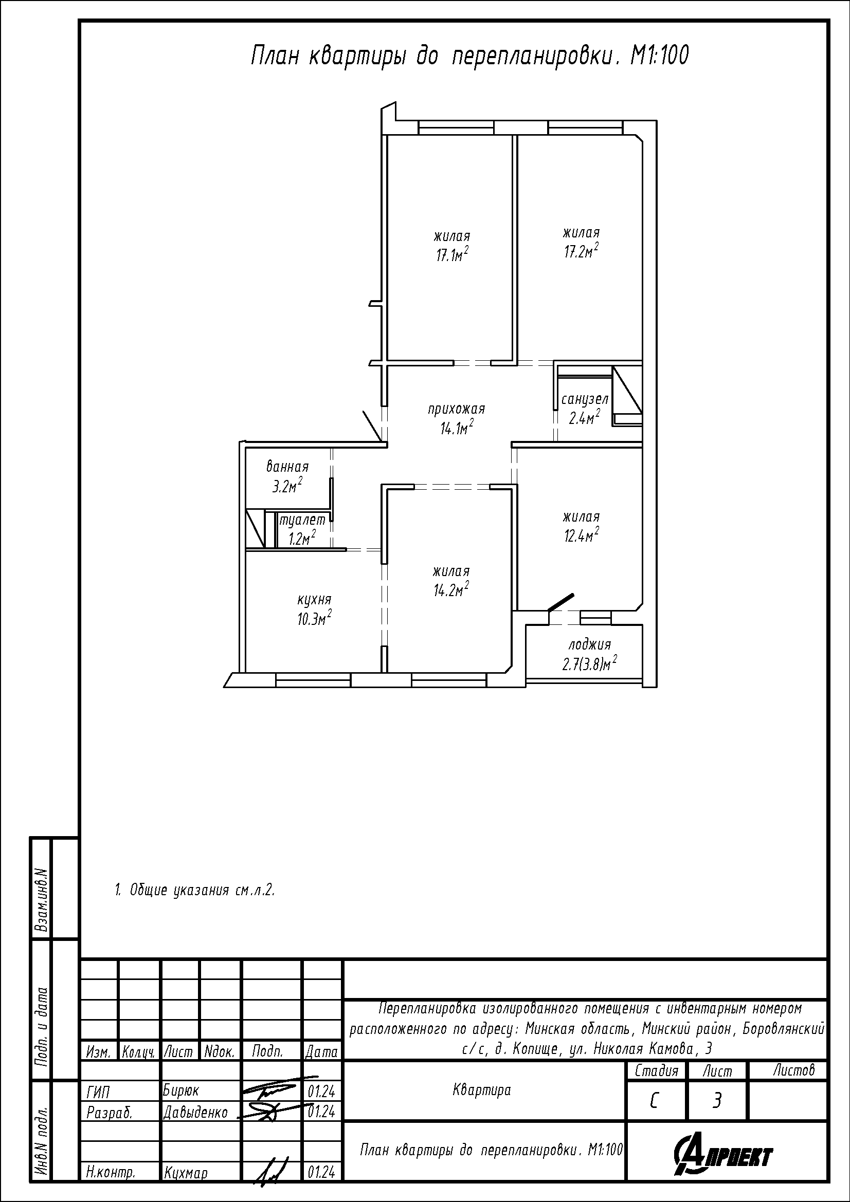
Перепланировка квартиры по ул. Камова, 3 в ЖК «Новая Боровая»
Пожелания заказчика:
- Закладка дверного проёма между кухней и прихожей;
- Изменение дверного проёма между кухней и жилой;
- Объединение ванной и туалета с целью устройства ванной;
- Устройство туалета на части площади прихожей;
- Изменение площади прихожей.
Нами были разработаны следующие разделы проектной документации для согласования в исполкоме:
- АС - архитектурно-строительные решения.
