Перепланировка квартиры по ул. Игоря Лученка, 32 в ЖК «Минск Мир» в г. Минске
Пожелания заказчика:
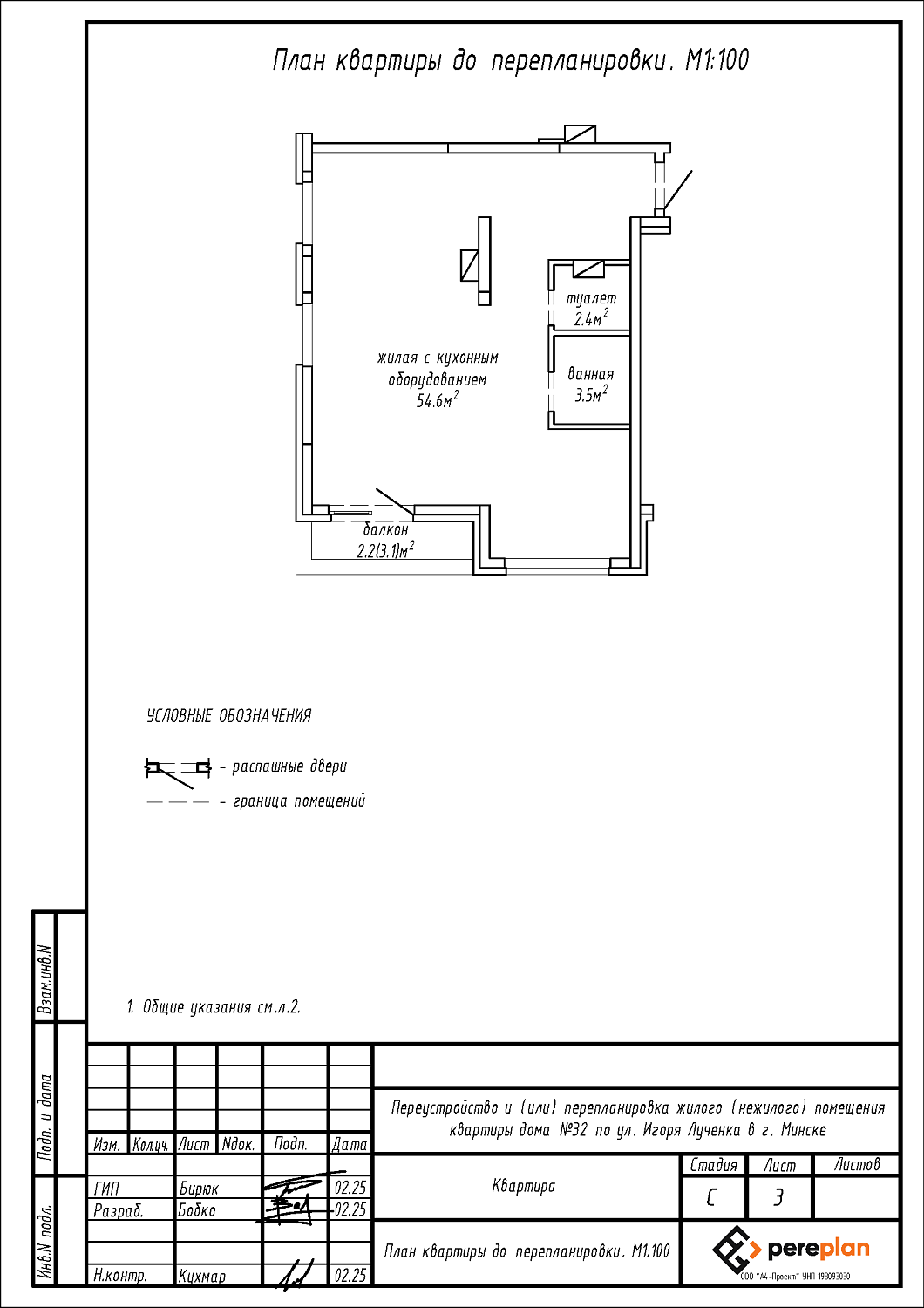
- Демонтаж перегородок с дверными проемами между жилой с кухонным оборудованием, ванной и туалетом с последующим устройством перегородок с дверными проемами и зашивок из ГКЛ на части площади жилой с кухонным оборудованием, ванной и туалета с целью устройства жилой с кухонным оборудованием, двух жилых, коридора, ванной и туалета.
Нами были разработаны следующие разделы проектной документации для согласования в исполкоме:
- АС - архитектурно-строительные решения.


