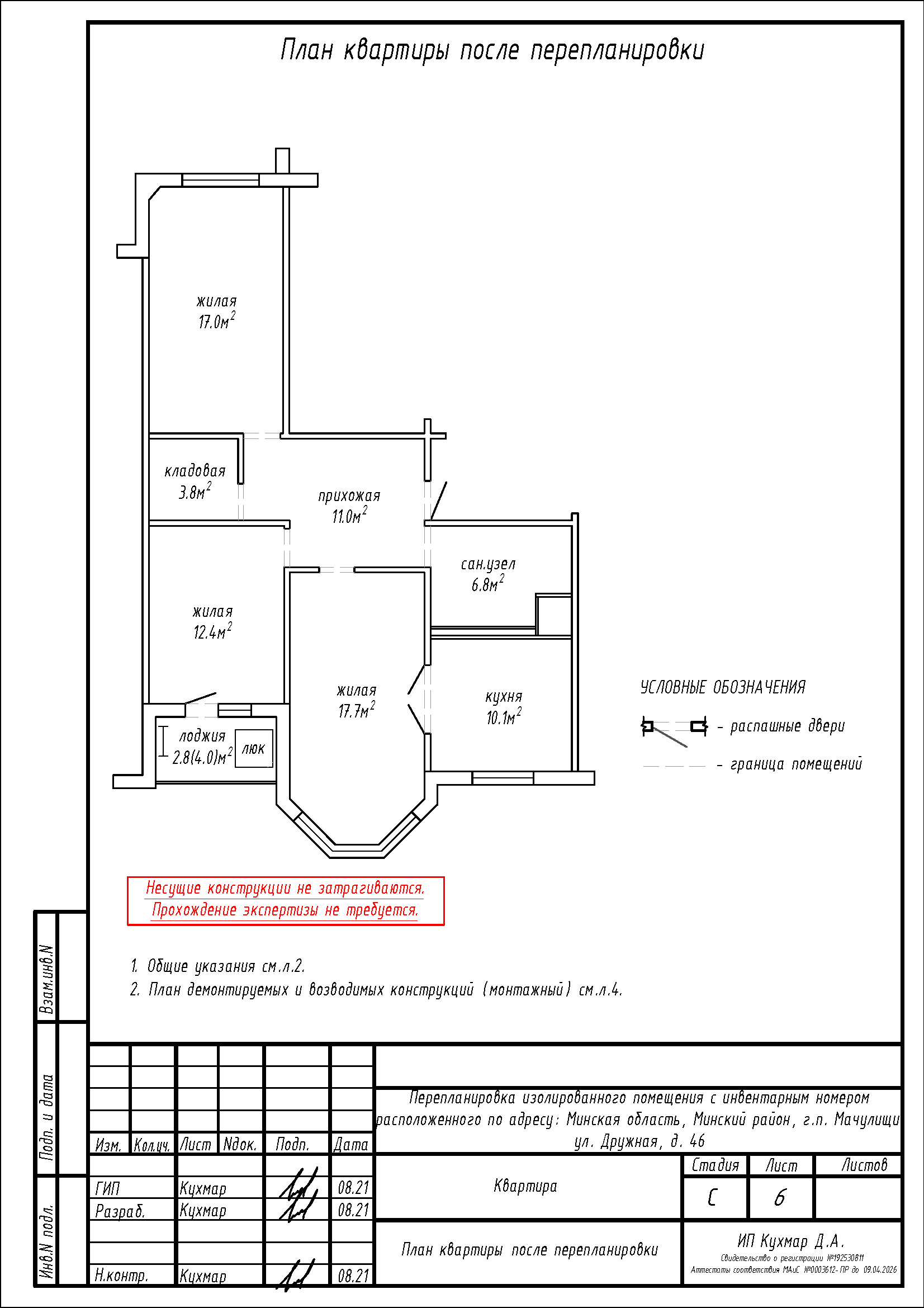
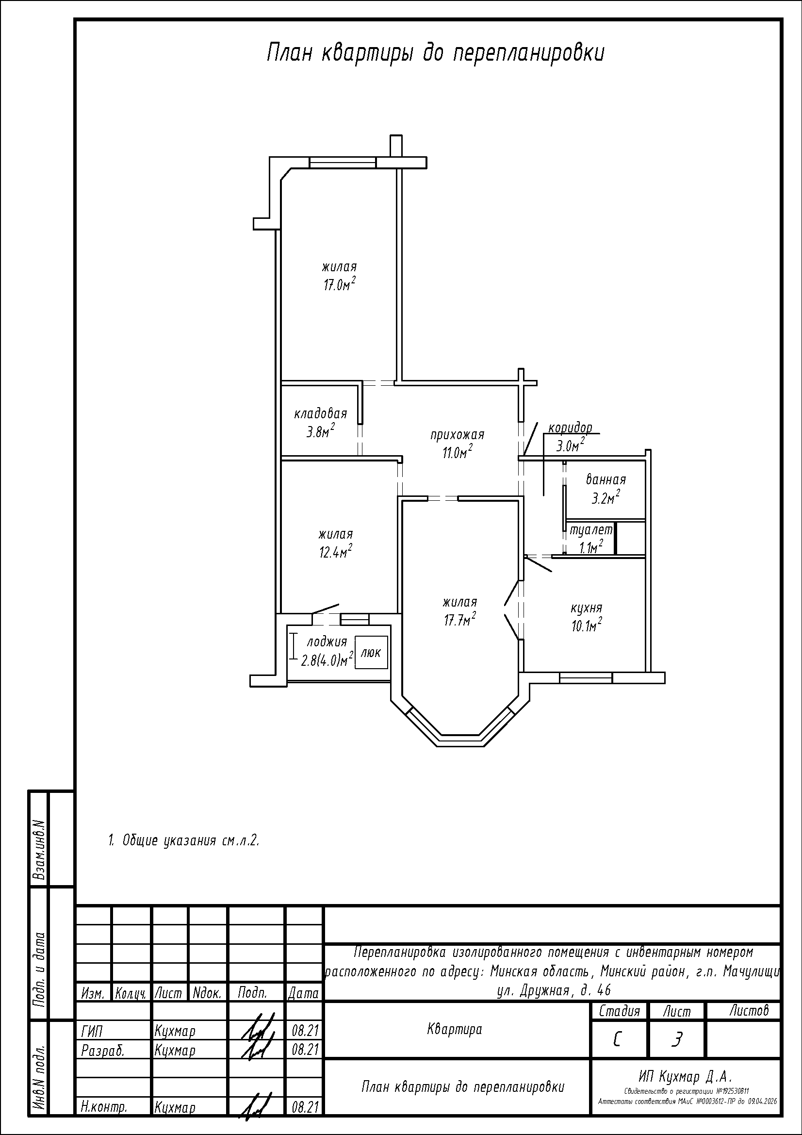
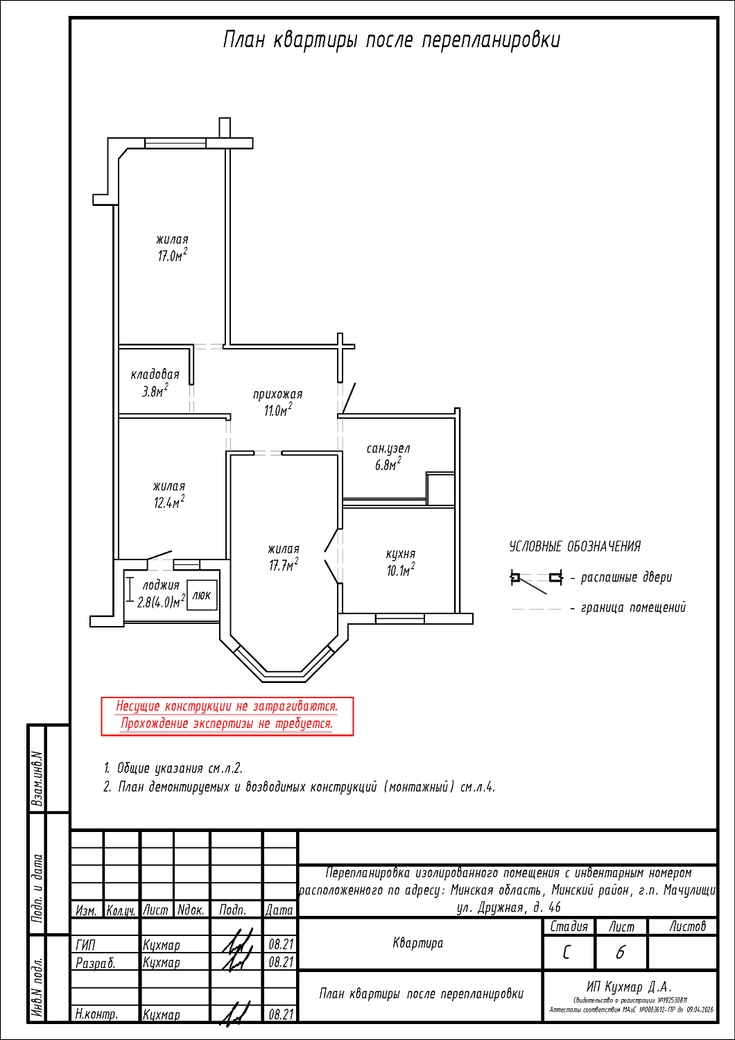
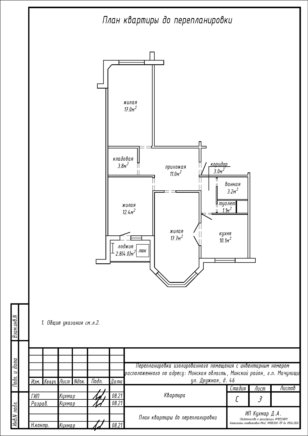
Перепланировка квартиры по ул. Дружная, 46 в г.п. Мачулищи
Пожелания заказчика:
- Объединение ванной и туалета в санузел;
- Увеличение санузла за счет площади коридора;
- Закладка дверного проема между коридором и кухней.
Нами были разработаны следующие разделы проектной документации для согласования в исполкоме:
- АС - архитектурно-строительные решения.
