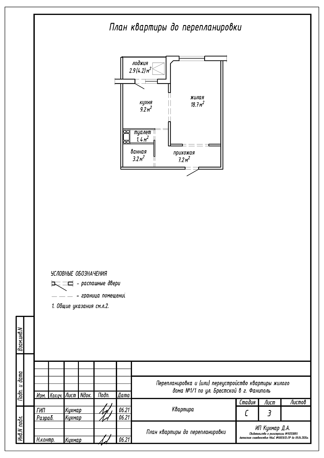
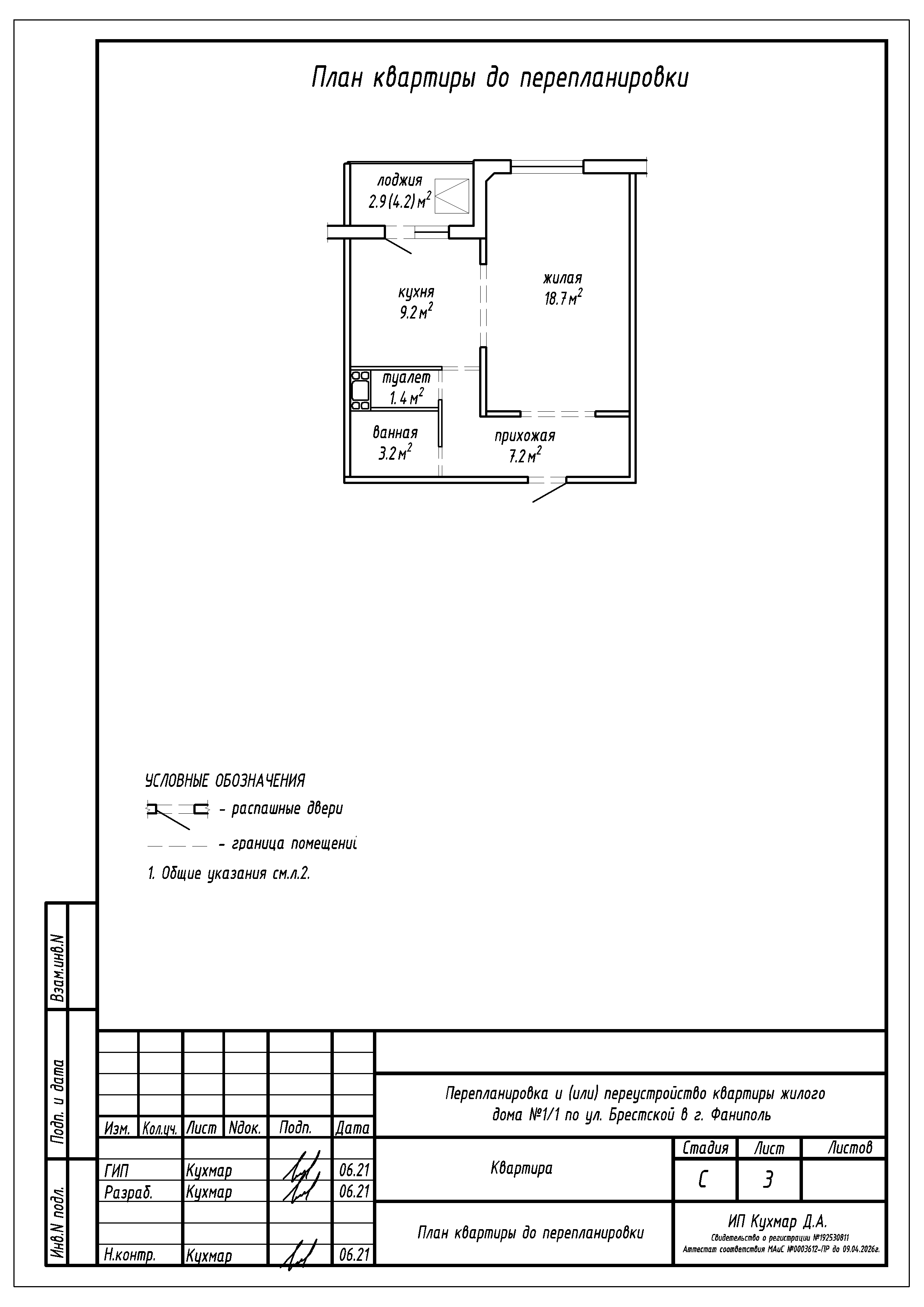
Перепланировка квартиры по ул. Брестская, 1 корпус 1 в г. Фаниполь
Пожелания заказчика:
- Устройство коридора на части площади коридора;
- Демонтаж части перегородки с дверным проёмом между ванной и прихожей;
- Устройство перегородок с дверным проёмом на части площади прихожей с целью увеличения площади ванной.
Нами были разработаны следующие разделы проектной документации для согласования в исполкоме:
- АС - архитектурно-строительные решения.
