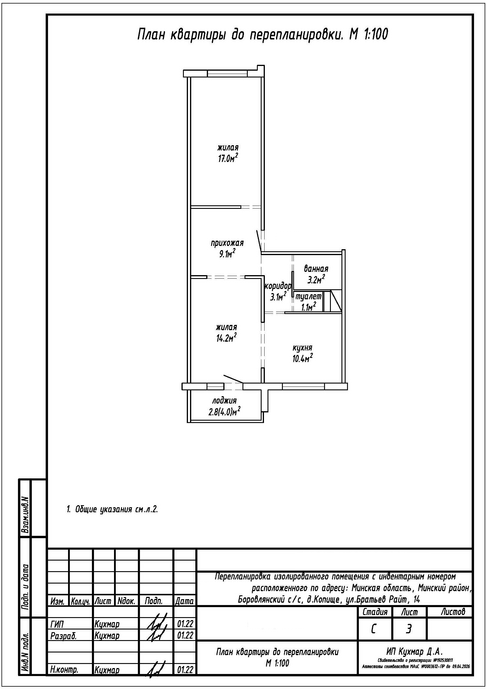
Перепланировка квартиры по ул. Братьев Райт, 14 в ЖК «Новая Боровая»
Пожелания заказчика:
- Сужение дверного проёма между кухней и жилой;
- Сужение дверного проёма между жилой и прихожей;
- Объединение ванной и туалета в единый санузел.
Нами были разработаны следующие разделы проектной документации для согласования в исполкоме:
- АС - архитектурно-строительные решения.
