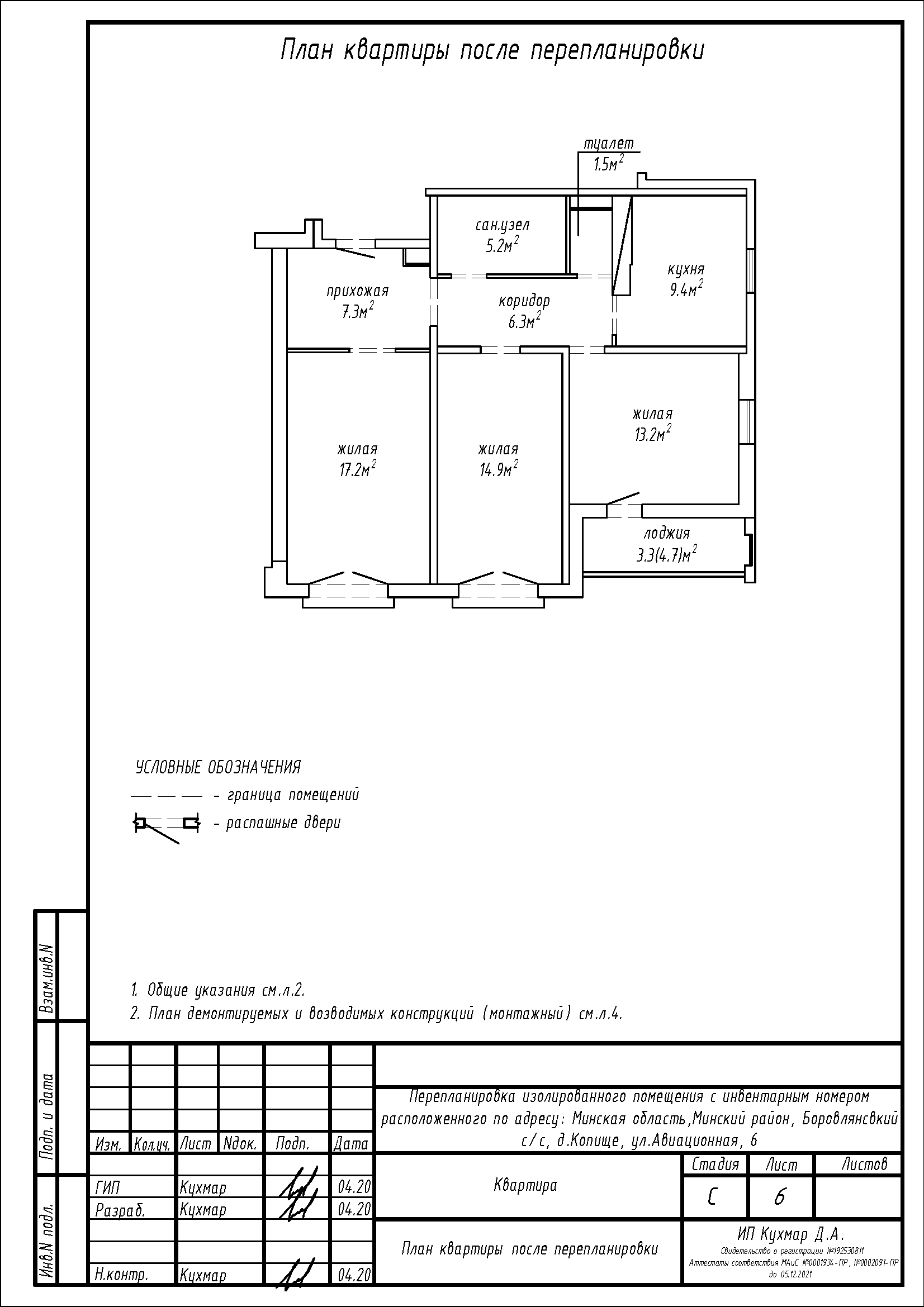
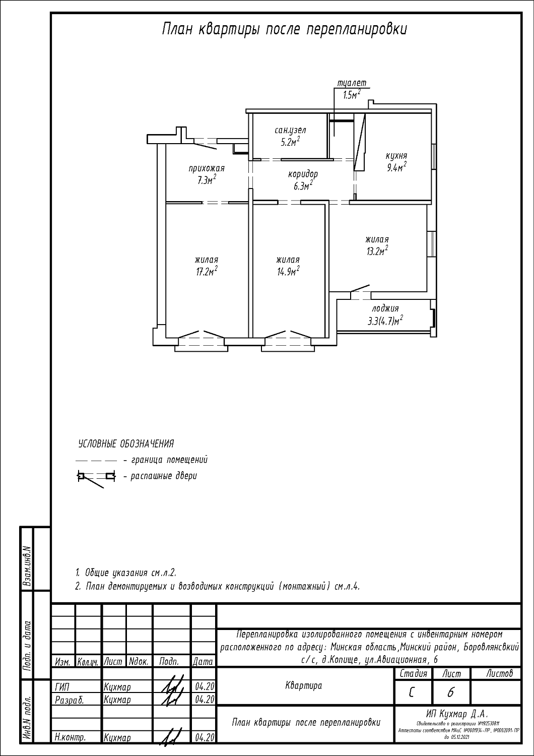
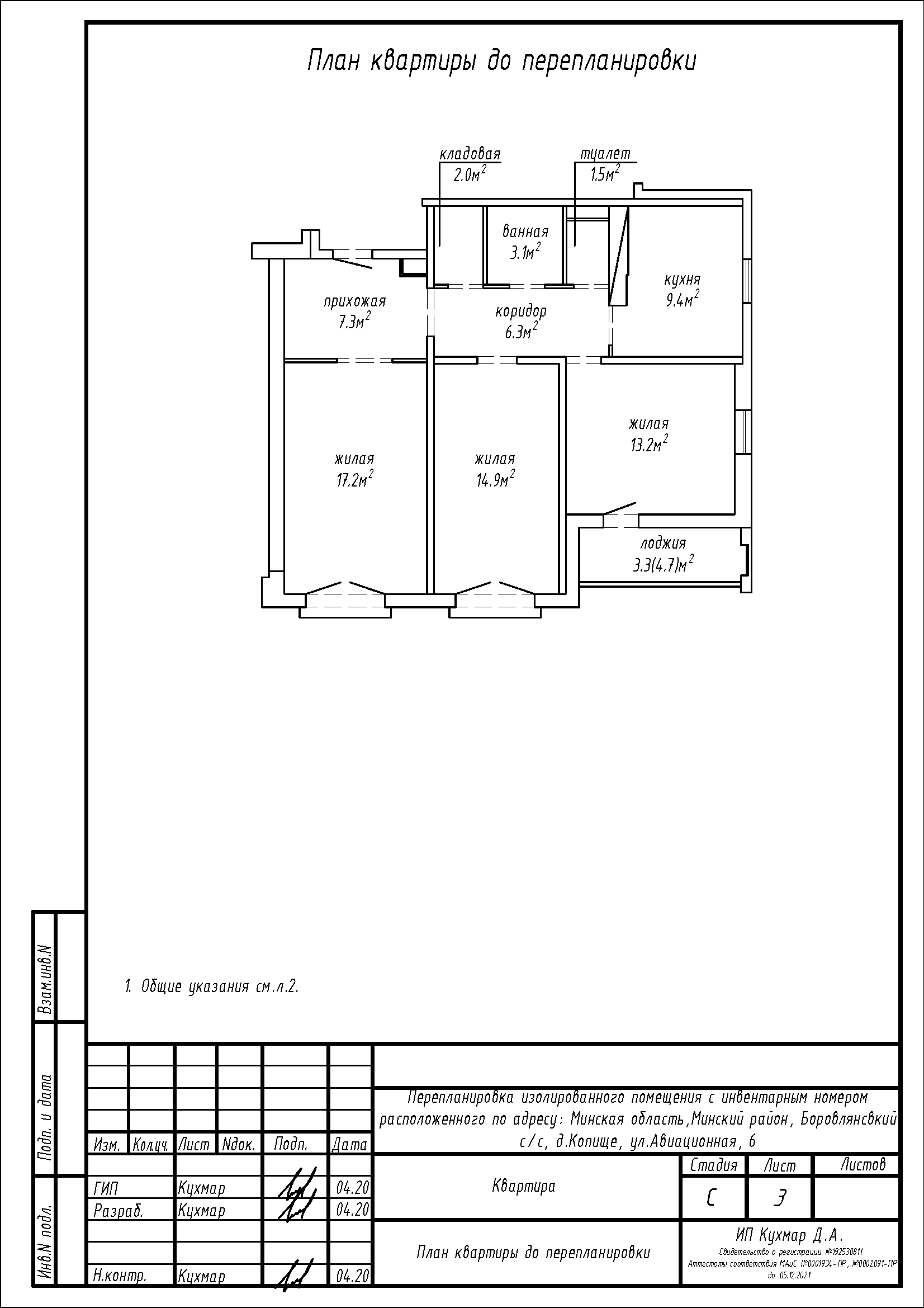
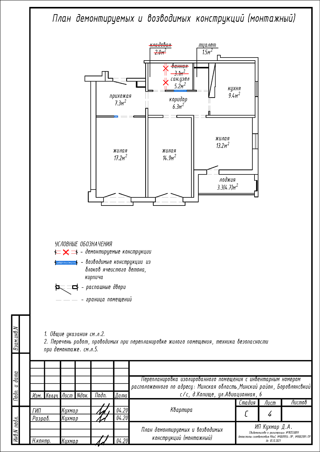
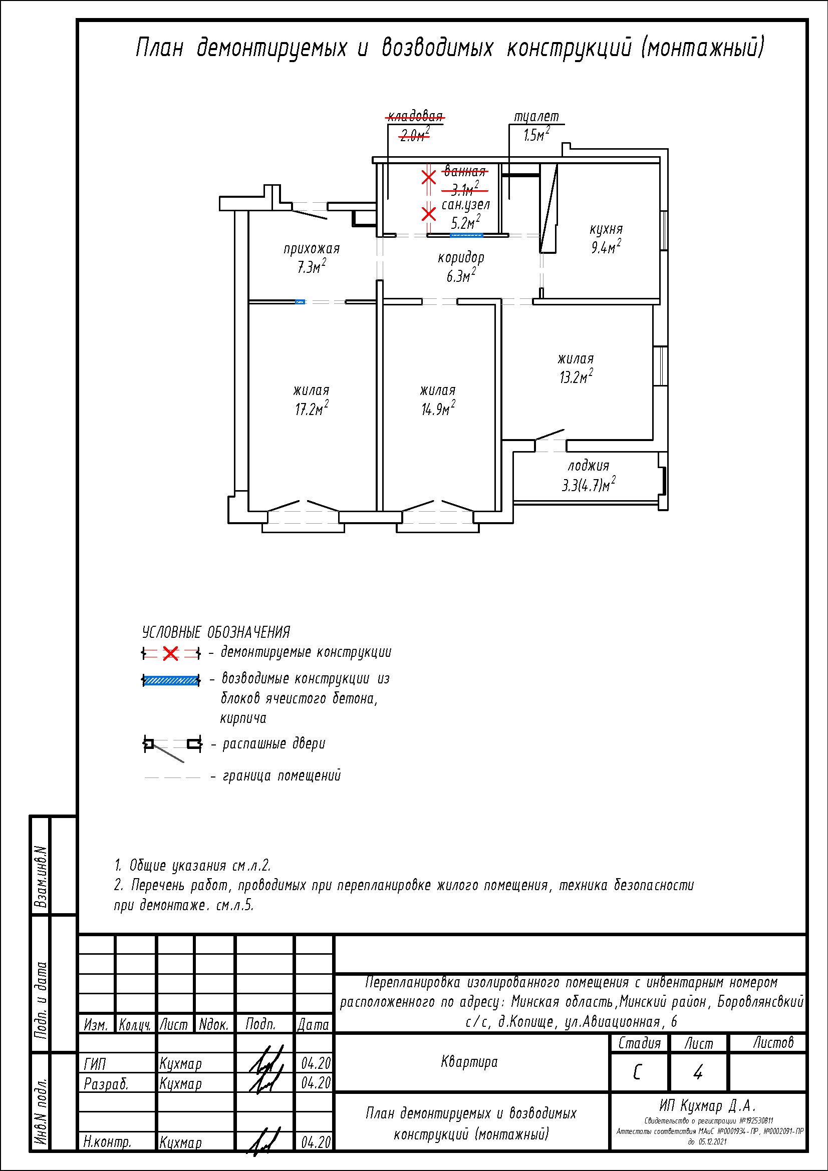
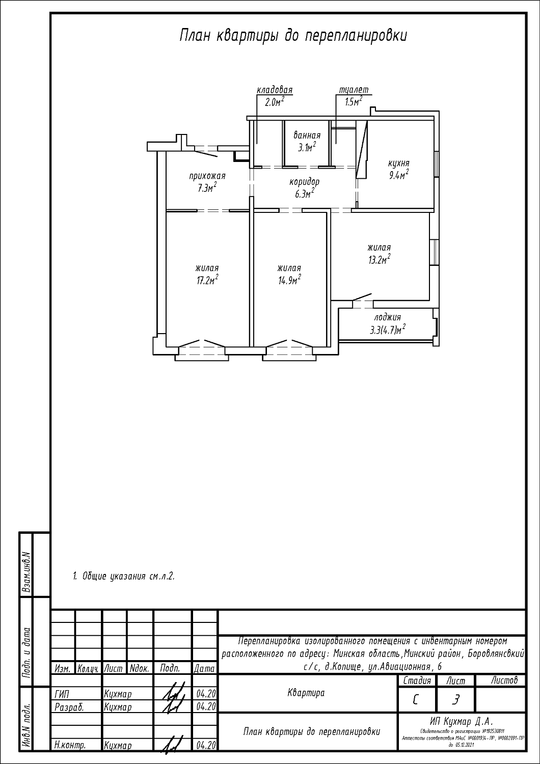
Перепланировка квартиры по ул. Авиационная, 6 в ЖК «Новая Боровая»
Пожелания заказчика:
- Объединение кладовой и ванной с целью устройства совмещенного санузла.
Нами были разработаны следующие разделы проектной документации для согласования в исполкоме:
- АС - архитектурно-строительные решения.
