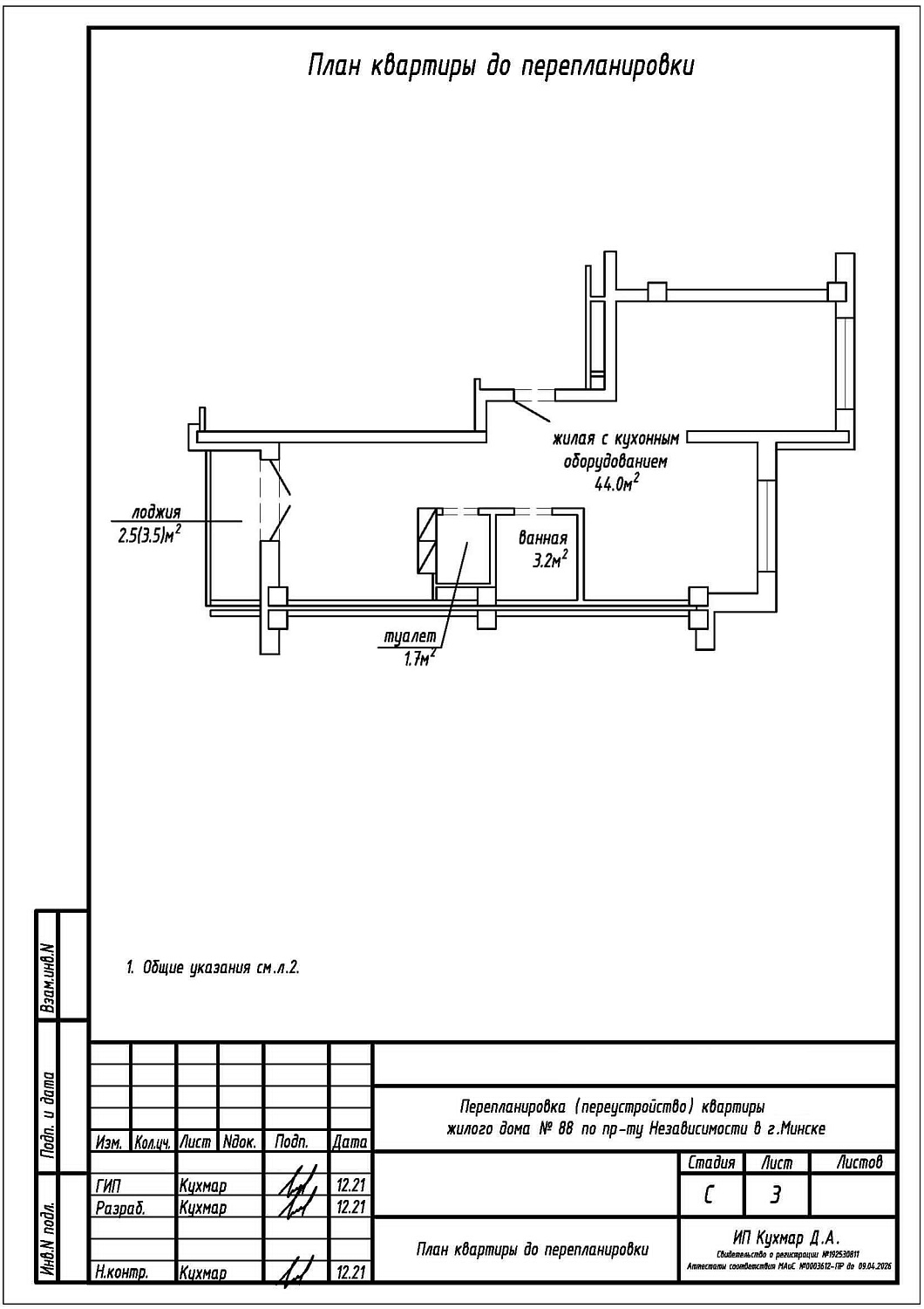
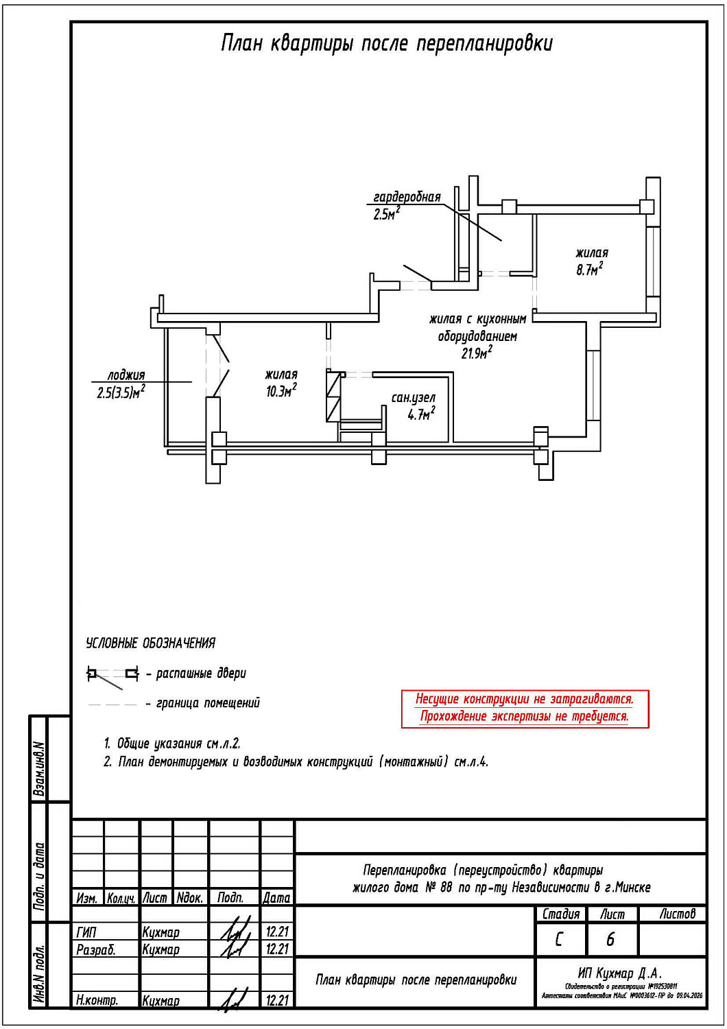
Перепланировка квартиры по пр-ту Независимости, 88 в ЖК «Парк Челюскинцев»
Пожелания заказчика:
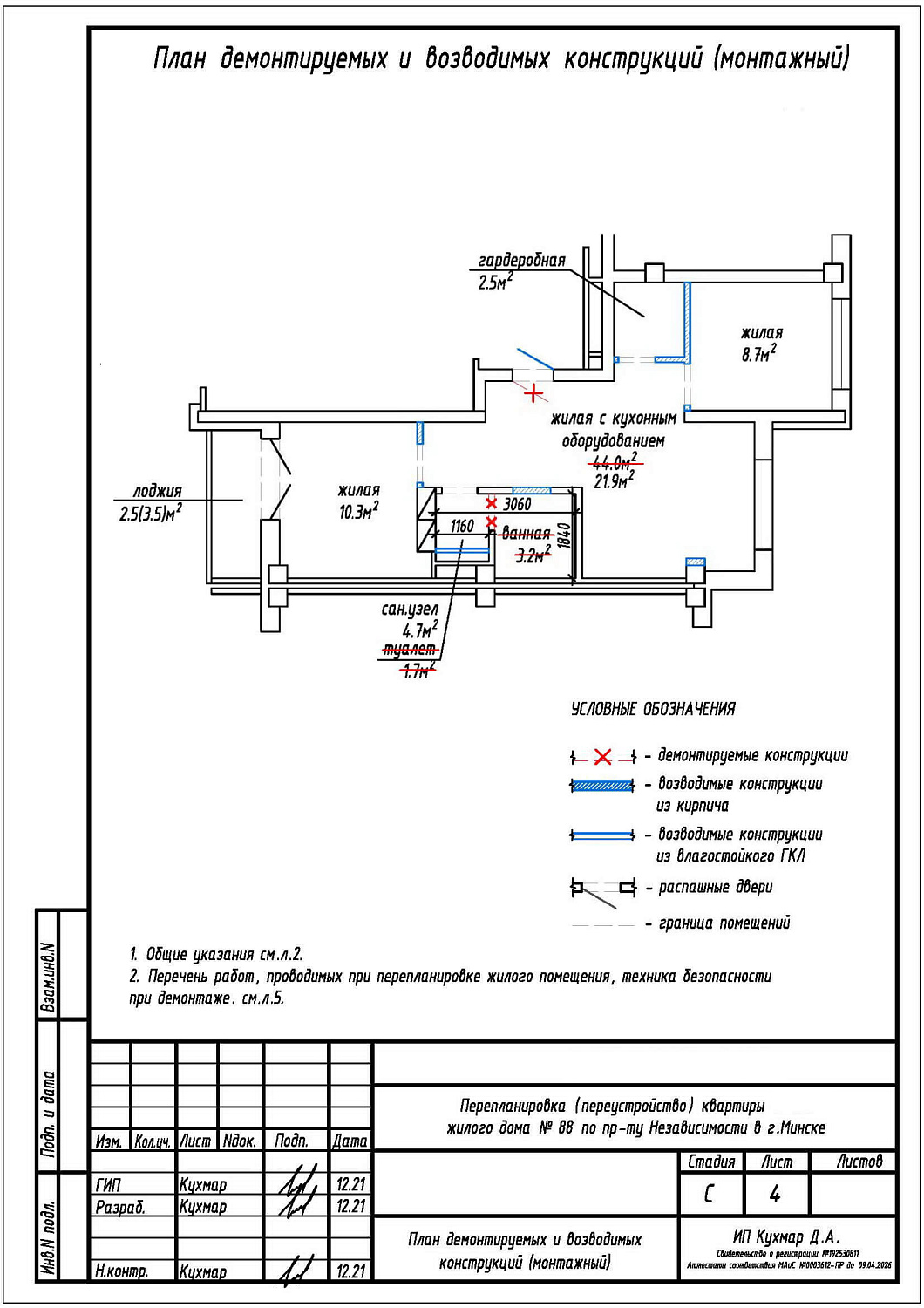
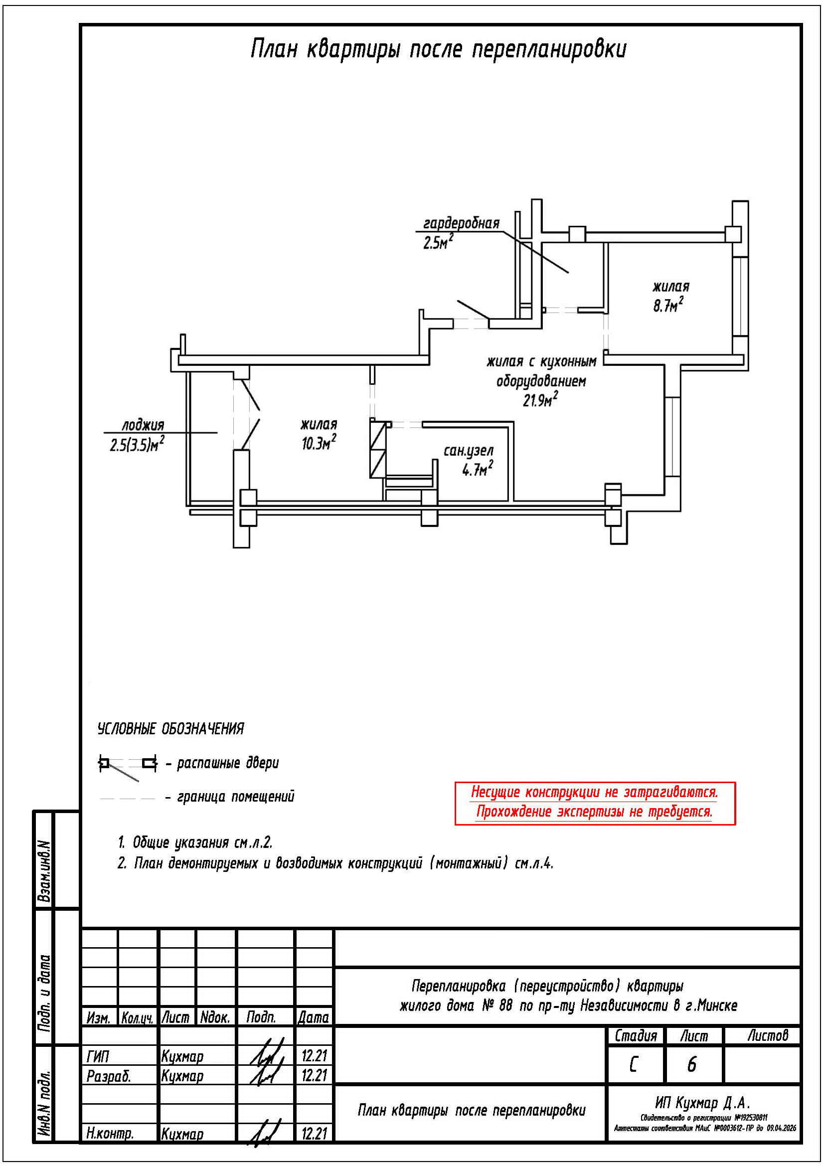
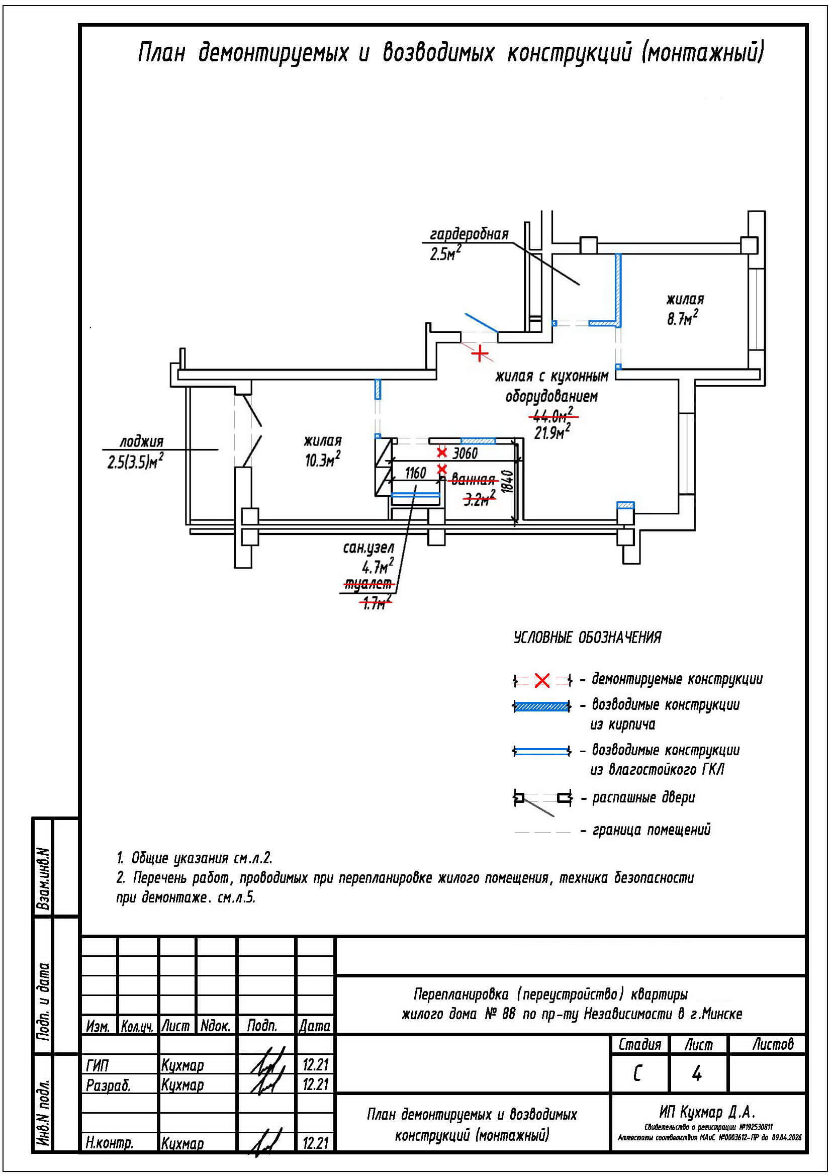
- Демонтаж части перегородки между туалетом и ванной с последующим устройством перегородки на части площади туалета с целью устройства объединённого сан.узла;
- Закладка дверного проема в перегородке между ванной и жилой с кухонным оборудованием;
- Устройство перегородок с дверными проемами на части площади жилой с кухонным оборудованием с целью устройства жилой с кухонным оборудованием, двух жилых и гардеробной.
Нами были разработаны следующие разделы проектной документации для согласования в исполкоме:
- АС - архитектурно-строительные решения.
