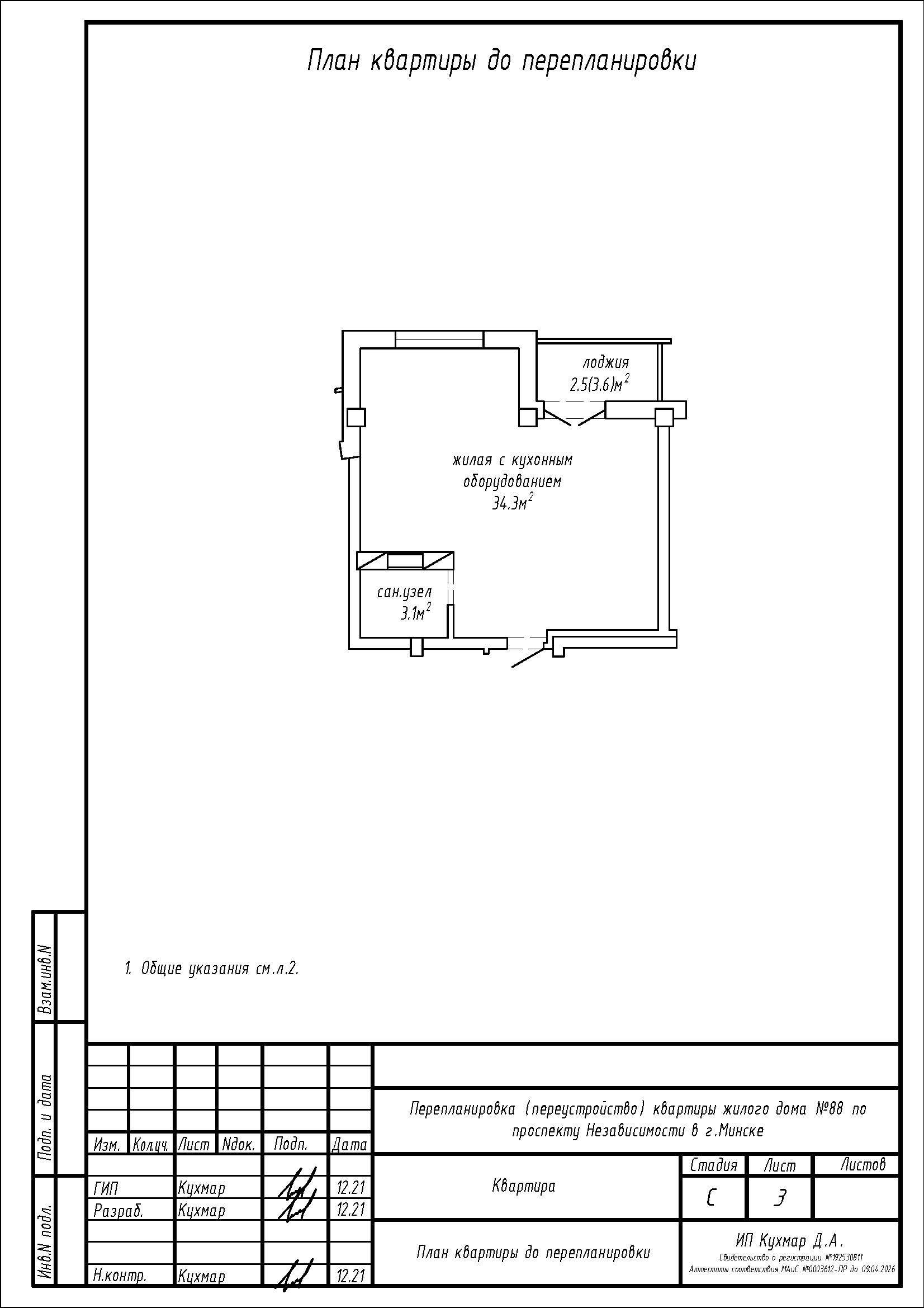
Перепланировка квартиры по пр-ту Независимости, 88 в ЖК «Парк Челюскинцев»
Пожелания заказчика:
- Разделение общего помещения жилой с кухонным оборудованием на отдельную жилую с кухонным оборудованием, жилую и гардеробную;
- Увеличение площади санузла за счет площади жилой с кухонным оборудованием, но не более чем на 25%.
Нами были разработаны следующие разделы проектной документации для согласования в исполкоме:
- АС - архитектурно-строительные решения.
