Перепланировка квартиры по пр-ту Независимости, 85Г в г.Минске
Пожелания заказчика:
- Демонтаж перегородок с дверным проёмом между кухней 14,6 м2 и жилой 91,4 м2;
- Демонтаж перегородок с дверным проёмом между санузлом 4.3 м2 и жилой 91,4 м2;
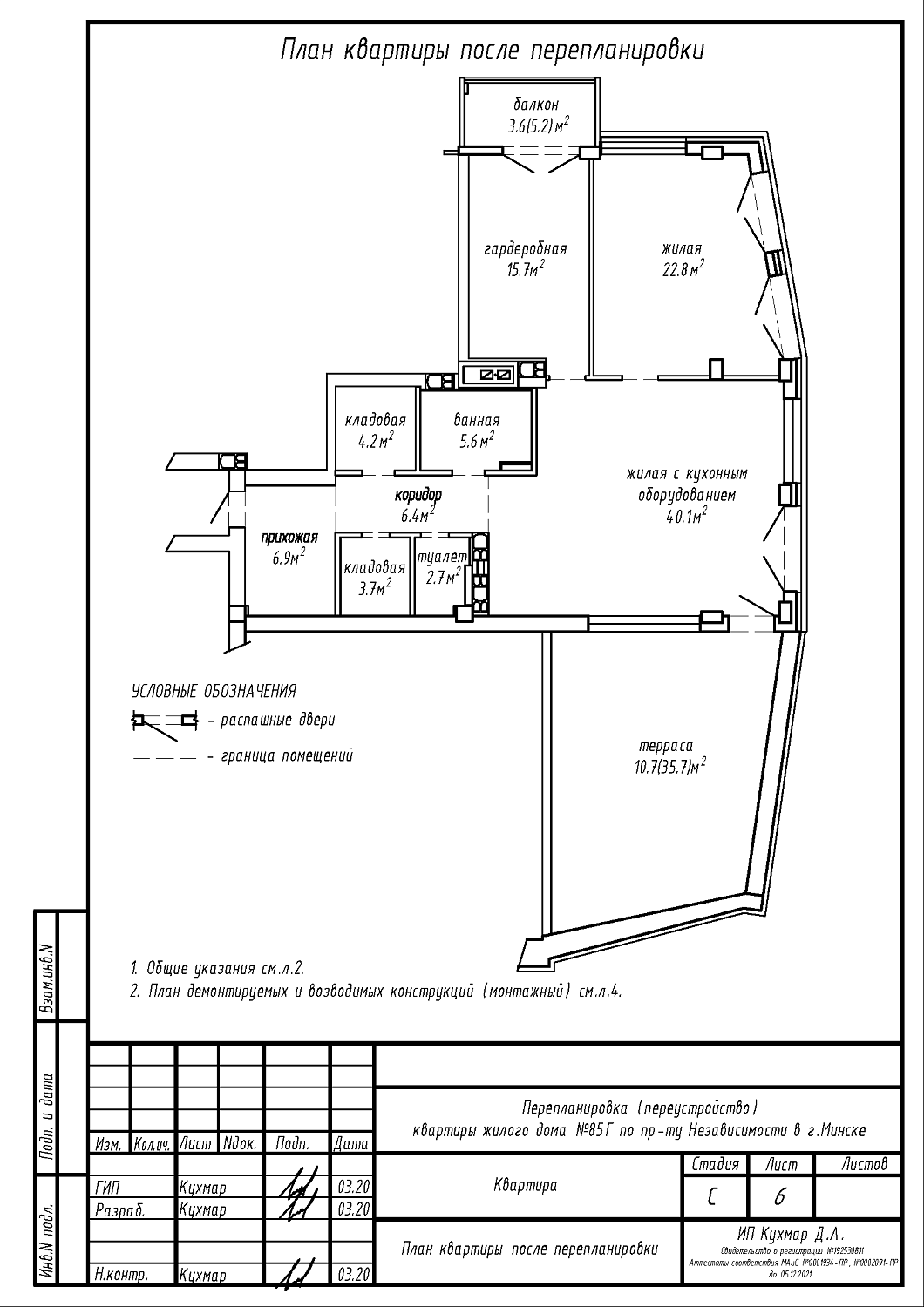
- Устройство перегородок с дверными проёмами на площади жилой 91,4 м2 с целью образования помещений: прихожей, коридора, двух кладовых, ванной, туалета, жилой комнаты с кухонным оборудованием, жилой и гардеробной;
- Устройство перегородки на площади балкона;
- Расчёт тепловой нагрузки системы отопления, расчёт отопительных приборов.
Нами были разработаны следующие разделы проектной документации для согласования в исполкоме:
- АС - архитектурно-строительные решения;
- ОВ - отопление и вентиляция.
