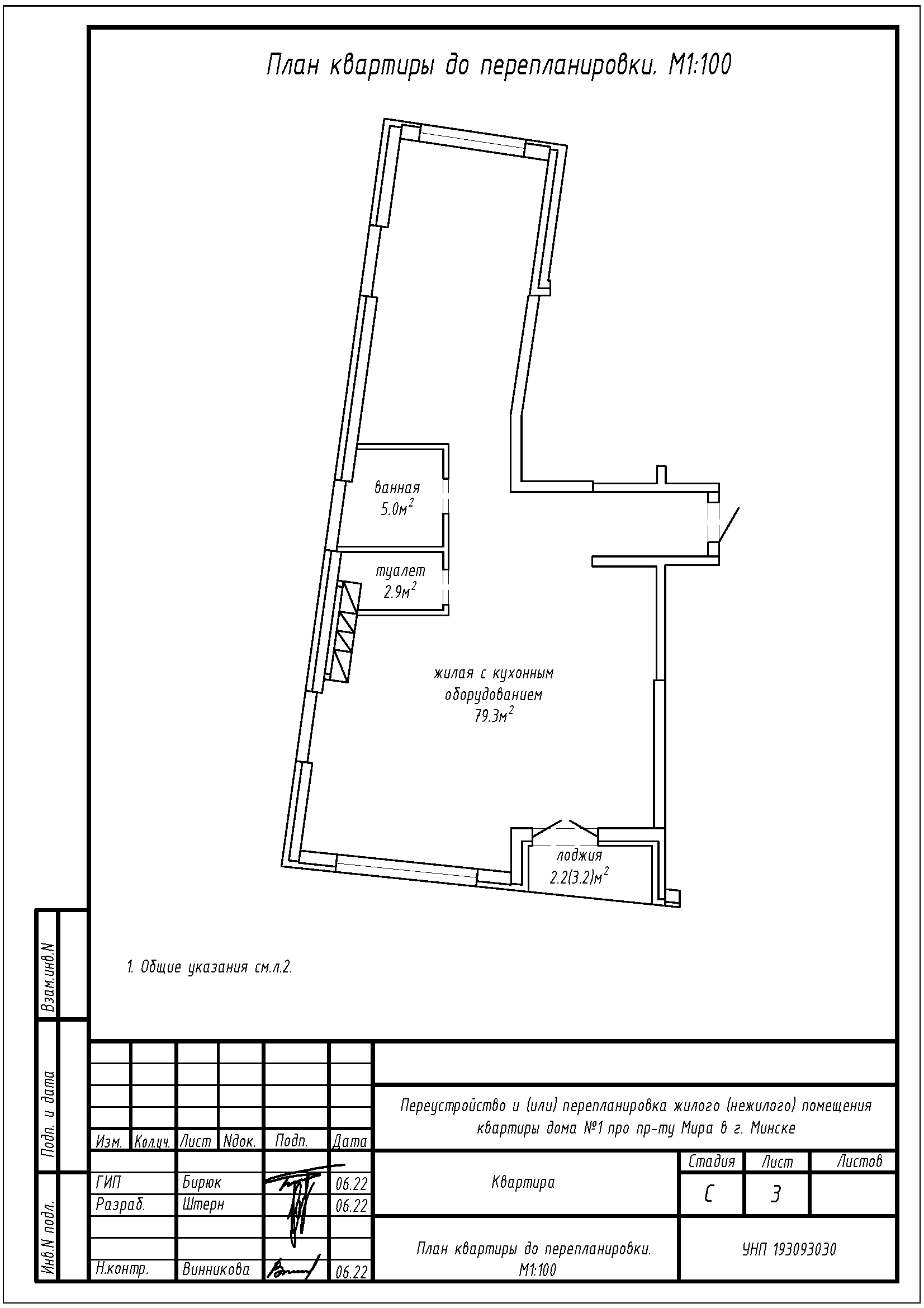
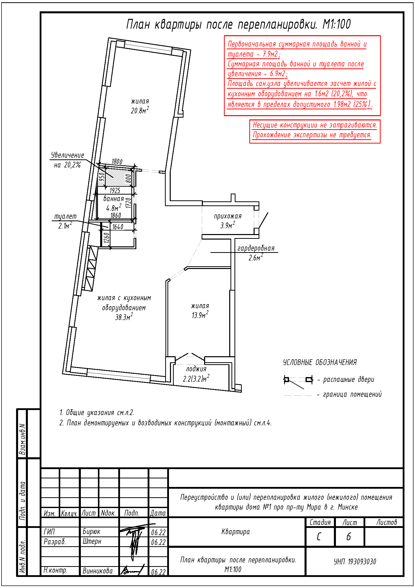
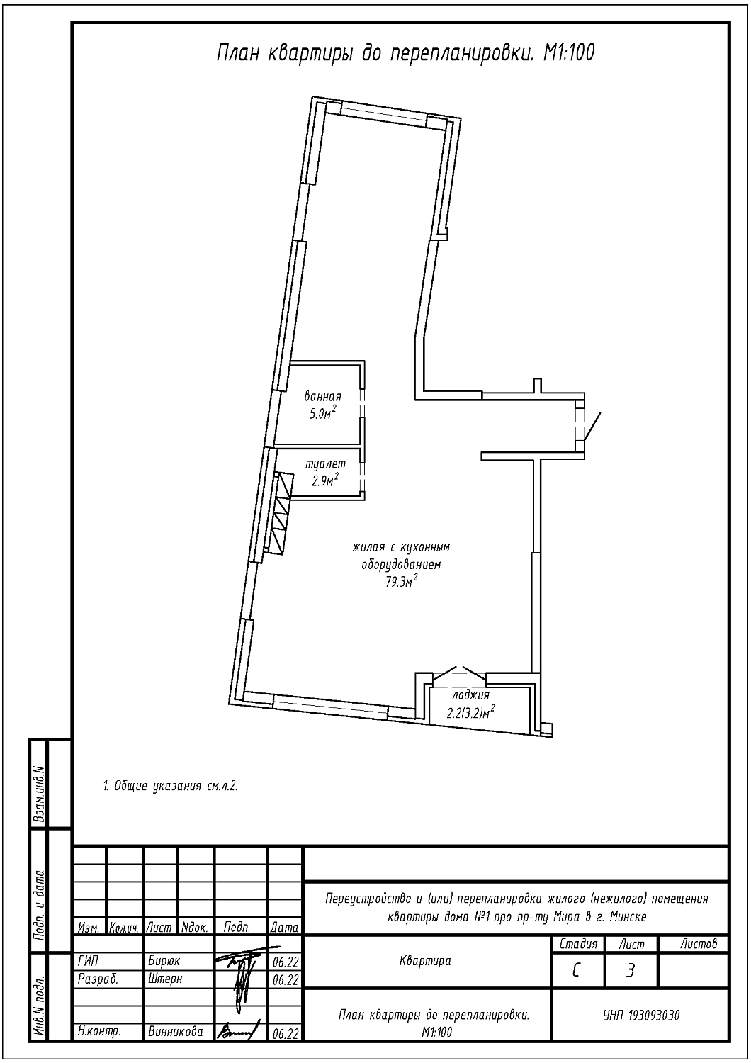
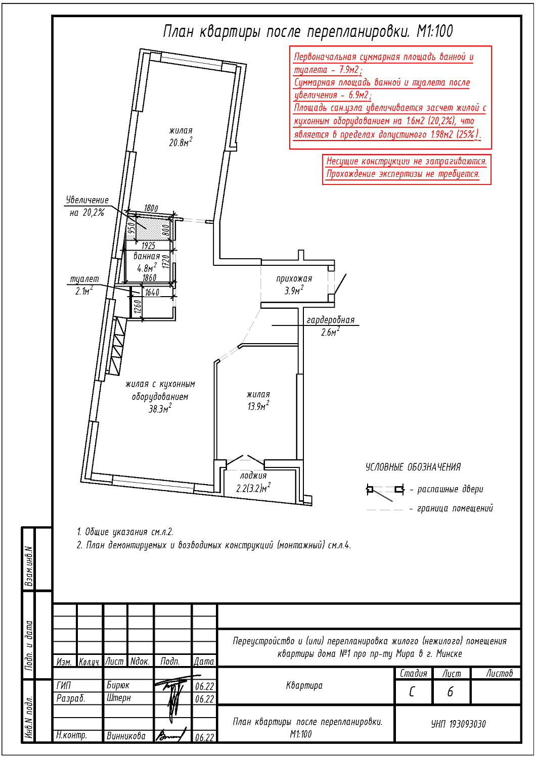
Перепланировка квартиры по проспекту Мира, 1 в ЖК «Минск Мир»
Пожелания заказчика:
- Разделение общей жилой с кухонным оборудованием на жилую с кухонным оборудованием, две жилые, прихожую, гардеробную;
- Изменение габаритов ванной и туалета;
- Устройство зашивок из ГКЛ на части площади ванной.
Нами были разработаны следующие разделы проектной документации для согласования в исполкоме:
- АС - архитектурно-строительные решения.
