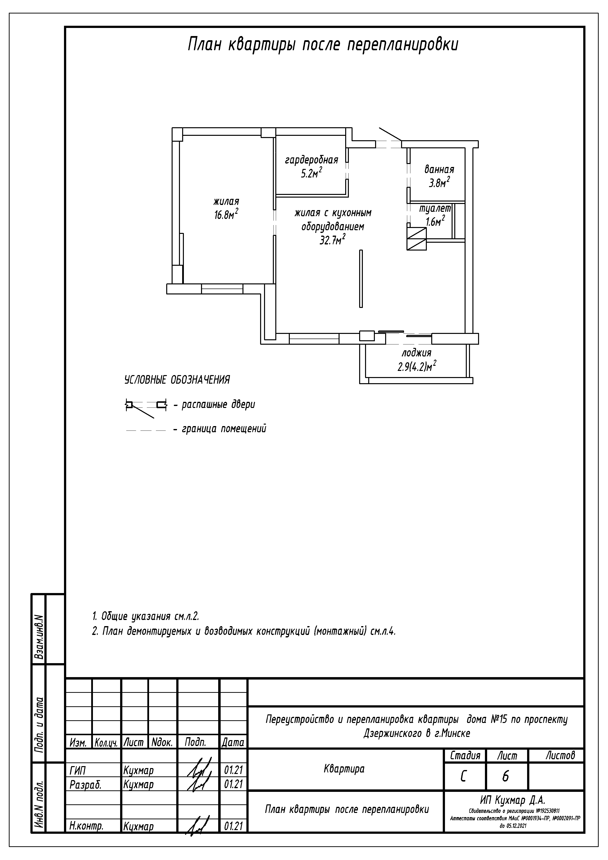
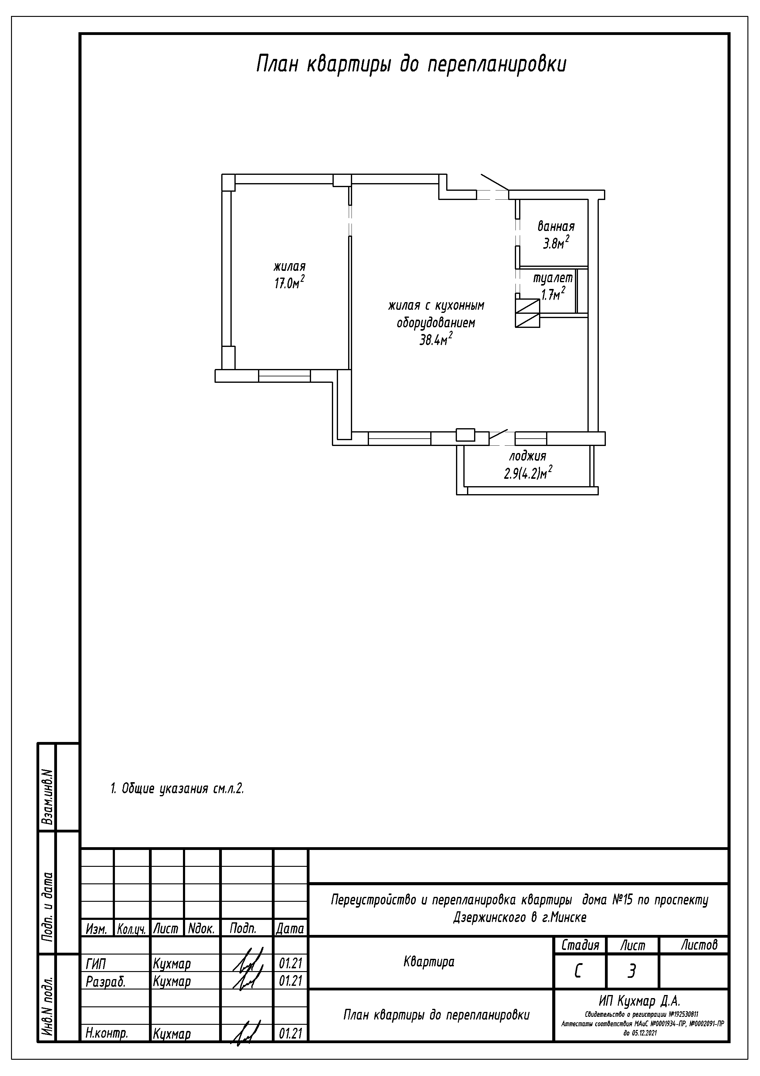
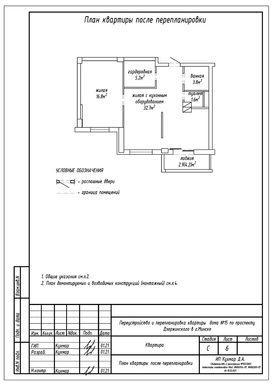
Перепланировка квартиры по пр-ту Дзержинского, 15 в г. Минске
Пожелания заказчика:
- Демонтаж подоконной части стены между лоджией и жилой с кухонным оборудованием с установкой дверного блока;
- Устройство гардеробной на площади жилой с кухонным оборудованием;
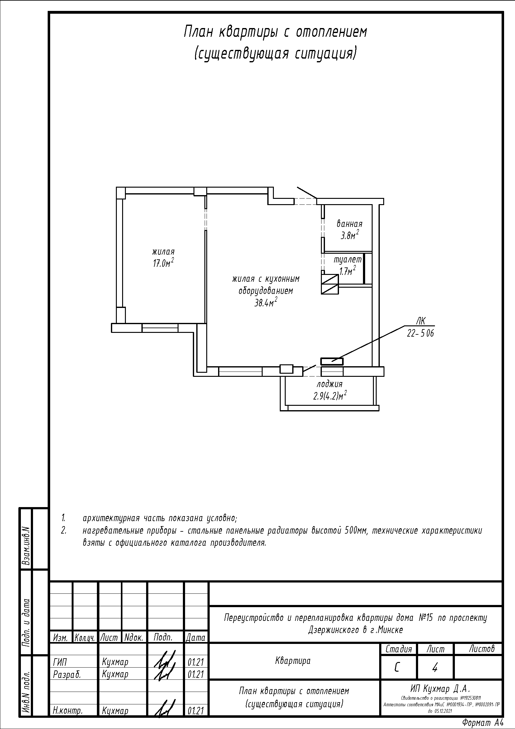
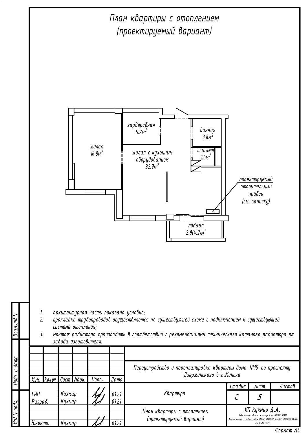
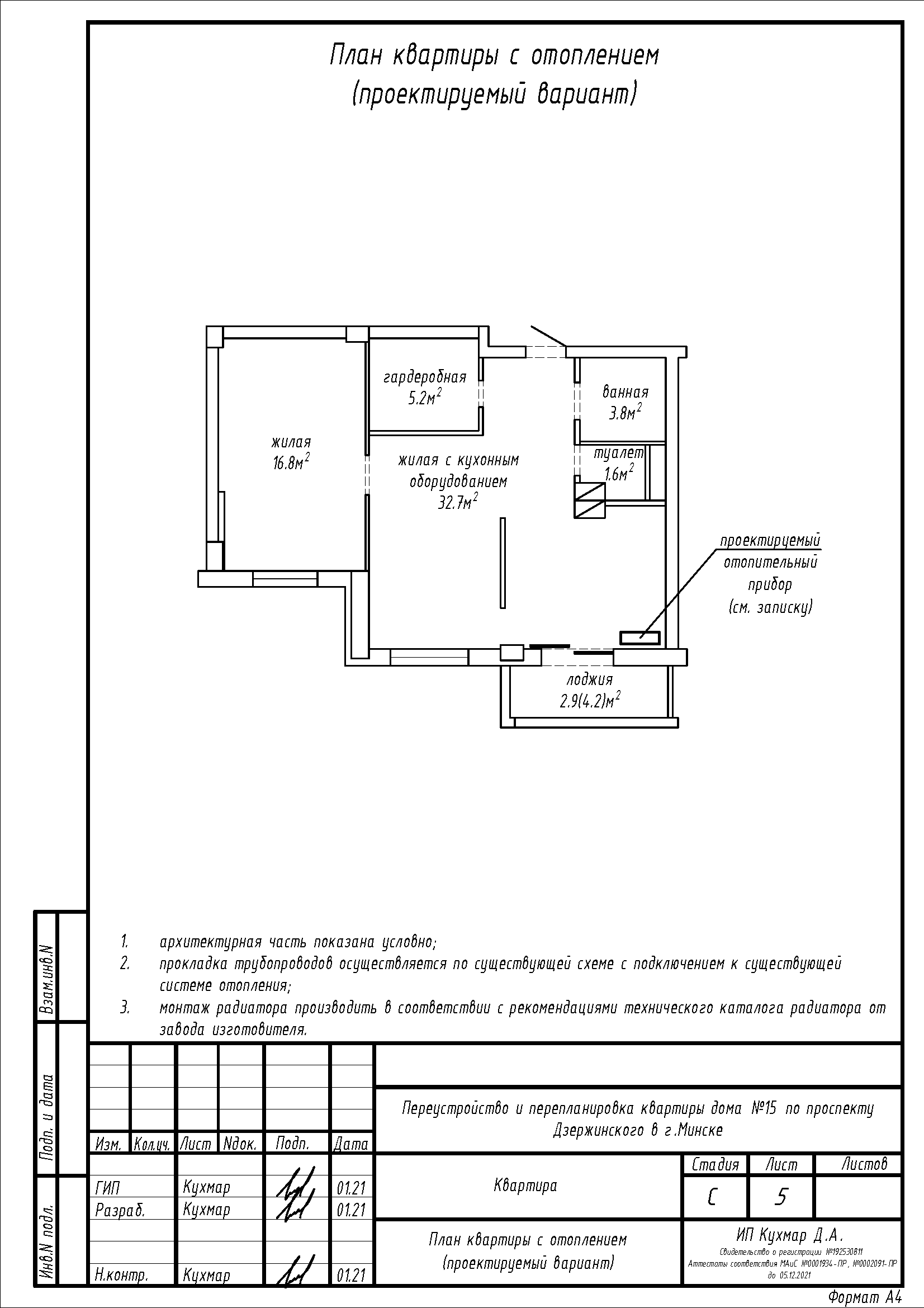
- Перенос и замена батареи.
Нами были разработаны следующие разделы проектной документации для согласования в исполкоме:
- АС - архитектурно-строительные решения;
- ОВ - отопление и вентиляция.


