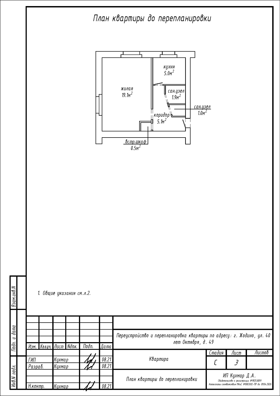
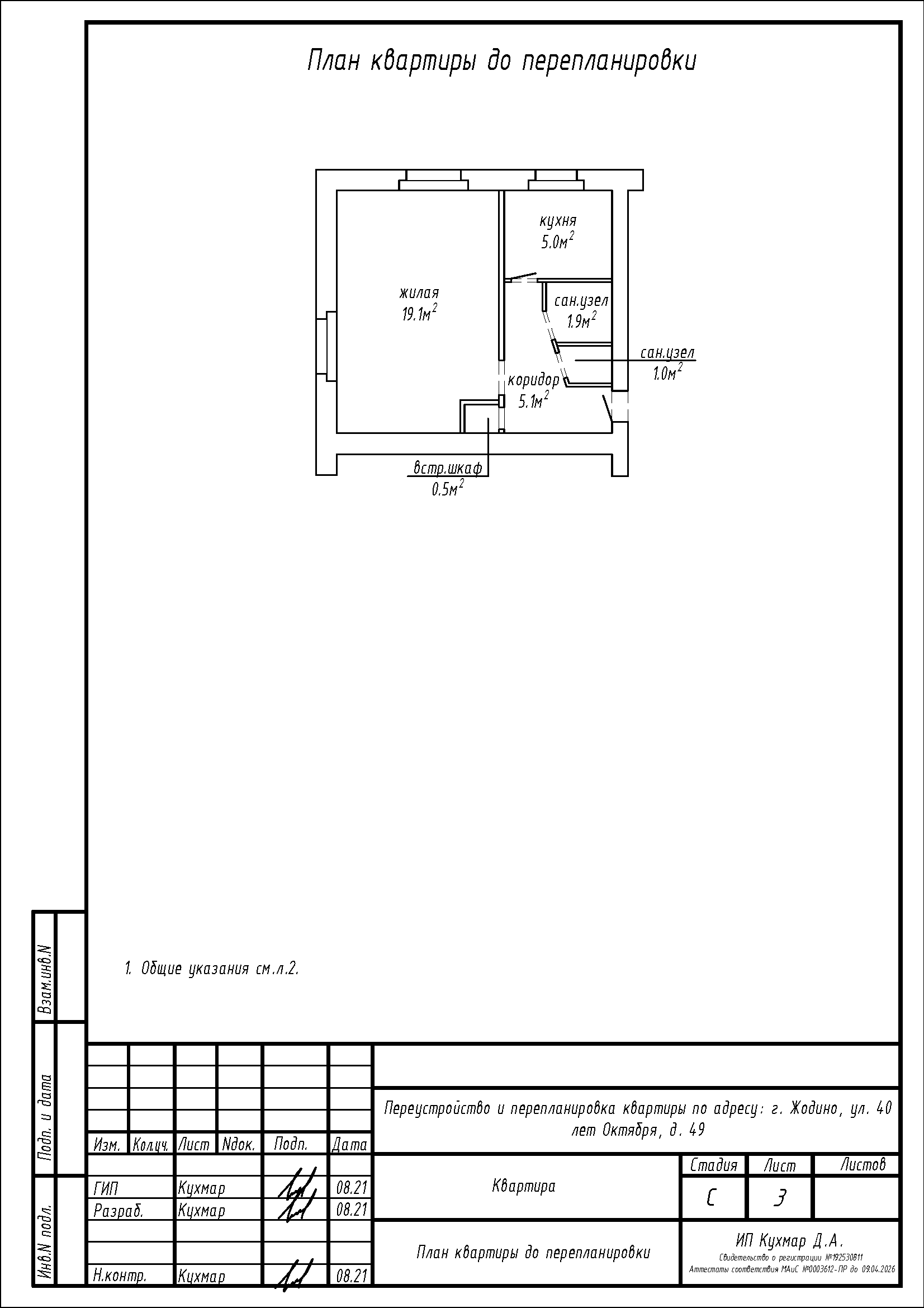
Перепланировка квартиры по ул. 40 лет Октября, 49 в г. Жодино
Пожелания заказчика:
- Объединение ванной и туалета в единый санузел;
- Устройство зашивки из ГКЛ на части площади санузла;
- Закладка дверного проёма в перегородке между коридором и кухней;
- Устройство дверного проема с дверным полотном в перегородке между кухней и жилой.
Нами были разработаны следующие разделы проектной документации для согласования в исполкоме:
- АС - архитектурно-строительные решения.
