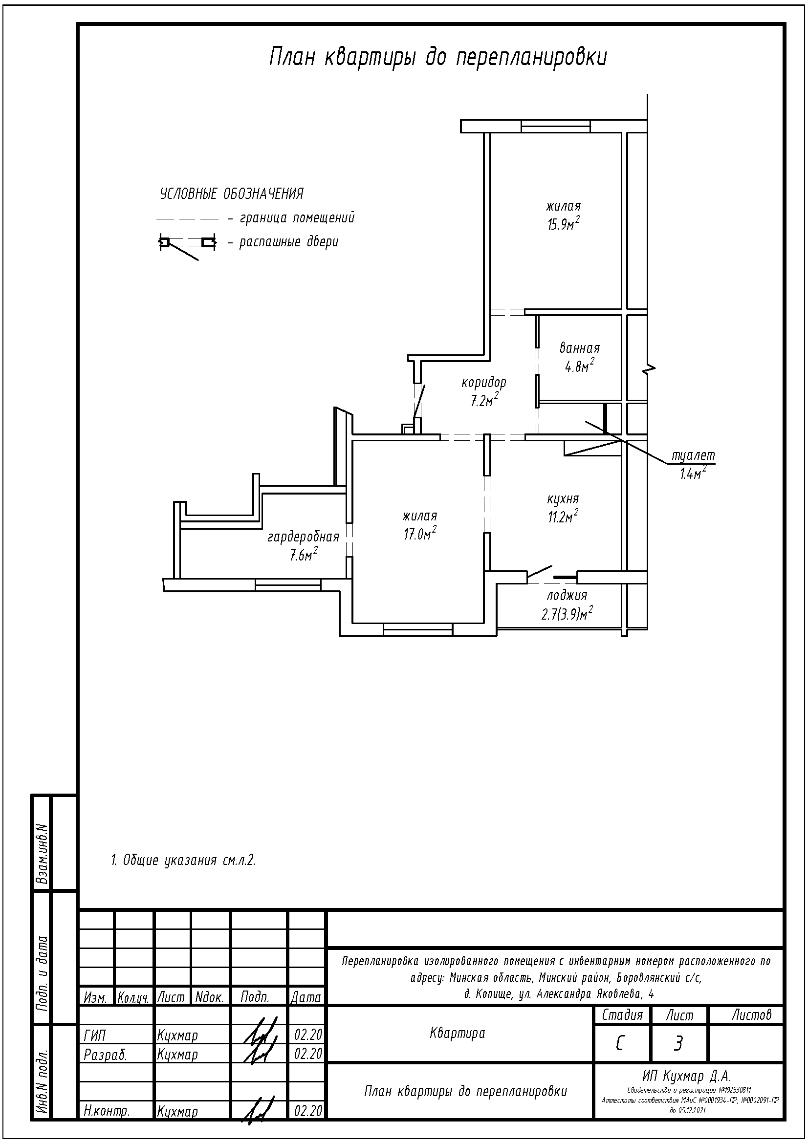
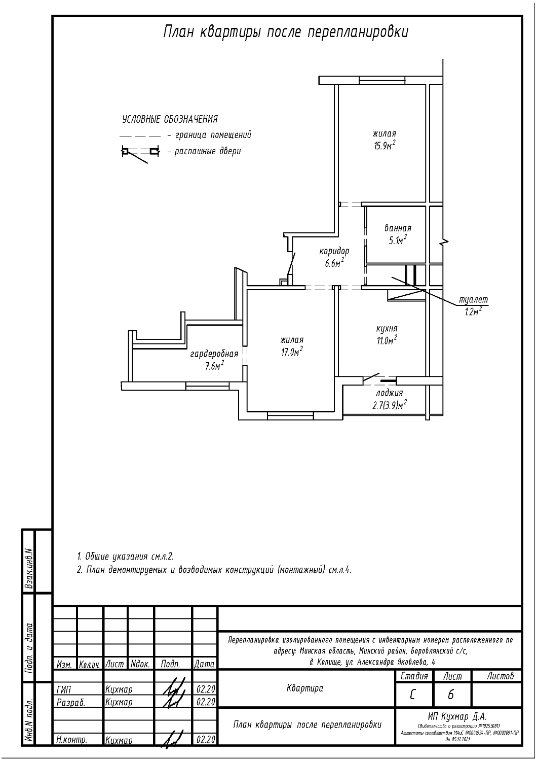
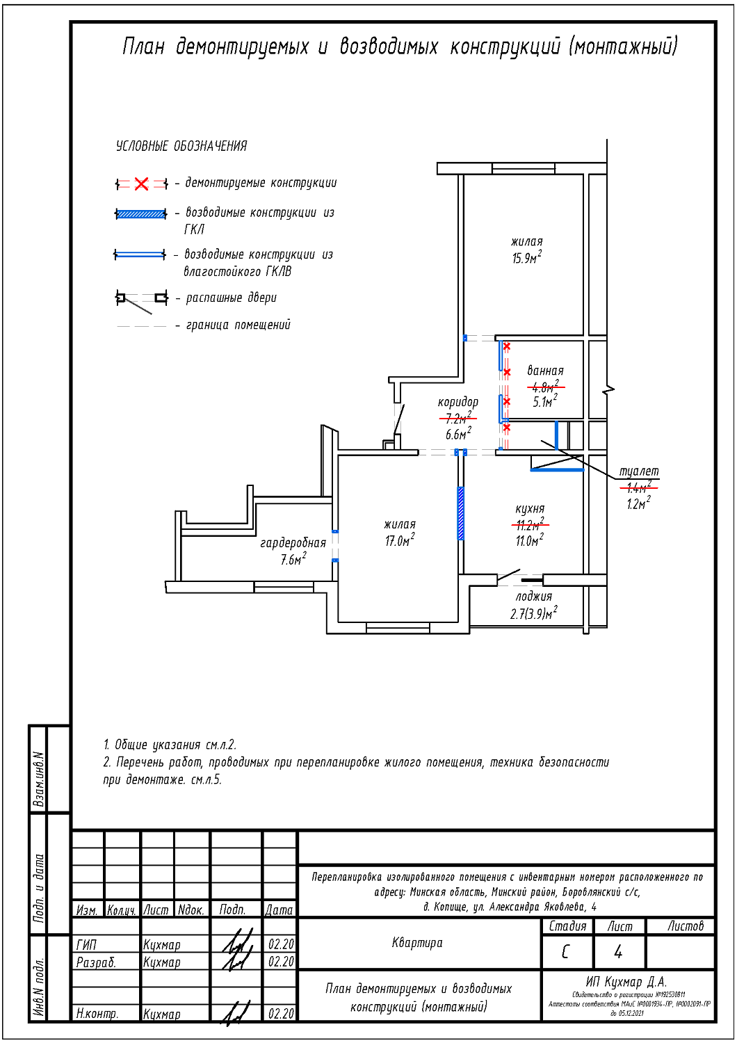
Перепланировка квартиры по ул. Яковлева, 4 в ЖК «Новая Боровая»
Пожелания заказчика:
- Увеличение площади ванной и туалета за счёт площади коридора;
- Сужение дверного проёма между гардеробной и жилой;
- Закладка дверного проёма между жилой и кухней;
- Сужение дверного проёма между коридором и жилой.
Нами были разработаны следующие разделы проектной документации для согласования в исполкоме:
- АС - архитектурно-строительные решения.
