Перепланировка квартиры по ул. Михаила Савицкого, 37 в ЖК «Минск Мир»
Пожелания заказчика:
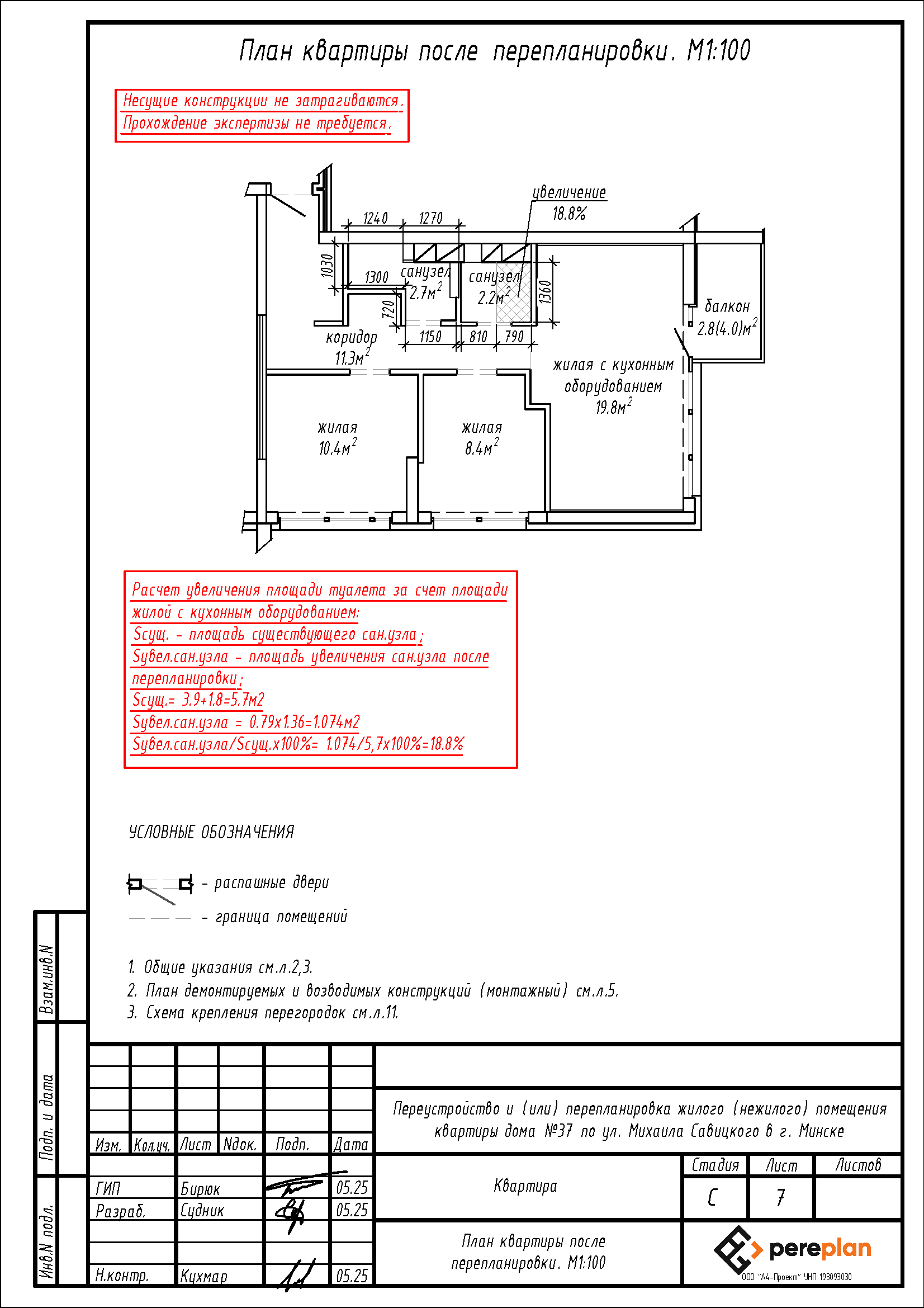
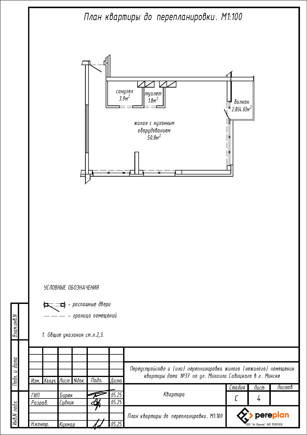
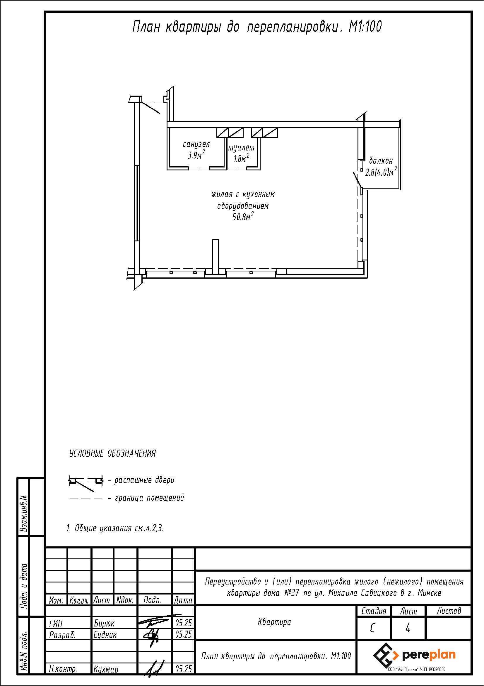
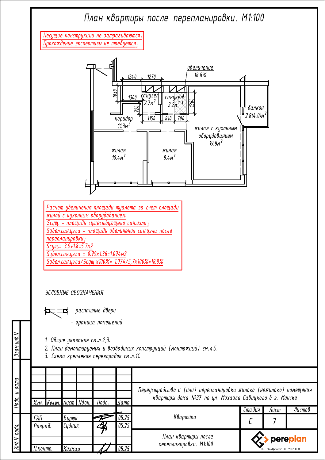
- Демонтаж перегородок между санузлом, туалетом и жилой с кухонным оборудованием с последующим устройством новых перегородок с целью образования помещений: двух жилых комнат, жилой с кухонным оборудованием, коридора, двух санузлов;
Нами были разработаны следующие разделы проектной документации для согласования в исполкоме:
- АС - архитектурно-строительные решения.
