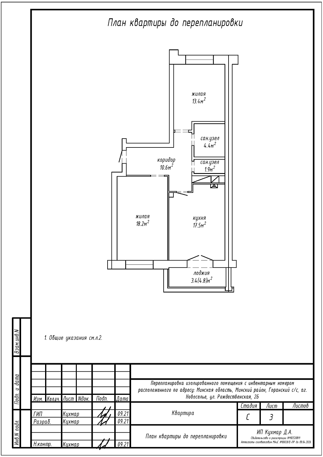
Перепланировка квартиры по ул. Рождественская, 2Б в ЖК «Городские кварталы»
Пожелания заказчика:
- Объединение двух санузлов в единый санузел;
- Устройство гардеробной на площади коридора;
- Демонтаж перегородки между жилой и коридором;
- Устройство дверного проёма между кухней и жилой.
Нами были разработаны следующие разделы проектной документации для согласования в исполкоме:
- АС - архитектурно-строительные решения.
