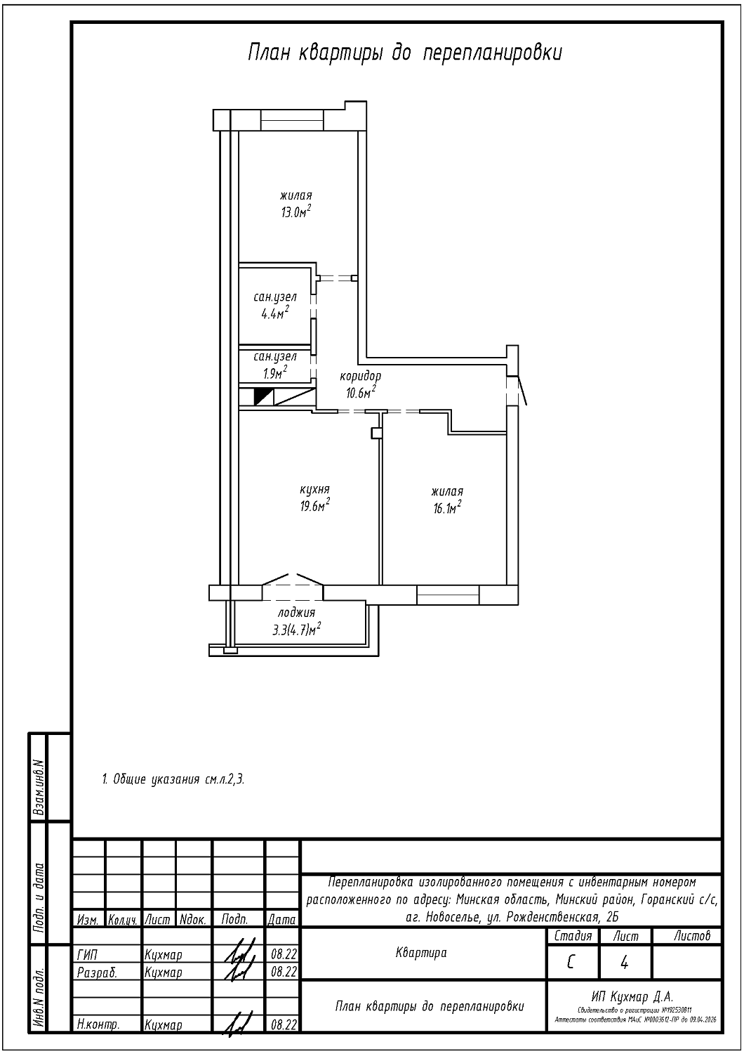
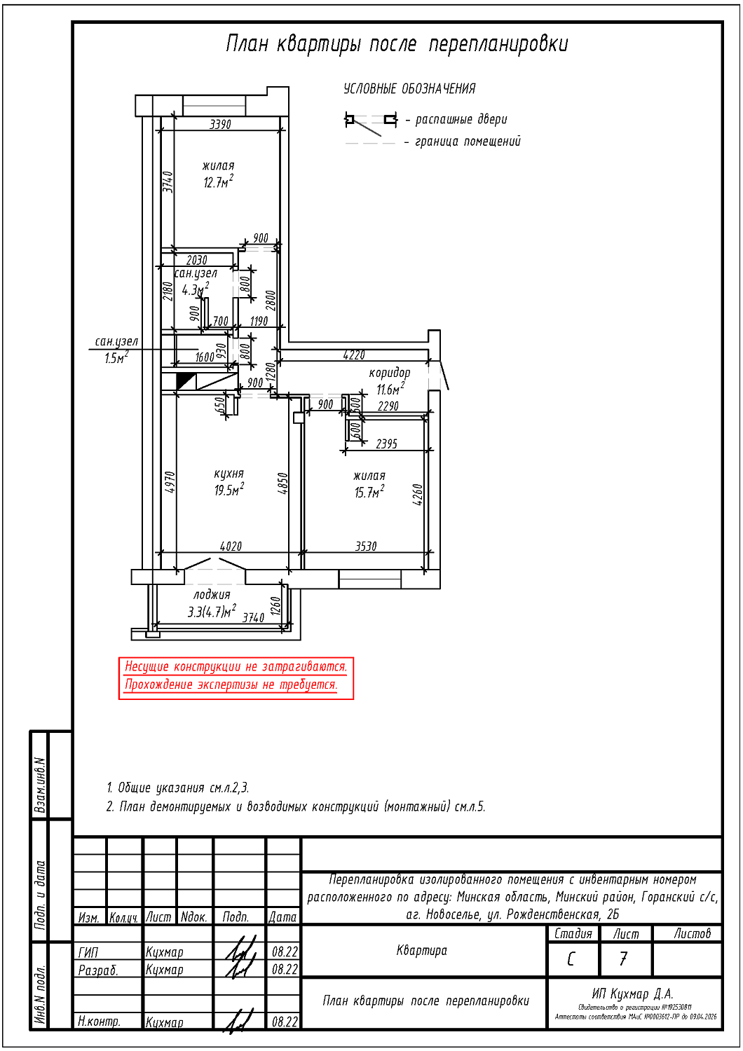
Перепланировка квартиры по ул. Рождественская, 2Б в ЖК «Городские кварталы»
Пожелания заказчика:
- Демонтаж части перегородки между жилой и коридором с устройством новых перегородок на площади жилой;
- Смещение дверного проёма между кухней и коридором;
- Устройство перегородок на площади кухни;
- Демонтаж перегородок дверного проёма между санузлом и коридором с последующим устройством новой перегородки;
- Устройство перегородок на площади санузла;
- Демонтаж перегородок дверного проёма между коридором и жилой с устройством новых перегородок с дверным проёмом на площади жилой;
- Замена и перенос существующего отопительного прибора.
Нами были разработаны следующие разделы проектной документации для согласования в исполкоме:
- АС - архитектурно-строительные решения;
- ОВ - отопление и вентиляция.
