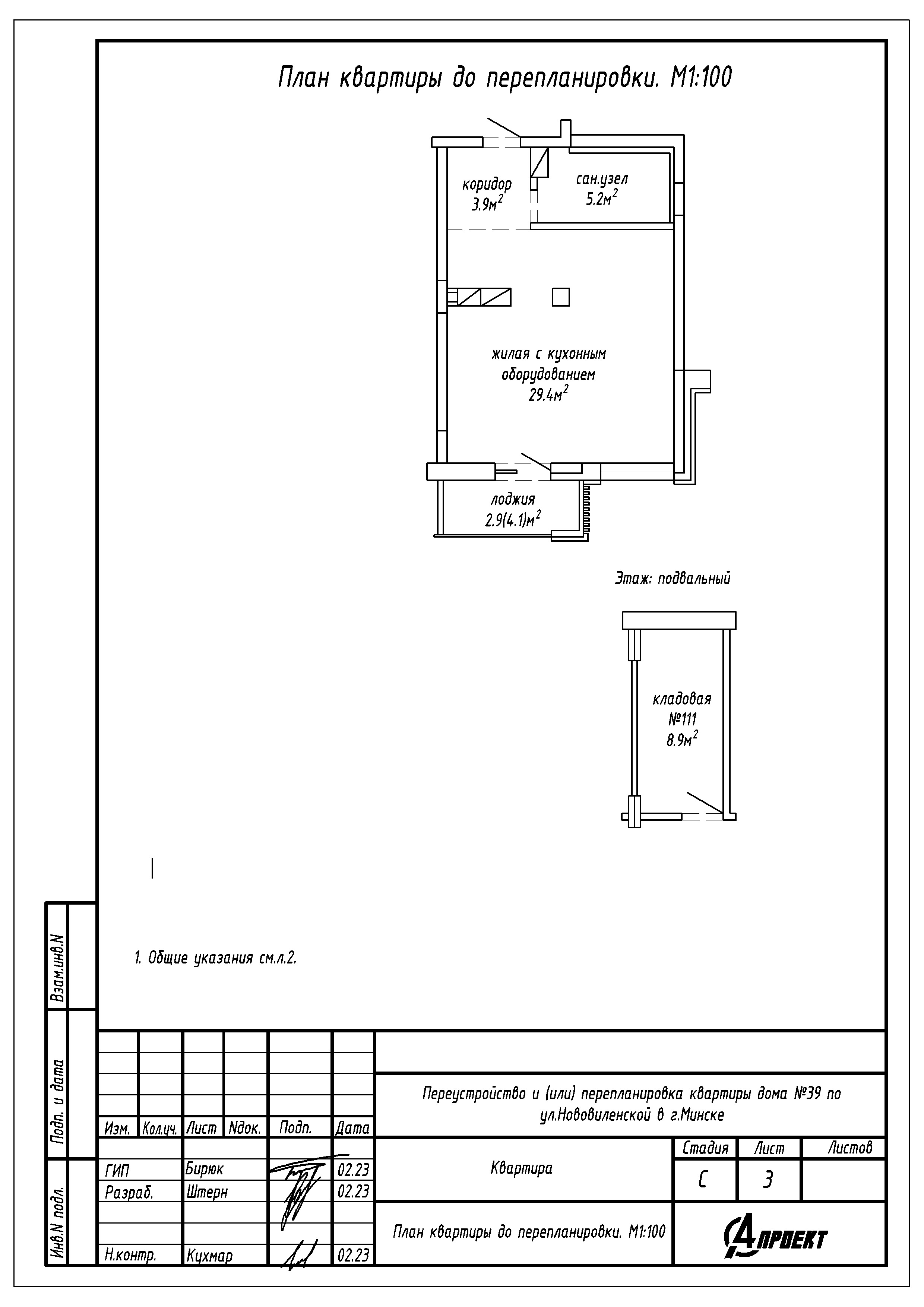
Перепланировка квартиры по ул. Нововиленская, 39 в ЖК «Левада»
Пожелания заказчика:
- Разделение жилой с кухонным оборудованием на отдельную жилую и жилую с кухонным оборудованием;
- Изменение границ санузла.
Нами были разработаны следующие разделы проектной документации для согласования в исполкоме:
- АС - архитектурно-строительные решения.
