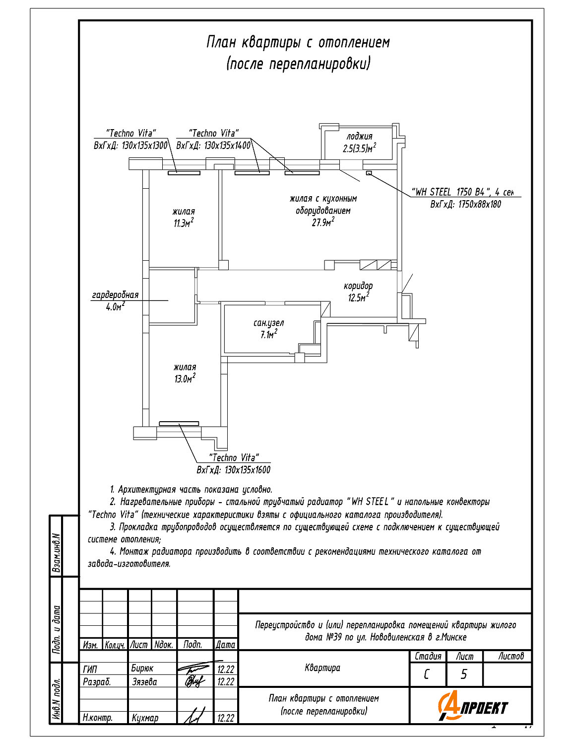
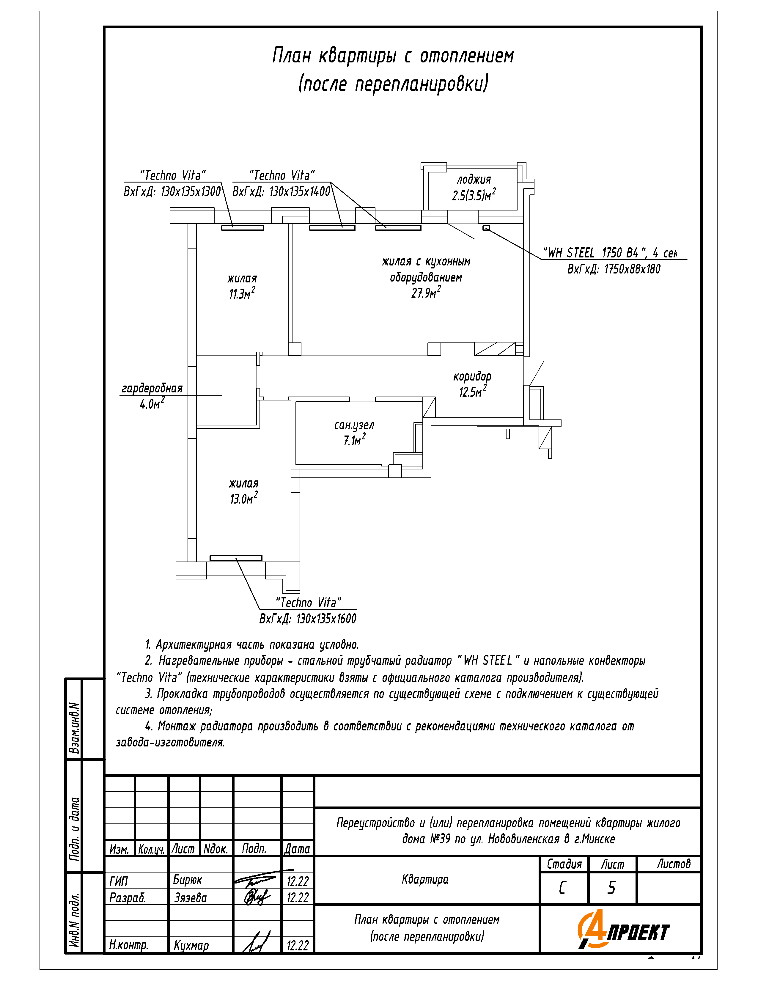
Перепланировка квартиры по ул. Нововиленская в ЖК «Левада»
Пожелания заказчика:
- Устройство гардеробной на части площади жилых помещений;
- Объединение ванной и туалета в единый санузел;
- Закладка проёма между жилой с кухонным оборудованием и коридором;
- Замена отопительных приборов.
Нами были разработаны следующие разделы проектной документации для согласования в исполкоме:
- АС - архитектурно-строительные решения;
- ОВ - отопление и вентиляция.
