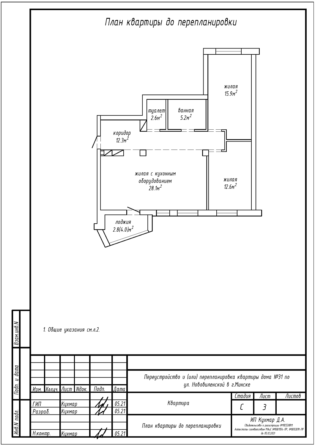
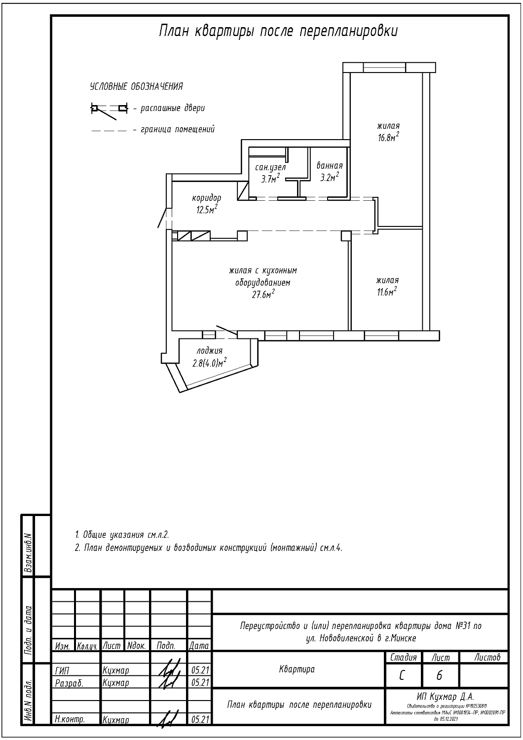
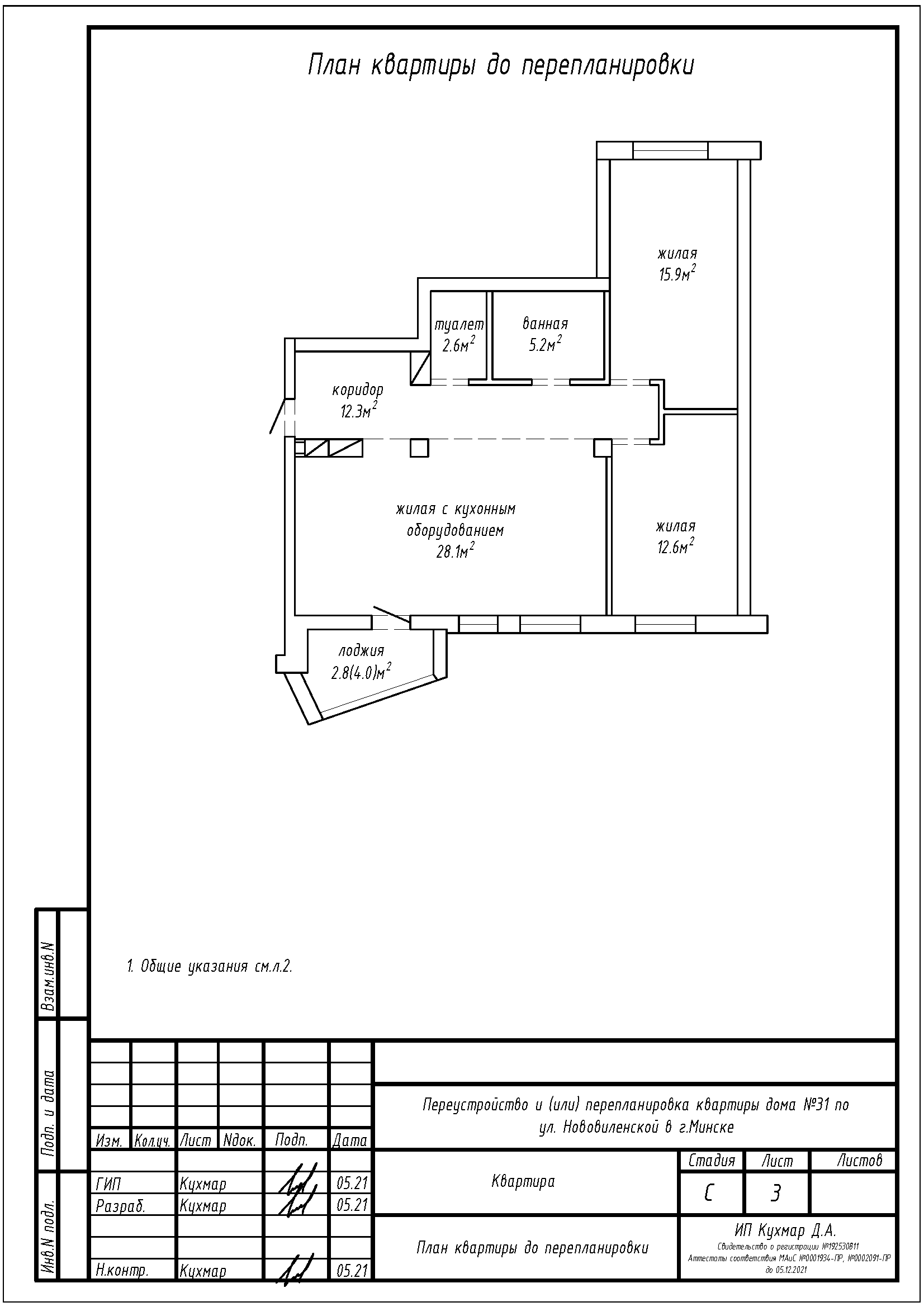
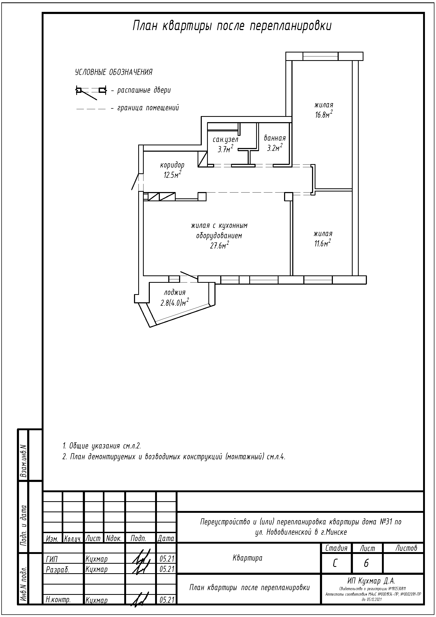
Перепланировка квартиры по ул. Нововиленская, 31 в ЖК «Левада»
Пожелания заказчика:
- Демонтаж частей перегородок между жилыми и коридором с последующим устройством перегородок на части площади жилой и коридора;
- Устройство перегородок на части площади жилой с кухонным оборудованием;
- Устройство санузла на площади туалета и увеличение санузла за счёт площади ванной;
- Демонтаж части стены между жилой с кухонным оборудованием и лоджией с целью устройства окна.
Нами были разработаны следующие разделы проектной документации для согласования в исполкоме:
- АС - архитектурно-строительные решения.
