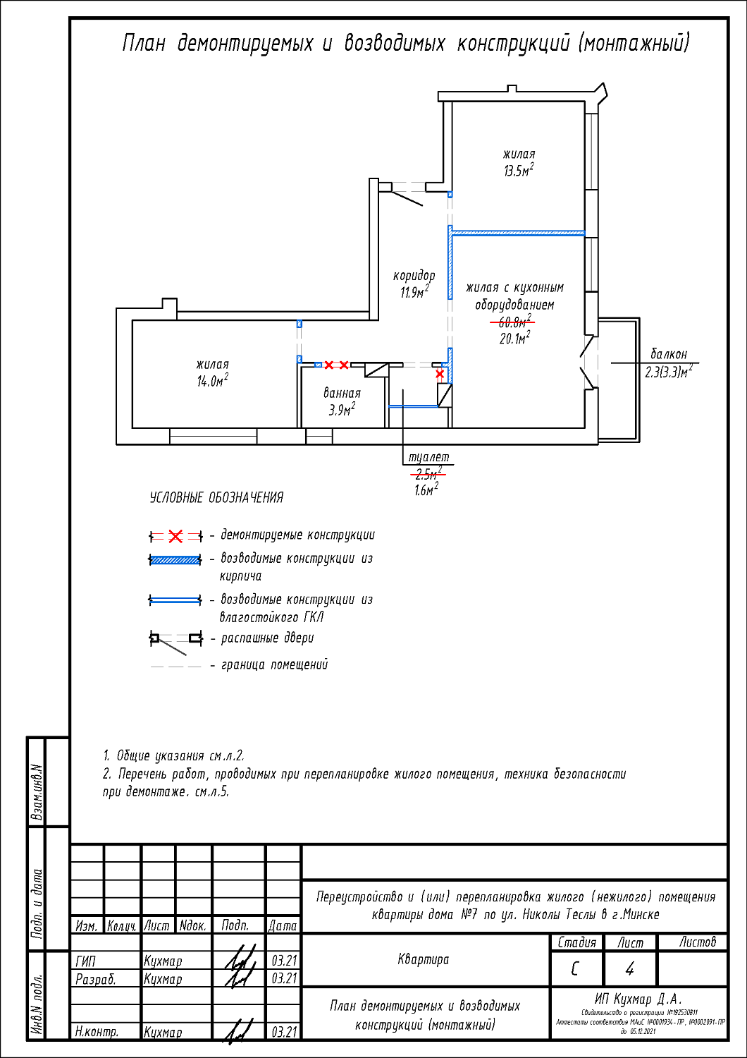
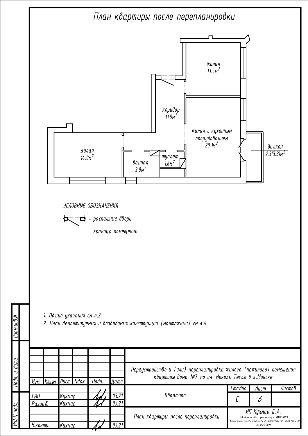
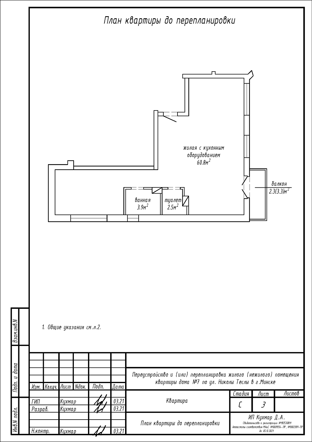
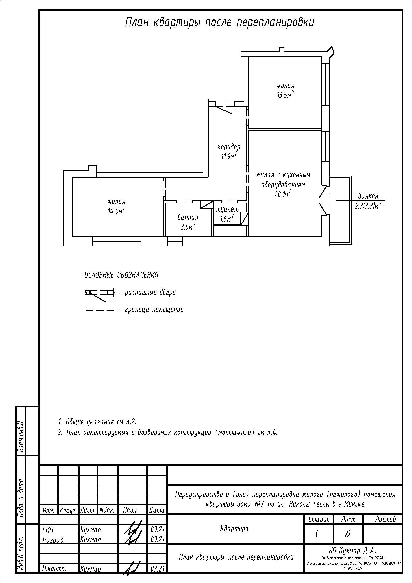
Перепланировка квартиры по ул. Николы Теслы, 7 в ЖК «Минск Мир»
Пожелания заказчика:
- Разделение общего помещения жилой с кухонным оборудованием на две жилые и жилую с кухонным оборудованием;
- Изменение границ помещения туалета.
Нами были разработаны следующие разделы проектной документации для согласования в исполкоме:
- АС - архитектурно-строительные решения.
