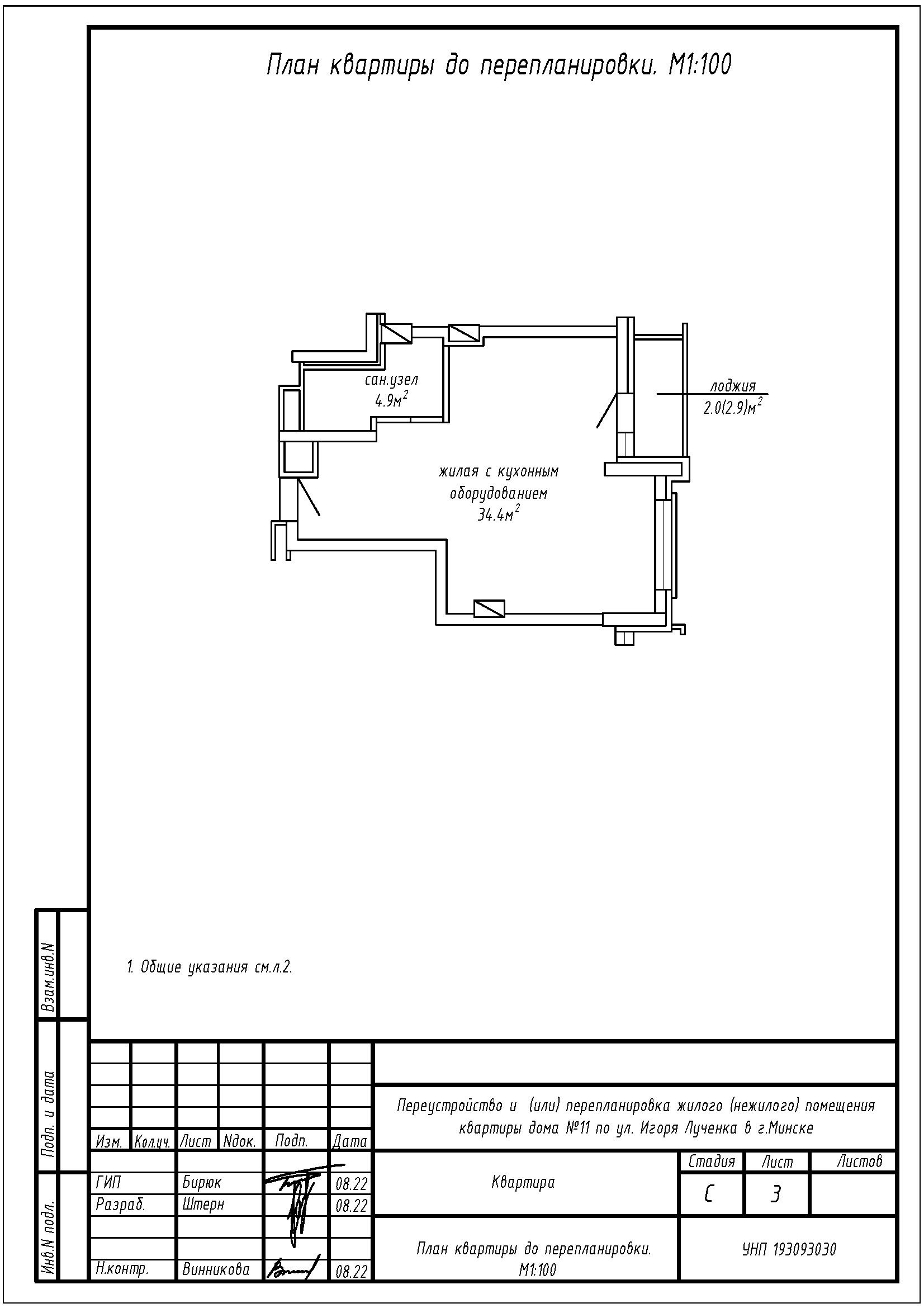
Перепланировка квартиры по ул. Николы Теслы, 17 в ЖК «Минск Мир»
Пожелания заказчика:
- Разделение жилой с кухонным оборудованием на жилую с кухонным оборудованием, жилую и коридор;
- Увеличение площади санузла, но не более чем на 25%.
Нами были разработаны следующие разделы проектной документации для согласования в исполкоме:
- АС - архитектурно-строительные решения.
