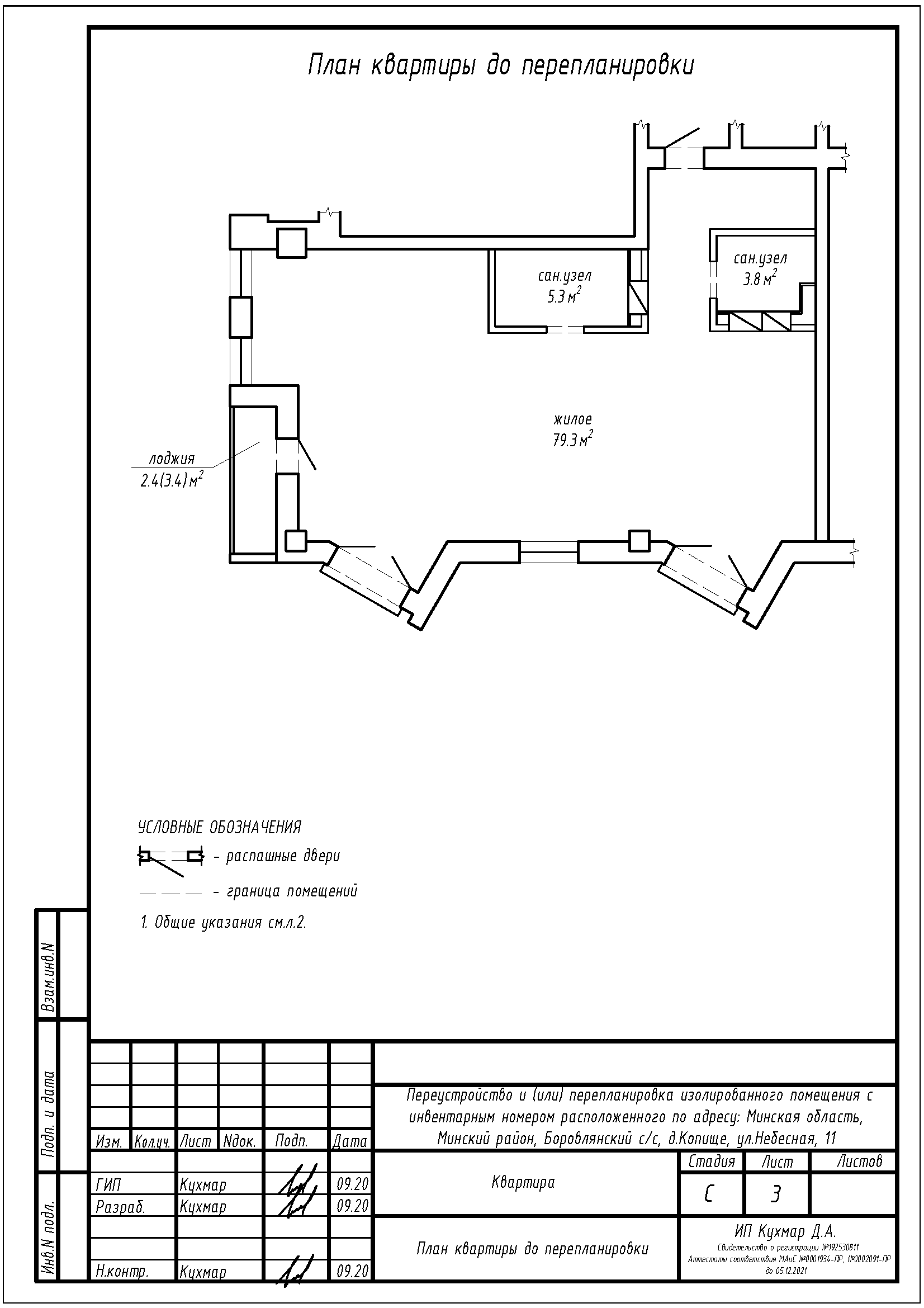
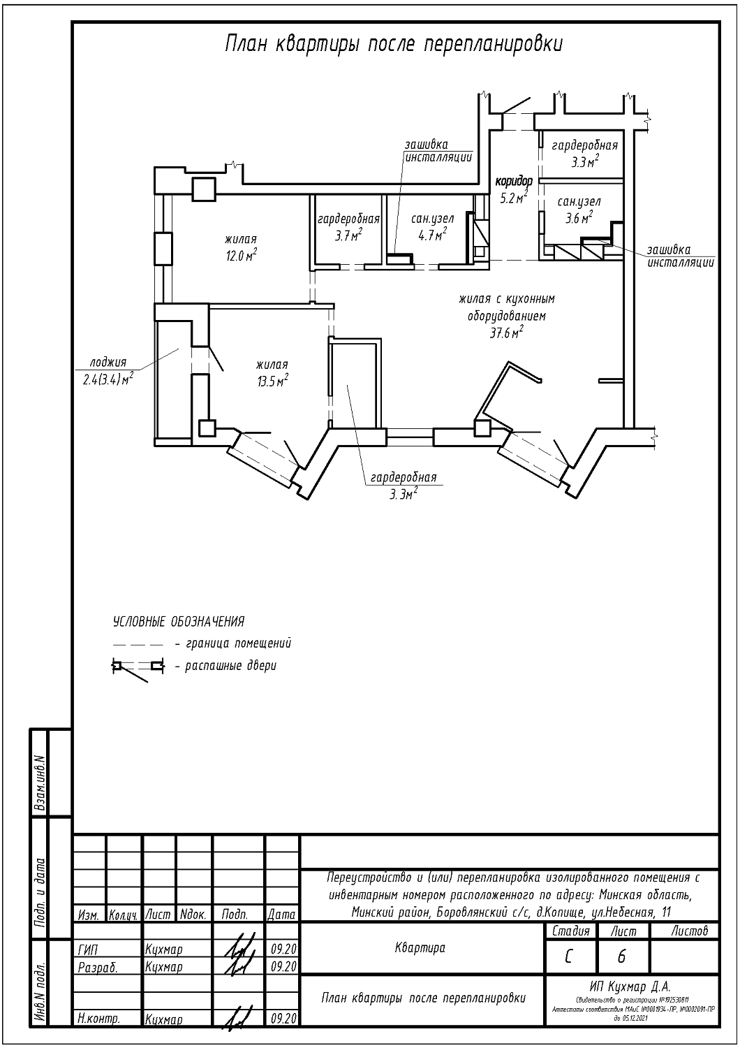
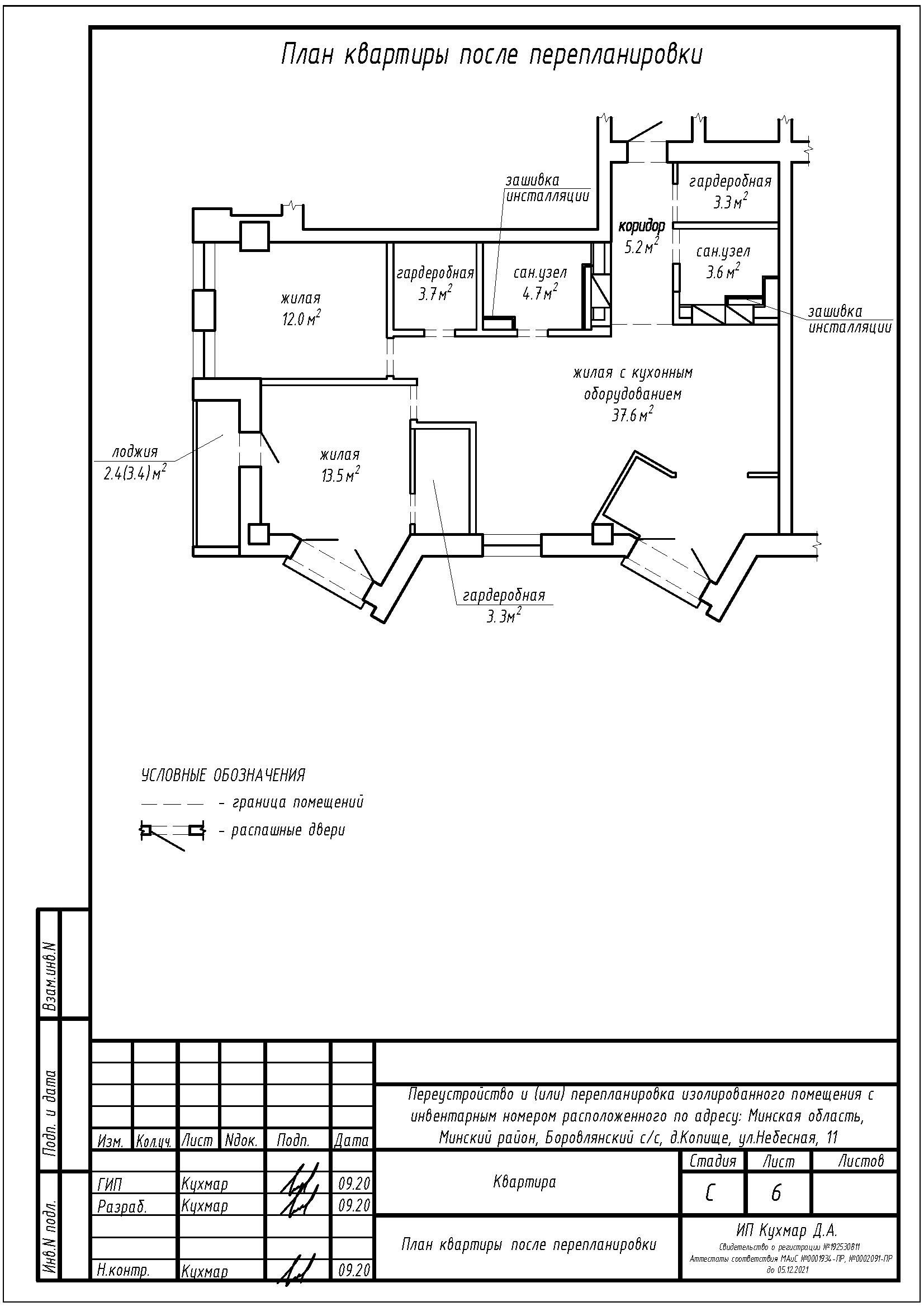
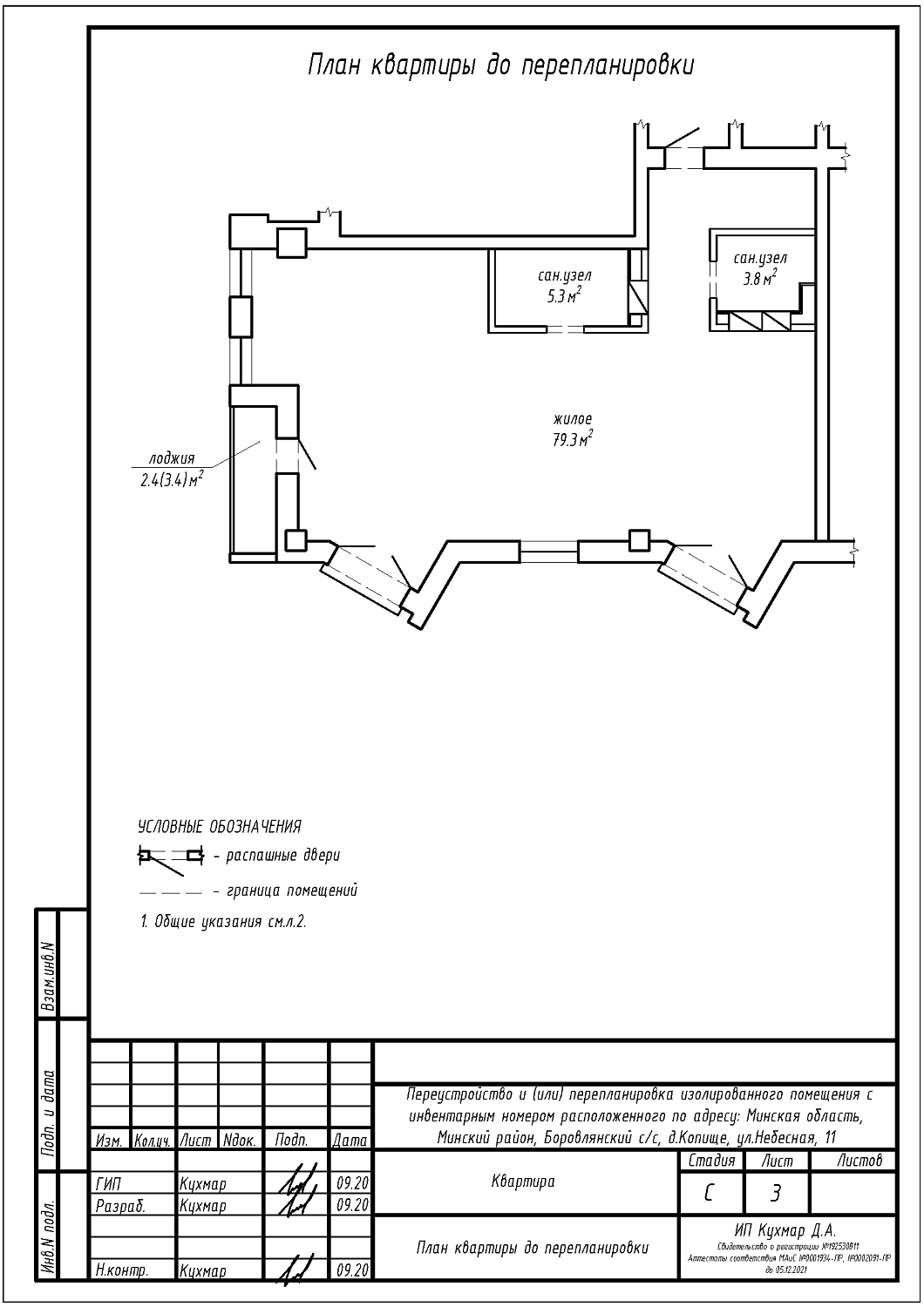
Перепланировка квартиры по ул. Небесная, 8 в ЖК «Новая Боровая»
Пожелания заказчика:
- Разделение общего жилого на жилую с кухонным оборудованием, две жилые, три гардеробные, коридор;
- Изменение площади санузлов;
- Устройство зашивок инсталляции в санузлах.
Нами были разработаны следующие разделы проектной документации для согласования в исполкоме:
- АС - архитектурно-строительные решения.
